|
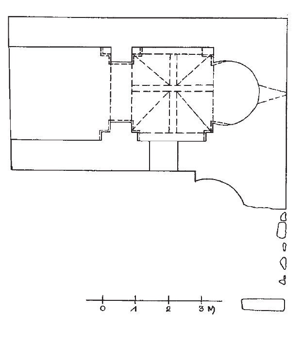
ძველი ქართული ხუროთმოძღვრული მემკვიდრეობის შესწავლისას დღემდე კვლავ ჩნდება არა მხოლოდ ცალკეული უცნობი ძეგლები, არამედ ახალი მასალის მოპოვებასთან ერთად საგულისხმო ისტორიულ-ხუროთმოძღვრულ ჯგუფებად იკვრება ადრე ცნობილი მაგალითებიც. ისინი საგანგებო ყურადღებას იმსახურებენ და რიგ საკითხებს ახლებურად გვიხასიათებენ. ერთ-ერთ ასეთ ჯგუფს ადრე შუა საუკუნეების ის საეკლესიო ნაგებობები ქმნის, რომლებიც, როგორც დავინახავთ, გარკვეული ნიშნით ერთიანდება და ამ პერიოდში განსხვავებული ტიპოლოგიის აღმშენებლობას გვიჩვენებს. ზედაზნის მონასტრის ბაზილიკის უძველესი ნაწილი VI საუკუნის მცირე ეკლესიაა, რომელიც VIII საუკუნის სტრუქტურაშია ჩართული. მის უაფსიდო, დარბაზულ სივრცეში წმ. იოანე ზედაზნელის ნეშტია დაკრძალული. ამ ეკლესიის ხუროთმოძღვრება კარგა ხანია იქცევს ყურადღებას თავისი თავისებურებებით – სწორკუთხა საკურთხევლითა და ტრომპებზე დაყრდნობილი კონქით, რის გამოც იგი შესწავლილიცაა და გამოქვეყნებულიც, მაგრამ ნაგებობის არქიტექტურაზე კიდევ და კიდევ დაკვირვება, ახალი ფაქტობრივი მასალის ფონზე მისი განხილვა, დღემდე უცნობი ხუროთმოძღვრულისტორიული დასკვნების გამოტანის უფლებას გვაძლევს. ეკლესიის თავდაპირველი ნაწილები, როგორც ცნობილია, შერჩენილია ინტერიერში და აღმოსავლეთ ფასადზე. ჩრდილოეთის მხრიდან მას შემდგომდროინდელი გასქელება ფარავს, სამხრეთი ფასადიც ბაზილიკის კედლითაა დაფარული, დასავლეთი კედელი კი, როგორც სამეცნიერო ლიტერატურაშია აღნიშნული, ბაზილიკის მიშენებითაა გაუქმებული;
|
| gegma |
შესაბამისად, ფიზიკურად არარსებულ დასავლეთ კედელს, ზედაზნის ადრეული ეკლესიის გამოქვეყნებისას, გრაფიკულად აღადგენენ ხოლმე. ამგვარი აღდგენა დღემდე, ცხადია, ყველაზე უეჭველია და “ქრესტომათიულად” ითვლება.ასეთი რეკონსტრუქციის საბოლოოდ მისაღებად ვნახოთ ზედაზნის ადრეული ეკლესიის სტრუქტურა უფრო დაწვრილებით. აღმოსავლეთის მხრიდან მისი ინტერიერი, როგორც ითქვა, სწორკუთხა საკურთხევლით სრულდება. ეს უკანასკნელი დარბაზთან შედარებით ოდნავ ვიწროა, რაც მათ შორის კუთხეს, მხრებს წარმოქმნის. ძირითადი დარბაზის ზუსტად ცენტრში, მოზრდილ შეკიდულ კრონშტაინებზე დაყრდნობილი, საბჯენი თაღი გადადის. ამავე დონეზეა დასმული საკურთხევლის სატრიუმფო თაღის კაპიტელიც, საიდანაც მთელი დარბაზის სიგრძეზე, აღნიშნული კაპიტელების დონეზე, თლილი ქვის ძლიერად შვერილი თარო გადის. იგი დასავლეთის სავარაუდო კედელთან ჩერდება. თაროს მანძილი დარბაზის კაპიტელიდან საკურთხევლამდე 120 სმ-ია, ზუსტად იდენტურია ზომა კაპიტელიდან თაროს დასავლეთ კიდემდე – 120 სმ. თუ თაროს აღმოსავლეთი უკიდურესი კიდე საკურთხევლის კაპიტელს ემთხვევა და თაროს დასასრული იმავდროულად კაპიტელის დასაწყისია, საპირისპირო, დასავლეთი კიდე, ის, რომელიც 120 სმ-ს ემთხვევა და მისი უკიდურესი წერტილია – აბსოლუტურად სუფთად, თაროს კიდის მკაფიო მოხაზულობის შენარჩუნებით სრულდება.
|
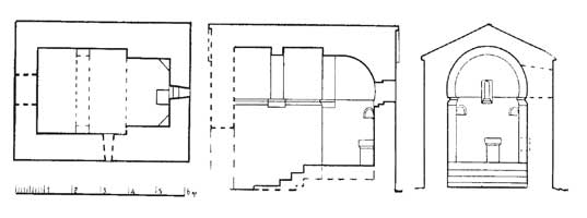
| zedazeni. Tavdapirveli darbazuli eklesia. n. CubinaSvilis mixedviT |
იბადება კითხვა, რა მიზეზით უნდა აიხსნას ზედაზნის უძველესი ეკლესიის დასავლეთი კიდის, კიდის, რომელიც კედლის გაუქმება-მონგრევის შედეგად უნდა იყოს შექმნილი, ასე სუფთად და აღმოსავლეთის მონაკვეთთან მიმართებაში ზედმიწევნითი სიმეტრიით შემორჩენა; ხომ არ შეიძლება დასავლეთი კედლის ასე პირწმინდა, უნაკვალევო, “სიმეტრიის გარე” მოცულობად “გაქრობა” რაიმე სხვა მიზეზით ავხსნათ? ამ კითხვაზე პასუხის გასაცემად სხვა ნაგებობები უნდა მოვიშველიოთ.
ჯავახეთში, ხერთვისიდან ახალქალაქისკენ მიმავალი მთავარი გზის მარცხნივ, დამრეც, დაუსახლებელ ფერდობზე, ნამონასტრალი მდებარეობს, რომელიც ახლომდებარე სოფლის მიხედვით “თოკის მონასტრად” მოიხსენიება. მთავარი ტაძრის (ორნავიანი ბაზილიკა, XIII საუკუნისა), გალავნის, სხვა ნაფუძრების გვერდით, შემორჩენილია ძლიერ უჩვეულო მცირე დარბაზული სამლოცველო. იგი ნაგებია კარგად და საშუალოდ თლილი, სწორკუთხა და ირეგულარული მოყვანილობის ქვებით; დარბაზი აღმოსავლეთიდან ძლიერ ნალისებრი აფსიდით სრულდება, ძლიერ ნალისებრია სატრიუმფო თაღიც, ასეთივეა კამარაც (საბჯენი თაღის გარეშე); მაგრამ ახლა ჩვენთვის ყველაზე არსებითია ეკლესიის დასავლეთი მხარე – ნალისებრთაღიანი ფართო ღიობით ისე გახსნილი, რომ ეკლესია დასავლეთი კედლის უქონელ, მის ნაცვლად დიდი თაღით გახსნილ, “უდასავლეთ-კედლო” ნაგებობად წარმოგვიდგება. მხატვრულსტილისტური ნიშნებით იგი IX საუკუნის შუა ხანას განეკუთვნება.
|
|
| Toki. gegma (n. bagrationisa da S. meliqiZis mixedviT) |
Toki. xedi samxreT-dasavleTidan (avtoris foto) |
ჯავახეთშივე, სოფ. აზმანაში, ამ მხარეში ერთ-ერთი ყველაზე ძველი, VIII საუკუნის შუა ხანის, ძლიერ უცნაური ეკლესიაა შემონახული. ორი ერთმანეთის გვერდიგვერდ მიჯრით მდგარი დარბაზული საყდრიდან ჩრდილოეთისა, შედარებით მომცრო და უკეთ გადარჩენილი, ადრინდელია, მეორე, ბევრად დიდი, ამჟამად მიწიდან 1 მ-ზე დასული – მასზე შემდგომ მიუშენებიათ, რითაც მომცრო ძველი ნაგებობა ახლის მინაშენისგვარ მოცულობად უქცევიათ.
 |
| azmana. Wrili samxreTiT. nax. S. meliqiZis |
ადრინდელი ტაძარი ინტერიერის მხრიდან თლილი, ხოლო ფასადები (კუთხეთა გამოკლებით) თანაბარი უთლელი ქვითაა ნაშენი. ამ ტაძრის აღმოსავლეთით მონალისებრო აფსიდით დასრულებული ძირითადი სივრცე ჯვრული კამარით გვირგვინდება (!), რომელიც დასავლეთისკენ თლილი ნახევარწრიული კამარით გრძელდება, კამარით, რომელიც კედლებით ოთხმხრივ არ იკვრებოდა და დასავლეთი მხრიდან ღია უნდა ყოფილიყო – სულ ახლახან აქ ჩატარებულმა გათხრებმა დასავლეთი კედლის მიწისქვეშა სარჩული – მოქანდაკების ზოლი გამოავლინა; ეს ზოლი სიმბოლური ზღვარი, მშენებლობისას დასავლეთი გაბარიტის მომსაზღვრული ჩანს – მასზე კედლის ქვების წყობის არც ერთი (!) ქვა არ დაფიქსირებულა, მაშინ როცა ასეთივე სარჩულზე სხვა სამი კედელი, როგორც ითქვა, დღემდე მთელი სიმაღლითაა შემონახული. უფრო მეტიც, ეკლესიის სამხრეთი, პილასტრებსშორისი კედელი უსწორო რიგებითაა ამოყვანილი, ამ კედელში მოყოლილი პილასტრების სუფთად თლილი, გარე პირი კი ცხადყოფს, რომ იგი ფასადზე გადიოდა, მისი დამფარავი კედელი კი მერმინდელია და ე.ი. თავდაპირველად ეკლესია სამხრეთიდანაც თაღით იყო გახსნილი.
 |
azmana. gegma. nax.
S. meliqiZis |
ამგვარად, აზმანას ეკლესიის რეკონსტრუქციისას ჩნდება ჯვრული კამარით გადახურული, აღმოსავლეთიდან აფსიდით დასრულებული, აღმოსავლეთ-დასავლეთ ღერძზე დაგრძელებული სივრცე, რომელიც დასავლეთიდან და სამხრეთიდან დიდი თაღებითაა გამჭოლი. ამით იგი უახლოვდება თოკის მონასტრის ძველ სამლოცველოს, იმ განსხვავებით, რომ თოკის “უდასავლეთკედლობას” აზმანაში სამხრეთი მხარის ღიაობაც ემატება.
ამგვარად, როგორც აზმანისა და თოკის მონასტრის ტაძრები გვიჩვენებენ, არსებობს ეკლესიები, რომლებიც მსგავსი ნიშნებით ერთიანდებიან. ეს ნიშნებია:
ა) მცირე გაბარიტები;
ბ) დასავლეთი (ზოგჯერ სამხრეთი) მხრიდან გახსნილობა;
რა ფუნქცია შეიძლებოდა ჰქონოდათ ამ ნაგებობებს?
გათხრების შედეგად აზმანას ეკლესიის ინტერიერში, მოშანდაკების ზემოთ ნახსენები ზოლის წინ, შესასვლელთან, კლდეში ნაკვეთი ერთადერთი სამარხი გამოვლინდა, მაშინ როდესაც ეკლესიის ეზოში, ნაგებობებთან მიჯრით, საფლავთა დიდი რაოდენობა აღმოჩნდა.
 |
azmana. rekonstruqcia. nax.
S. meliqiZis |
ხომ არ შეიძლება ეს მიგვანიშნებდეს, რომ ტაძარში წმინდანი ან სარწმუნოებისთვის მნიშვნელოვანი პირია დასაფლავებული და ტაძარი “საფლავსა ზედა ეკლესიაა”? თოკის მონასტრის ნაგებობაც იმდენად მცირეა, მასში დიდი რაოდენობით მრევლისა თუ ღმრთისმსახურთა ყოფნა წარმოუდგენელია – 2, 3 კაცი აქ მთელ ფართობს იჭერს. თუმც იგი არასდროს გათხრილა, ხომ არ შეიძლება ისიც ვისიმე საფლავის კულტს დავუკავშიროთ და მემორიული დანიშნულებით ავხსნათ მისი უცნაურობა?
თუ ამ მსჯელობას მართებულად მივიჩნევთ, იგი კიდევ უფრო განმტკიცდება ოდნავ შემდგომი ხანის ერთი მაგალითით. ურავლის აგარის მონასტერში, მთავარი ტაძრის სამხრეთ-აღმოსავლეთით დგას უთლელი ქვით ამოყვანილ მაღალ კრიპტაზე (!) აღმართული თლილი ქვის, XIII საუკუნის აფსიდიანი სამლოცველო, რომელიც დასავლეთი და სამხრეთი მხრიდან დიდი თაღებითაა ღია, რითაც აზმანას ეკლესიას ენათესავება.
 |
 |
| uravlis agara, 'Ria~ eklesiis gegma. marsagiSvilis anazomi |
uravlis dasavleTis kedeli. g. marsagiSvilis foto |
 |
azmana. rekonstruqcia. nax.
S. meliqiZis |
ამგვარად, “გახსნილი” ეკლესიები ადრეულ ხანაში არსებულ არქიტექტურულ ტრადიციას უნდა გვიჩვენებდნენ, რომელიც ოდნავ მოგვიანებითაც (XIII-XIV საუკუნემდე მაინც) ყოფილა გავრცელებული. თუ ყოველივე ზემოთქმულის მერე მივუბრუნდებით ზედაზნის წმ. იოანე ზედაზნელის საფლავის ეკლესიას, შეიძლება ვივარაუდოთ, რომ მისი გრძივი კედლების კამარისძირა თარო იმ სახითვეა ჩვენამდე მოღწეული, როგორც VI საუკუნეში იყო. შესაბამისად, ეს ეკლესიაც დასავლეთიდან კედლით კი არა, გამჭოლი თაღით იქნებოდა დასრულებული.
ასეთი ტიპის ეკლესიებზე მსჯელობისას აუცილებლად აღსანიშნია ადრექრისტიანული ხანის კიდევ ორი დარბაზული ტაძარი – მეტად უცნაური და დიდად დაკავშირებული ზემოჩამოთვლილ ნიმუშებთან. ერთ-ერთი მათგანი უჯარმის ჯვარიპატიოსნის მცირე დარბაზული ეკლესიაა, რომელიც XIV საუკუნეში მეორე სართულად დაშენებული სამლოცველოს ქვეშ დღემდეა შემონახული, იგი კარგად თლილი ქვითაა ნაგები და სტილისტური ნიშნებით IV თუ V საუკუნით თარიღდება. ამ მომცრო ეკლესიის აფსიდიან სივრცეში ჩრდილოეთის კარიდან შევდივართ, მის მოპირდაპირე სამხრეთ კედელზე კი გარეთ გამავალი დიდი თაღია ამოყვანილი. ეკლესიის ადრეულობას მეტყველებს ამ თაღის ნაწილობრივ დამფარავი “უჯარმული” წყობის ბურჯის არსებობა, რომელიც, თავადვე ადრეული, ეკლესიის მშენებლობის ზედა ზღვარს V საუკუნის ბოლოთი უნდა განსაზღვრავდეს.
 |
ujarma. gegma. n. CubinaSvilis mixedviT; ujarma. rekonstruqcia.
nax. S. meliqiZis |
 |
mcxeTa. antioqia. gegma. rekonstruqcia.
d. xoStarias mixedviT |
მეორე მაგალითი ასევე ადრეული ხანის, V საუკუნეში აგებული, მცხეთის ანტიოქიაა – თლილი ქვით ნაგები დარბაზული ეკლესია, რომელსაც დასავლეთიდან მოგვიანებით მიაშენეს ორსართულიანი კარიბჭე. ძირითადი სივრცის სამხრეთის მხარეს კედლის ნაცვლად აქაც ბურჯზე დაყრდნობილი ორი დიდი თაღია ამოყვანილი (მოგვიანებით იგი აგურისა და ქვის წყობის კედლით ამოუშენებიათ).
ძნელია უჯარმისა და მცხეთის ანტიოქიის შემთხვევაში ამ ღია ეკლესიების წმინდანთა საფლავებთან დაკავშირებულ “მემორიულობაზე” ვისაუბროთ, მაგრამ ამ მხრივ – “გახსნილი” ეკლესიების საფლავთან შესაძლო კავშირზე მსჯელობისას მრავლისმეტყველია ნეკრესის IV საუკუნის ბაზილიკა, რომელიც კრიპტაზე დგას და, როგორც ცნობილია, ყველა მხრიდან თაღებითაა დაცხრილული. დასავლეთიდან, მცირე ქარაფის მხრიდან, საიდანაც მისასვლელი არასდროს ყოფილა, ღია თაღების არსებობა ცხადყოფს, რომ ისინი მხოლოდ “შესასვლელგამოსასვლელი” ფუნქციისა არაა და წირვის დროს გარეთ მყოფთა რაღაცაგვარ თანადასწრებას ითვალისწინებს. ზემოჩამოთვლილ ეკლესიებთან ერთად ნეკრესის განხილვა გვიჩვენებს მისი “გახსნილობის” არა გამონაკლისობას ქართულ ხუროთმოძღვრებაში, არამედ გარკვეულ ტრადიციასთან მის მჭიდრო კავშირსა და ორგანულობას.
 |
nekresis bazilika.
gegma. v. cincaZis mixedviT |
ამგვარად, როგორც ირკვევა, ჩნდება მთელი ჯგუფი ეკლესიებისა, რომლებიც ძირითადად ადრეულ ხანას მიეკუთვნება და მათი უმრავლესობა შეიძლება მემორიებს თუ “საფლავსა ზედა” ეკლესიებს წარმოადგენდნენ, რომლებშიც ღმრთისმსახურის მიერ წმინდანის (ან ეგებ ჩვეულებრივი გარდაცვლილის) მოსახსენებელი ლოცვა აღევლინებოდა, გარეთ კი მლოცველები იდგნენ, რაც განსაზღვრავდა კიდეც შენობის როგორც ზომებს, ისე დიდი თაღებით გახსნილობასაც.
აქვე უნდა გავიხსენოთ ჭერემის კვადრატი, ოთხივე მხრიდან თაღებიანი მცირე ნაგებობა, რომლის ქვეშაც კრიპტაა მოწყობილი.
რას შეიძლება დავუკავშიროთ ნაგებობათა ეს ჯგუფი?
მახლობელი აღმოსავლეთის შუა საუკუნეების ხუროთმოძღვრებაში ამგვარი ნაგებობების უშუალო პარალელი არ მოგვეპოვება. მათ ზოგად სტრუქტურას მხოლოდ მიაგავს თავისი კამაროვნებითა და ერთი მხრიდან გახსნილობით ტიგროსის აუზში მიკვლეული ნაგებობები. დასავლეთი კედლის გარეშეა აპამეას დიდი ეკლესიაც, აგრეთვე ბოსრას ბაჰირას ეკლესია, რომელიც დიდი ზომისაა (მხოლოდ დასავლეთი ღიობის სიგანე დაახ. 11 მ-ია), იქვეა მცირე ეკლესია “ბაჰირას სახლად” წოდებული – აფსიდა მხრებით, დასავლეთი ნაწილის გარეშე.
არის მსგავსი ნაგებობა სომხეთშიც, კასახის ბაზილიკას ჩრდილოეთიდან მიშენებული მოცულობა – აფსიდა გრძივი კედლებით, დასავლეთი კედლის გარეშე.
 |
Weremis kvadrati.
gegma da fasadi. v. cincaZis mixedviT |
ამ მაგალითების არსებობის მიუხედავად, თანამედროვე სახელოვნებათმცოდნეო ლიტერატურაში ასეთი ეკლესიები ცალკე ჯგუფად დღემდე არაა გამოყოფილი, რაც აძნელებს კონკრეტულ მიმართებებზე საფუძვლიან მსჯელობას. მაგრამ ყველაზე მნიშვნელოვანი ჩვენი ეკლესიების ინტერპრეტაციისათვის რესაფას კომპლექსში არსებული, შენობების რიგში ჩართული “უ-დასავლეთ-კედლო”, ღია საკურთხეველია, რომელშიც, როგორც ამ ცნობილი საპილიგრიმო კომპლექსის გამთხრელი, ულბერტ ტილო მიუთითებს, წმინდა სერგის მოხსენიების დღეს მის ნეშტს დაასვენებდნენ ხოლმე, რადგან შენობის წინ, გარეთ მდგომთ საშუალება ჰქონოდათ პატივი მიეგოთ წმინდა ნაწილებისათვის. და მაინც, რა შეიძლებოდა ყოფილიყო მთავარი იმპულსი ამგვარი – აფსიდიანი, ღია, მარტირიუმებისა თუ გარდაცვლილთა კულტთან დაკავშირებული ნაგებობების შექმნისას?
 |
zemo bari.
eklesiis dasavleTis kedeli.
(avtoris foto) |
იერუსალიმში, IV საუკუნეში, კონსტანტინე იმპერატორმა უფლის საფლავზე სვეტებითა და თაღებით ყველა მხრიდან გახსნილი როტონდა ააგო. ცენტრში, საფლავსა ზედა, კუბიკულა აღმართა. ამ უკანასკნელის სარწმუნო რეკონსტრუქციით, კლდეში ნაკვეთ საფლავზე აღმართულ მოცულობას, წინ ღია აფსიდა ჰქონდა, რომელიც გარეთ, მიმსვლელებისკენ იყო მიქცეული – იგი ანგელოზის ქვაზე გამოცხადების ადგილსა და აღდგომის ნიშნად აკლდამის გადაცურებული კარის ადგილს აღნიშნავდა. მასში ტრაპეზი იყო გამართული. ამ ნაგებობის V საუკუნის ქვის ერთ-ერთ მოდელზე აფსიდა ღია ბალდახინით გრძელდება და ჩვენი ეკლესიებივით ორქანობად გვირგვინდება. ქართული ეკლესიები, საფიქრებელია, სწორედ უფლის საფლავის ნაგებობას უკავშირდებიან, მისი ძირითადი სტრუქტურა – წმინდა საფლავზე აღმართული აფსიდიანი გამჭოლი მოცულობა – უნდა ქცეულიყო ქართველ ხუროთმოძღვართათვის იკონოგრაფიულ და შემოქმედებით იმპულსად ზემომოტანილი ეკლესიების მშენებლობისას.
 |
 |
uflis saflavis konstantine
imperatoriseuli edikula. gegma m. bidles mixedviT |
uflis saflavis edikulis
modeli narbonidan. V saukune |
სტატიის ავტორი – ნიკოლოზ ვაჩეიშვილი; გ. ჩუბინაშვილის სახ. ქართული ხელოვნების ისტორიის
ინსტიტუტი, საქართველოს კულტურული მემკვიდრეობის საინფორმაციო ცენტრი;
|