ძველი და ახალი მასალები იკორთის ტაძრის შეკეთება-აღდგენის შესახებ
XII საუკუნე, რომელიც საქართველოს პოლიტიკური სიძლიერის მწვერვალს წარმოადგენდა, ამავე დროს სრულიად განსხვავებული, პროგრესული მსოფლ-მხედველობის დამამკვიდრებელიც იყო. ახალი აზროვნების უმნიშვნელოვანეს ფორმას ადამიანის პირადი ღირსების წარმოჩენა წარმოადგენდა. მოწინავე მოაზროვნე საზოგადოებაშიც და სახელმწიფოს მართვა-გამგეობის სფეროშიც საქმიანობა სწორედ ამ ძირითად, ახალ მოძღვრებაზე იყო დამყარებული.
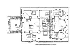
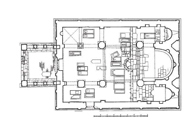
ამ ჰუმანურმა იდეებმა თავისი გავლენა იმდროინდელი ხუროთმოძღვრების შინაარსსა და იერსახეზეც მოახდინეს. ერის ძლიერების აღმნიშვნელ მონუმენტურ და ეროვნული სულისკვეთებით გამსჭვალულ, მაშსტაბური და ამაღლებული შინაარსით დატვირთულ XI საუკუნის ხუროთმოძღვრებას, რომელსაც ვ. ბერიძის თქმით ზოგადნაციონალური მნიშვნელობა ენიჭება და ერის გაერთიანების სიმბოლოდ წარმოგვიდგება, XII საუკუნეში ცვლის უფრო კამერული, ინდივიდუალური, ინტიმური `პიროვნული~ არქიტექტურა. იკორთის მთავარანგელოზის ტაძარი სწორედ ამ ეპოქის (XII ს.) ქართული ხუროთმოძღვრების შესანიშნავი ნიმუშია. საუკუნეთა მანძილზე იგი საქართველოს ერთ-ერთ მძლავრ კულტურულ ცენტრს წარმოადგენდა. დიდია მისი ისტორიული მნიშვნელობაც. გვიანფეოდალურ ხანაში იკორთა ქსნის ერისთავთა საგვარეულო საძვალე იყო. სწორედ ამ ტაძარში ჰპოვა საბოლოო განსასვენებელი 1659 წლის კახეთის აჯანყების გმირების _ შალვა და ელიზბარ ერისთავებისა და ბიძინა ჩოლოყაშვილის სპარსეთიდან ჩამოსვენებულმა ნეშტმა. იკორთის ტაძარი მდებარეობს შიდა ქართლში, ქ. გორიდან 20-ოდე კმ-ის მოცილებით, ვიწრო ისროლის ხევში (ადგილობრივები ამ ხევს გადაკოდილას უწოდებენ), მთებით გარშემორტყმულ შევაკებაზე. ვახუშტი ბატონიშვილის თქმით: `ბიყრის ზეით არს ისროლისხევი, ვითარცა სხუანი ამ მხრის მთის ადგილნი, იწრო, ტყიანი და მწირი. ხოლო კუალად ორბოძლის მთის სამხრით არს მთის კალთასა შინა, იკორთის მონასტერი დიდი, გუმბათოვანი, კეთილად ნაშენი კარგს ადგილს, ზის არქიმანდრიტი~ ე. ი. ვახუშტი ბაგრატიონის დროს XVIII საუკუნეში ტაძარი ჯერ კიდევ მოქმედია. იკორთის მთავარანგელოზის ტაძარი წარმოადგენს ცენტრალურ-გუმბათოვან ნაგებობას (18.50X13.25), რომელშიც გუმბათი ეყრდნობა საკურთხევლის კუთხეებს და დასავლეთით ორ ბოძს. ჯვრის დასავლეთი მკლავი წყვილი სვეტით არის გაყოფილი და დაგრძელებული. აღმოსავლეთით ის ღრმა აფსიდით სრულდება. საკურთხეველი ბემით არის გადიდებული. პასტოფორიუმებიც აფსიდიანია და ეკლესიის დანარჩენ სივრცეს თაღით უერთდება. მათ თავზე სამალავებია მოწყობილი.
 |
| gegma |
გარედან ეკლესია მოპირკეთებულია თლილი ქვით. ფასადები მორთულია თაღნარით და ორნამენტით. განსაკუთრებით გამოიყოფა გუმბათი, რომლის თორმეტივე სარკმლის საპირე დაფარულია ცვალებადი ორნამენტული მოტივებით. ეკლესიის ინტერიერში შემორჩენილია XII-XIII საუკუნეების კედლის მხატვრობა.
რთული და მძიმე იყო იკორთის მონასტრის ცხოვრება. საუკუნეთა მანძილზე იგი არაერთგზის მიუტოვებიათ: ფუჭდებოდა მისი გადახურვა, წყალი რეცხავდა XII საუკუნის შესანიშნავ მხატვრობას. არ მოაღწია ჩვენამდე თანადროულმა მოჩუქურთმებულმა კარიბჭეებმაც. XVII საუკუნეში ტაძარს დასავლეთიდან ახალი კარიბჭე მიუშენეს. ამ დროს მონასტერი ქსნის ერის-თავებს ეკუთვნოდათ. მათ იკორთა სიმაგრედ უქცევიათ, ეკლესიის ირგვლივ გალავანი შემოუვლიათ, რომლის აღმოსავლეთ მხარეს, კუთხეებში სწორკუთხა კოშკები აუგიათ, ხოლო დასავლეთით, შემაღლებაზე საკმაოდ რთული კონფიგურაციის ციტადელი აღუმართავთ.
ციტადელის ნანგრევები დღესაც ძალიან შთამბეჭდავად გამოიყურება, გალავნისაგან კი აღარაფერია დარჩენილი. ასევე სრულიად განადგურებულია მონასტრისთვის აუცილებელი სხვადასხვა დანიშნულების ნაგებობანი, რომელთა არსებობაზე XIX-XX საუკუნეების არაერთი მკვლევარი მიუთითებს. ტერიტორიის ბორცვული ზედაპირიც იმის მანიშნებელია, რომ მიწის აღებისა და გაწმენდის შემთხვევაში, აქ ნამდვილად აღმოჩნდება სამონასტრო ნაგებობათა კვალი. იკორთის ტაძრის აღშენებაზე, ისტორიულ წყაროებში ცნობა არ მოგვეპოვება. ერთადერთი მონაცემი მშენებლობის შესახებ შემორჩენილი ყოფილა ლაპიდარულ წარწერებში, რომელნიც განთავსებული იყო ეკლესიის აღმოსავლეთ და დასავლეთ ფასადებზე და მათაც კი, ჩვენამდე სრული სახით არ მოუღწევიათ. სააღმშენებლო წარწერა მთლიანად განადგურებულია. დღეს არარსებულ, ძლიერ დაზიანებულ და სახეცვლილ წარწერათა შესახებ შეიძლება ვიმსჯელოთ მხოლოდ XIX საუკუნის მკვლევართა პუბლიკაციების მიხედვით. იკორთა სწორედ ამ პერიოდში განსაკუთრებული პოპულარობით სარგებლობდა და წარწერებიც სხვადასხვანაირად არის გაშიფრული. ეკლესიის ლაპიდარული წარწერებიდან აღშენების თარიღის მანიშნებელი იყო დასავლეთისა, რომელიც შესასვლელის მარჯვნივ იყო განთავსებული. ამჟამად მისგან მხოლოდ სამი ასო არის შემორჩენილი. საყურადღებოა, რომ ეკლესიას მცირე ზომის თანადროული კარიბჭის ნაცვლად სწორედ დასავლეთიდან მიადგეს XVII საუკუნეში დიდი და ახალი, რომელმაც იმთავითვე გაართულა წარწერის წაკითხვა. მკვლევართაგან ეს წარწერა გაშიფრულია მარი ბროსეს, თედო ჟორდანიასა და პლატონ იოსელიანის მიერ. ყველაზე სრულყოფილი სახით, ასომთავრული ასოების გადმოხატვით, ეს წარწერები მოცემულია მხოლოდ მარი ბროსეს `რაპორტებში~. ბროსე წარწერას შემდეგნაირად კითხულობს:
`ქ. სამებაო, ერთობაო, ადიდენ ორთავე შინა
ცხოვრებათა ეგდნ სუ... და ბეშქენ
...ბჭესა ვრდა ჰერისთავსა ესტატეს მხლ
....თ და ლოცვა ჰყავთ ქვხ ტჟბ~
ორ დანარჩენ მკვლევარს მხოლოდ ტექსტი აქვს მოყვანილი. პლატონ იოსელიანთან (1865 წ.) წარწერა ასე იკითხება: `სამებაო ერთობაო ადიდენ ორთავე შინა ცხოვრებათა ეგურდან სოლომონ და ბეშქენ - - - ó ...ბჟესა ვარდან ერისთავერისთავი, ლოცვა-ყავთ ქრონიკონსა ტჟბ~
ბროსესა და იოსელიანის წაკითხულს შორის განსხვავება მეორე სტრიქონის სახელებში (ეგურდან, სოლომონ - პ.ი. და ეგდნ სუ-მ.ბ.) და ნაწილობრივ მე-3 სტრიქონშია. ამასთან, იოსელიანი უფრო შემოკლებულ ვარიანტს წარმოგვიდგენს. რაც შეეხება ქორონიკონს, ანუ 1172 წელს, იგი უცვლელი რჩება ყველას ტექსტში. პლატონ იოსელიანის აზრით, წარწერაში მოცემული სახელები უცნობია ისტორიისთვის და თუმცა ქორონიკონით მოცემული წელი, მისი აზრით, შეეფარდება 1172 წელს, ანუ მეფე გიორგი III ბრწყინვალის მეფობას, ის ამ თარიღს ეკლესიის შეკეთების და არა აღშენების თარიღად მიიჩნევს.
პლატონ იოსელიანის მოსაზრებებს ძეგლის თარიღზე ჩვენ კიდევ დავუბრუნდებით, ვინაიდან ეს თვალსაზრისი საკმაოდ პოპულარული გახდა იმდროინდელ პუბლიცისტიკაში და ატაცებულიც იყო საზოგადოების მიერ. ახლა კი ამ წარწერის ჟორდანიასეული ვერსია. 1892 წელს ჟორდანიას მიერ წაკითხული ტექსტი მცირედ განსხვავდება ზემოთ მოწოდებულისგან: `ქ. სამებაო ერთარსებაო ადიდე ორთავე შიგ ცხოვრებათა ე-ე (ერისთავერისთავნი) სუ[ლა] - - რ - - და ბეშქენ - - -ბჭესა: ვრდ: - - ლეიარსა (?) ე-ეს (ერისთავ-ერისთავს) მ-ხლ (მიხაილ?) - - თ: და: ლოცვა ყავთ: ქ - - : ტჟბ:~
პ. ზაქარაია, საგანგებოდ განიხილავს წარწერის ბროსესა და ჟორდანიასეულ ინტერპრეტაციას და აღნიშნავს, რომ ჟორდანიასთან ასომთავრულის გადმონაწერის არარსებობა სპობს შედარების საშუალებას. თუმცა ზოგიერთ სახელში განსხვავებაა. თარიღი ტჟბ აქაც უცვლელი რჩება.
ჟორდანიას დროს ხსენებული წარწერა უკვე ფრიად დაზიანებული ყოფილა. იგი აღნიშნავს, რომ მისი გაშიფრვა ცოტა განსხვავდება ბროსეს ვარიანტისაგან.
მეორე წარწერა, რომელიც ქტიტორთა სახელებს შეიცავს კარგად არის შემონახული. იგი მოთავსებულია აღმოსავლეთი ფასადის ცენტრში, დეკორატიული ჯვრის ჰორიზონტალური მკლავების ქვეშ. წარწერა დაქარაგმებულია. მისი გაშიფრვა ბროსეს გაუჭირდა. იგი მოკრძალებულად გვთავაზობს თავის მოსაზრებას: `ძელო ცხოველო შეიწყალე სული ესტატესი~, ამას კი მოყვება საკმაოდ არეული დაუსაბუთებელი მოსაზრებები და, ბოლოს, სახელთა ჩამონათვალი: ვარდ ან ვრდა, არსენი, იოანე, ბასილი და თლგაი.
ამავე წარწერას თ. ჟორდანია შემდეგნაირად კითხულობს:
`ძელო ცხოველო: შეიწყალნ(შ-ნ) სულითა ერისთავ-ერისთავნი (ე-ე) ვრდა (ვარდა?): არსენი: ჭ: ბ: (ჭიაბერი): ვასილი და თალაგა~.
ჟორდანია დასძენს, რომ დურბინდის უქონლობის გამო შეიძლება შეცდომით იყოს ამოკითხული სიტყვა `ბასილი~. წარწერაში ხსენებულ ჭიაბერს ჟორდანია უკავშირებს მეფე გიორგი III-ის გაზრდილს და თამარის თანამოღვაწე ისტორიულ პირს. ვარდანთან დაკავშირებით ის რამდენიმე ვერსიას გვთავაზობს: I - ვარდან მეჭურჭლეთუხუცესი, II - ვარდან კოლანკელიძე ერისთავი, III - ვარდან დადიანი.
პლატონ იოსელიანი იძლევა თითქმის იგივე ინტერპრეტაციას, ოღონდ ვერ ხსნის ასოებს ჭ და ბ-ს, რომლებიც ყველა მკვლევარის მიერ ჭიაბერად არის მიჩნეული.
ვინაიდან ძეგლის აღშენებისდროინდელი წარწერებიდან ეს ერთადერთი დღესაც არსებული წარწერაა, მისი შედარებით სრული გაშიფვრა პ. ზაქარაიას ეკუთვნის.
`ძელო ცხოველო, შეიწყალე სულითა ერისთავ-ერისთავი ვარდანი, არსენი, ჭიაბერი (?), ბასილი და თლსგგა (თვალისგუგა?)~
ზაქარაიას აზრით, ტაძრის არქიტექტურული მონაცემები ეთანხმება წარწერაში მოცემულ თარიღს - 1172 წელს, რაც შეეხება ზედა წარწერას, რადგან იგი მთლიანად არ იკითხება, სახელების გაშიფვრა სავარაუდოა. სახელი ვარდანი ეჭვს არ იწვევს, თუმცა ისტორიულ წყაროებში ეს სახელი არ გვხვდება. რაც შეეხება სავარაუდო ჭიაბერს, ავტორი იზიარებს უკვე არსებულ მოსაზრებებს და უკავშირებს ამ სახელს ისტორიულ პირს, რომელიც გიორგი III-ის მეჯინიბეთუხუცესი ყოფილა თამარს კი მისთვის მანდატურთუხუცესობა უბოძებია.
მ. ბროსეს გამოქვეყნებული აქვს დასავლეთი ფასადის კარიბჭის თავზე მოთავსებული კიდევ ერთი ოთხსტრიქონიანი წარწერა, რომელიც დღეს აღარ არსებობს. იგი წარწერას ასე კითხულობს:
`ქ. ხმა დგი ქმული ხელთა შენთა მეუფეო. რომელმან ბესელიელსა ასწავენ
სიბრძნთ ქმნასა ვეცხლისა და კვალად გაწმენდილსა არქიპოსს თვთ ბრ(ძანე)
გება ტაძრისა. მეცა უღირსი პერებელ შეიწყალე~.
პ. ზაქარაია დედნის მოშლის გამო კომენტარისგან თავს იკავებს.
იგივე წარწერა, ოღონდ საკმაოდ სახეცვლილი, მოყვანილი აქვს პლატონ იოსელიანსაც:
`...სადგური ქმნილი ხელთა ჩუნთა რომელმან სო
..ლომონს ასწავა სიბძნითა ქმნა.............
...შენდა მოსავსა კეთილგანწმენდილსა არქიპოზ აგება
ტაძრისა, მეც უღირსი ბასილი შემიწყალე~
ამ წარწერას იოსელიანი შემდეგ განმარტებას აძლევს: `სოლომონის სახელი, როგორც ღმერთის ტაძრის პირველი აღმშენებლისა, ცნობილია. რაც შეეხება სახელ არქიპოზს (ბროსესაც ეს სახელი დაფიქსირებული აქვს), იგი აკავშირებს მას IV საუკუნეში მცხოვრებ არქიპოსთან, რომელიც ხონას მთავარანგელოზ მიქაელის ტაძარში იმყოფებოდა და როდესაც წარმართებმა ტაძრის დანგრევის მიზნით მდინარიდან არხი გათხარეს, არქიპოს ლოცვამ შთანთქა წყალი და გადაარჩინა ტაძარი. ამავე თემაზე იოსელიანს უფრო ვრცელი ლეგენდაც აქვს მოყვანილი, ხოლო არქიპოზის სასწაულის თარიღად _ 6 სექტემბერი, რაც, მისი თქმით, იკორთის ტაძრის დღესასწაულს ესადაგება. პლატონ იოსელიანის აზრით, ეს ერთ-ერთი უმნიშვნელოვანესი მიზეზია მთავარანგელოზის ტაძრის იკორთაში აღშენებისა და სახელი არქიპოს ხსენება საკმარისია ამის დასასაბუთებლად. იგი წუხს იმაზედაც, რომ ქართულ წყაროებში, მისი სიტყვებით, `ქართველ მწერლებს~ ამაზე არაფერი დაუწერიათ.
საერთოდ, პლატონ იოსელიანი იკორთასთან დაკავშირებით ძალიან საინტერესო, მაგრამ, ამავე დროს, საეჭვო ცნობებსაც იძლევა. მან პირველმა, ამ დროის მრავალრიცხოვან მეცნიერთა შორის, დაუკავშირა ტაძრის აღშენება VII საუკუნეს, კერძოდ, ადარნასეს მმართველობას, რაც ნაწილობრივ გაზიარებული იყო იმდროინდელი პრესისა და ზოგიერთი მკვლევარის მიერ. პ. იოსელიანი აღნიშნავს, რომ იკორთა, ძველ აქტებში ვირშის სახელით არის ცნობილი და უკავშირებს ამ სახელს
ერისთავების საგვარეულოს, რომელთა ქარტებში ეს სახელი ჯერ კიდევ ადარნასე პირველის დროს იჩენს თავს, რის დასტურად იგი ბროსეს მიერ ლარგვისის წმინდა თევდორეს მონასტერში დაცულ უძველეს პერგამენტზე შესრულებულ აქტს იმოწმებს. თქმულებით ვირშა აღმშენებლის სახელი კი არ არის, არამედ ერისთავთა სახელწოდებაა (ვირშელები, ბიბილურები და სხვ.). ტაძრის სიძველის დასამტკიცებლად პლატონ იოსელიანს საბუთად მოყავს (მხოლოდ სიტყვიერად) XVII საუკუნის დოკუმენტი, რომელიც ქსნის ერისთავებთან ჰქონია აღმოჩენილი. საბუთში მითითებული ყოფილა, რომ ტაძარი ბერძენ იმპერატორ იუსტინიანეს დროს აუგიათ ქსნის ერისთავებს. თვითონ იოსელიანს სარწმუნოდ მიაჩნია ეს საბუთი და თვლის, რომ ასეთი ინფორმაცია შეუძლებელია ყოფილიყო დაფუძნებული მხოლოდ ზეპირ გადმოცემაზე. მას აუცილებლად ადრეული საბუთი ექნებოდა საფუძვლად. თუმცა თვითონ იგი მის მიერ ნანახი დოკუმენტის ადგილსამყოფელს არ მიგვანიშნებს.
პ. იოსელიანის აზრით, ტაძარი უეჭველად VI საუკუნეში იყო აგებული, ოღონდ ტაძრის კედლებზე შემორჩენილი სააღმშენებლო წარწერაში 1172 წლის ხსენება მიგვანიშნებს იმას, რომ XII საუკუნეში ტაძარი განახლებული ყოფილა.
ყველაზე გასაკვირი და გასაოცარია იოსელიანისეული ტაძრის აღწერა. იკორთის მაღალყელიან, ატყორცნილ გუმბათს იგი აღწერს როგორც დაბალს, გაბრტყელებულს, მისი სიტყვებით ისეთს, როგორსაც XI საუკუნემდე აგებდნენ საქართველოში. გარდა აღმოსავლეთი ფასადის ჯვრისა და ფესტონებისა, სხვა დანარჩენ საფასადო მორთულობასაც იგი გვიანდელად მიიჩნევს.
სრულიად გაურკვეველია, რამ გამოიწვია ტაძრის ასეთი შეფასება. საყურადღებოა, რომ დიმიტრი ბაქრაძეც იკორთის ტაძრის აღწერისას ზუსტად იმეორებს პლატონ იოსელიანის აღწერას. საერთოდ, ბაქრაძეს ძირითადად მოყავს სხვათა აზრი ამ ტაძრის შესახებ. თარიღში ის მერყეობს, თითქოს არ იცის ვის მიემხროს. მას ნეიტრალური პოზიცია უკავია. აღნიშნავს კიდეც, რომ თარიღი მისთვის ცნობილი არ არის, თუმცა ბროსე მიიჩნევს 1172 წელს, წარწერიდან კი მხოლოდ ის ირკვევა, რომ ტაძარი XVII საუკუნეში იყო აღდგენილი.
 |
| gengegma |
სამწუხაროდ, ამ ორი დიდი მეცნიერის ასეთმა პოზიციამ გარკვეული გავლენა მოახდინა იმდროინდელ პერიოდიკაზე. შესაძლებელია ვივარაუდოთ, რომ ოდესღაც ამ ადგილზე ეკლესია იყო აღმართული, თუმცა ეს არც ისტორიულ წყაროებში, არც, მით უფრო, ძეგლის დღევანდელი იერსახით დასტურდება. ტაძრის მხატვრულ-სტილისტური ანალიზი უტყუარს ხდის ეკლესიის XII საუკუნის მეორე ნახევარში აგებას. შესაძლოა, ძეგლის გაწმენდამ და შურფების გაჭრამ ძველი ნაგებობის კვალი გამოავლინოს. ყოველ შემთხვევაში, ეს მომავლის საქმეა, ამ ეტაპზე კი იგი მთლიანად, სხვადასხვა დროის შეკეთების მიუხედავად, XII საუკუნის მეორე ნახევრის უტყუარი ნიმუშია.
კვლავ დავუბრუნდეთ ეკლესიის კედლებზე არსებულ წარწერებს. კიდევ ერთი, ძველი დროის მკვლევართათვის უცნობი წარწერა, დაფიქსირებული იყო პ. ზაქარაიას მიერ აღმოსავლეთ ფასადზე, სარკმლის ქვეშ:
`ქრისტე შეიწყალე ეგნატი სულით ამინ~.
ეს წარწერა პალეოგრაფიული ნიშნებით განსხვავდება იკორთის დანარჩენი წარწერებისგან და, როგორც პ. ზაქარაია აღნიშნავს, შემთხვევით ადგილზეა ჩასმული, სარკმლის მომჩარჩოებელი ლილვის ქვეშ. ეს, შესაძლოა, ადრეული (XIV ს-ის) შეკეთების შედეგია. აქ ნახსენები პირი, ეგნატი, უცნობია ისტორიაში.
ტაძრის შემდგომი ცხოვრების აღსადგენად საგულისხმოა მემატიანეს ცნობა: დიდ წვიმობამ და ქსნის ადიდებამ ლარგვისის ტაძარი დაანგრია. მაშინ ერისთავმა იოანემ იწყო შენება და სამ წელში აღაშენა ლარგვისის ტაძარი. ამავე ჟამსა ქვემო დვალთა `წარასხეს ზროხაი აწერის ხევით. ესმა ერისთავსა იოანესა და განილაშქრა. ხოლო ყრმა იგი ვირშელი წუთღა ჩ£ლ იყო. არამედ წინამძღვარ ექმნა ლაშქართა თვისთა და გარდავლეს მთა თუესა ოკდონბერსა სავსე თოვლითა, და აღივსნეს ლაშქარნი ყოვლითა ალაფითა და ნატყუ£ნვითა და წარმოვიდნენ განმარჯვებულნი. მაშინ მოშლილიყო იგი საყდარი იკორთას, მთავარანგელოზისა მიქალისი და იწყეს შენებად, და კუალად ყანჩაეთს მეორედ აღმშენებელ იქმნნეს ტაძრისა დედისა ღმრთისასა.~
თუმცა მატიანეში ზუსტი თარიღი არ არის მითითებული, ლარგვისის ტაძრის დიდწვიმობაში დანგრევა და აღდგენა, რომელიც XIV საუკუნის მეორე ნახევარში მოხდა _ და ყანჩაეთის კაბენის ღმრთისმშობლის ეკლესიის ამავდროული შეკეთება აზუსტებს თარიღს XIV საუკუნის მეორე ნახევრით.
შედარებით ნათელ სურათს იძლევა ფასადების წყობა. XIV საუკუნის წყობის ხასიათი დიდად განსხვავებულია. XII საუკუნის შედარებით დიდი ზომის ქვები იცვლება უფრო წვრილით, რიგების ჰორიზონტალობის მეტ-ნაკლები დაცვით. ასეთი ხასიათის წყობა ეკლესიის ფასადების ნახატში სხვადასხვა ადგილზე იჭრება.
ტაძრის ცხოვრების შემდეგი ეტაპი კვლავ მის კედლებზეა აღბეჭდილი. ძეგლის თანადროული კარიბჭე ადრევე მოიშალა. დასავლეთი შესასვლელის დიდ ქვაზე ვრცელი წარწერაა მოთავსებული, რომელიც, როგორც ვიცით, ნაწილობრივ დაფარა მოგვიანებით მიდგმულმა ახალმა კარიბჭემ.
ეს მხედრული წარწერა იკორთის ტაძრის ოთხივე მკვლევართან (ბროსე, იოსელიანი, ჟორდანია, ზაქარაია) არის მოტანილი.
ა:შე...
- - - - როდამ დიდ...
- - - - ცოლყოფილმან...
- - - - მთის თავმან იესე ვიგულის მო...
ღვთაებისაგან ეს მთავარანგელოზის...
ხელ ახლად ხელ-ვყავით, ვითაც დიმ...
ოთხი სამხრო გავაკეთეთ, შიგნით სახლები...
ერებოდა სამრეკლო საძირკვლით გავასრულეთ...
თა აღვაშენეთ, სულისა ჩვენისა საოხად ძეთა ჩვენთა
სასულიარ...
ეგრძელოდ, შეიწირეთ წმინდანო მთავარ-ანგელოზნო
მეორე ესე მსახურე...
ოხ გვეყვენით, დღესა მას დიდსა განკითხვისასა,
ამასვე ქკსა ტი შანაოზ მეფის:
როგორც წარწერიდან ირკვევა, იესე ქსნის ერისთავს დიდი სამუშაოები ჩაუტარებია ტაძრის ტერიტორიაზე, სხვადასხვა სამონასტრო ნაგებობები და სამრეკლო აუგია და ეკლესია შეუკეთებია. ეს ყველაფერი მეფე შაჰნავაზის (1658- 1675 წწ.) დროს მომხდარა, 1672 წელს. მაგრამ არც ერთ ამ ნაგებობას დღემდე არ მოუღწევია. XVIII საუკუნეში შემოჭრილ მტრის ჯარს მთელი ტერიტორია დაუქცევია: `ქრონიკონსა უკზ (1738 წ.) თვესა ივლისსა წავიდა სეფი-ხან და ასლამას-ხან და ორი სხვა ხანი ისევ განჯას, მიუხდენ ერისთავ შანშეს, დააქციეს იკორთის სამრეკლო და კულბითის ციხე. ქრონიკონსა უკე აპრილს კიდე მოვიდა სეფი-ხანი დიდი ჯარით და აიღო ციხე იკორთისა~.
ტაძრის გალავანიც XVIII საუკუნის ბოლოს დაქცეული ყოფილა. ამის საბუთია მეფე გიორგი XII-ის მიერ თავისი ვაჟის იოანესადმი 1800 წელს მიწერილი წერილი: `წინამძღვარი იკორთისა მონასტრისა ჩივის მეზობლებზე ეკლესიისა მამულებსა არ გვანებებენო... გალავანიც დაქცეულა. უბრძანე სახასო გლეხთა შენობაზედ გაისარჯნენ რადგანაც მათი სალოცავიც არის.~24 იკორთის ბოლოჟამინდელი (XIX ს-ის ბოლო _ XX ს-ის დასაწყისი) ცხოვრების ისტორია სახოვნად წარმოჩნდა იმდროინდელ პერიოდიკაში და ხელნაწერთა ინსტიტუტში დაცულ წერილებში.
საინტერესოა ის ფაქტი, რომ ტაძარი ორჯერ ზედიზედ იყო შეკეთებული - პირველად XIX საუკუნის ბოლოს (1891 წ.), მეორედ კი XX საუკუნის დასაწყისში. სამწუხაროდ, ჩვენს მიერ მოძიებული მასალიდან არ ჩანს, რა იყო მიზეზი ტაძრის დაზიანებისა, რამაც განაპირობა ორი ათეული წლის შემდეგ მისი ხელახალი შეკეთება. სამაგიეროდ, ცნობილი გახდა რემონტის თარიღიც და ამ სარემონტო სამუშაოების შემსრულებელი არქიტექტორის ვინაობაც (ბილფელდი), ამავე დროს ჩატარებულ სამუშაოთა თანმიმდევრობა, ანგარიშსწორების წესი (ხარჯთაღ-რიცხვა), და მრავალი სხვა აქამდე უცნობი ის მასალა, რაც, ჩვენი აზრით, ძალიან საინტერესო უნდა იყოს.
იმისდა მიუხედავად, რომ იკორთა XIX-XX საუკუნის მეცნიერთა ყურადღების ცენტრში იმყოფებოდა, არსებული მასალა ჯერჯერობით უცნობია და ამიტომ ჩავთვალეთ საჭიროდ ის მეტ-ნაკლებად სრული სახით წარმოგვეჩინა. იკორთის პოპულარობამ განაპირობა მის გადასარჩენად სპეციალური კომისიის შექმნა. 1891 წლის `ივერია~ აშუქებს ამ ფაქტს: 1891 წლის თებერვალში გორის საკრებულო ტაძრის მღვდელმა იოელ გამრეკელმა საქართველოს ეგზარქოსს გამოსთხოვა ნებართვა ტაძრის განსაახლებლად. ვინაიდან იკორთა ქსნის ერისთავთა საგვარეულო სამარხი იყო. კომიტეტის წევრებად ძირითადად ერისთავები ჩაეწერნენ: გვარდიის პოლკოვნიკი, თავადი რევაზ შალვას ძე ერისთავი, პოლკოვნიკი, თავადი კონსტანტინე ბიძინას ძე ერისთავი, თავადები კონა (იაკობ) მირმანოზის ძე და კონსტანტინე ალექსანდრეს ძე ერისთავები, გორის ღმრთისმშობლის მიძინების ტაძრის მღვდელი იოელ გამრეკელი და იკორთის მღვდელი - დავით გამრეკელი. კომისიის თავმჯდომარედ არჩეულ იქნა გორის ეპისკოპოსი, უსამღვდელოესი ალექსანდრე. ამ დროს კომიტეტის ბიუჯეტი მხოლოდ თავად ივანე ჯამბაკურ-ორბელიანის მიერ შეწირულ 40 თუმანს შეადგენდა. იკორთის ნახვამ ეპისკოპოსს გული ისე აუჩუყა, რომ გადაწყვიტა ეკლესიის გადასარჩენად სასწრაფოდ შეეგროვებინა ფული. ამ წამოწყებას შესანიშნავი შედეგი მოყვა _ ერისთავებმა არ დაიშურეს თანხები თავისი საგვარეულო საძვალის გასამაგრებლად, შეძლებისამებრ ყველა გაისარჯა.
ამ კომისიის შექმნა სპეციალურად მოწვეულ სხდომაზე მოხდა. ამ სხდომაზე დამტკიცდა როგორც კომისიის შემადგენლობა, ასევე არქიტექტორ ბილფელდის მიერ შედგენილი ხარჯთაღრიცხვა, რომლის მიხედვით ტაძრის შეკეთებისთვის საჭირო იყო 6404 მანეთი და 71 კაპიკი. მღვდელ იოელ გამრეკელს დაევალა შეედგინა ტაძრის მნიშვნელობის და ისტორიის ამსახველი დოკუმენტი, სადაც აისახებოდა ძეგლის აღდგენის საჭიროება და მიზანი. მასვე დაევალა ჟურნალის წარმოება შემოსავალ-გასავლის აღნუსხვით. ჟურნალში ყოველი შემოწირულობისა და გასავალის აღნიშვნა მოწმდებოდა ეკლესიის ბეჭდით, კომისიის თავმჯდომარისა და ყველა წევრის ხელმოწერის თანხლებით.
იკორთის ტაძარზე სამუშაოთა მიმდინარეობა შესანიშნავად ისახება მღვდელ იოელ გამრეკელის წერილებში ალექსანდრე ეპისკოპოსის (ოქროპირიძე) მიმართ. 19.VII.1891 წ.
`...გუშინ ამ თვის 18-ს მე გამოვგზავნე ექსარხოსის კანცელარიაში გარდასაცემად არქიტექტორის ბილფელდისადმი 22მ. 40კ. საგზაო და შესადგენად ხარჯისა (სმეტისა), თუ რა მოუნდება იკორთის ეკლესიას განსაახლებლად დიდი ხანია ველოდებით. ... თუმცა წელს მუშაობა ვგონებ აღარ მოხერხდება, მაინც ფულის მოგროვებას შეუდექით და საქმის დაწყებას; თქვენ როდესაც მობრძანდებით რა საკვირველია უბრძანებთ არქიტექტორს ბილფელდს თან გიახლოთ თქვენთან და აქ როგორც გვიბრძანებთ ისრე მოვიქცევით.~
შემდეგი ორი წერილი შემოწირულობებს და შესავალ-გასავლის ჟურნალს ეხება.
4.VII.1892 წ.
იკორთის ეკლესია გარეთგან კედლები რაც საჭირო იყო შეკეთდა სრულებით და კარგათაც გარდა ზემოთ კრიშისა და პოლისა. კამიტეტის წევრთა ვნახეთ, მოვიწონეთ და გარდავწყვიტეთ მივსცეთ პოდრაჩიკს ასი თუმანი. ორმოც და ათი თუმანი მისცა თავად რევაზ ერისთავმა... გთხოვთ ...ინებოთ და გამოიტანოთ ორმოც და ათი თუმანი (ბანკიდან) და ჩემს სახელზედ წარმოგზავნით. ძალიან საჭირო გახლავთ ოსტატები აწუხებენ პოდრაჩიკს. ფანჯრები სრულებით გაკეთდა და ჩავასხით კიდეც. რაც ნამუშევარი გახლავთ ძალიან სუფთა გაკეთებულია და მოუხდა ყველიფერი~.
16.IX. 1892...
`...იკორთის ეკლესია სრულებით რაც გასაკეთებელი გახლდათ გაკეთდა, ესე იგი ლომფინი (ლორფინი ი.ე.) დაიხურა. კედლები შეკეთდა, იატაკი დაეგო და მთლად გაჯით გაილესა. ერთის სიტყვით, რაც კი პირობა ჰქონდა ბერძნიდან შეასრულა - სმეტის გარეშე ჩვენ კიდევ სამი ოთახი დასავლეთის მხარეს შენობა რომ გახლავთ მოუმატეთ ბერძენს და აკეთებს იმ ფულში, რაიც პირობით უნდა გაეკეთებინა. ამ ოთახის კედლებიც ამ ერთ კვირაზედ მზათ გეახლებათ. კარფანჯარა ამ ოთახებისა თავად კონა ერისთავმა რამდენიმე წლის წინად გააკეთებინა და ის გაუკეთეთ. ფული 100 თუმანი როგორც პირობა ჰქონდა თავად რევაზ ერისთავსა მივეცით ბერძენს და აგრეთვე თქვენგან წარმოგზავნილი 100 თუმანიც სხვა ჩავაბარეთ და ამაზეთ შესავალ-გასავალში ხელი უწერია ბერძენს. კიდევ ფულს თხოულობს და ეგება ინებოთ და ეგ 80 თუმანი რომელიც ბანკში გახლავთ გვიბოძოთ... ზევით დამავიწყდა და აი მოგახსენებთ მაღლა გუმბათში და ერთი სიტყვით ყველგან ჩავასხით იკორთის ეკლესიას ფანჯრები, შუშებითა და რკინის ბადეებით. ერთი სიტყვით ორი კარების შებმის მეტი არა აკლია რა ისინიც ამ ერთ კვირაზედ მზათ გახლდებათ. სხვაფრივ როგორც მიბრძანებთ, ისე მოვიქცევი...~
ამგვარად, წერილებიდან ირკვევა, რომ 1892 წლისთვის იკორთის ტაძარი მთლიანად იყო აღდგენილ-შეკეთებული. იატაკიდან დაწყებული ლორფინის გადახურვით დამთავრებული. ეკლესია შეულესიათ კიდეც, ეტყობა, მხოლოდ ის ნაწილები, სადაც მხატვრობა არ იყო. ამ სამუშაოების შესრულებაში ბერძენ ოსტატს მიუღია მონაწილეობა.
1895 წლის `ივერიაში~ იკორთის შესახებ მოწოდებული ინფორმაციით ირკვევა, რომ მონასტერში სასულიერო სასწავლებელი არსებობდა. 1817 წელს მონასტრის გაუქმების შემდეგ მის აღდგენამდე ტაძარში წირვა-ლოცვა არ წარმოებდა. სამუშაოთა დასრულების შემდეგ, 1893 წლიდან ტაძარი კვლავ მოქმედი გახდა. იკორთის გადასარჩენად შექმნილ კომიტეტს გადაწყვეტილი ჰქონია ქვითკირის გალავნის აღდგენაც, მაგრამ, როგორც ჩანს, ეს იდეა არ განხორციელებულა. 1894 წელს, გრაფინია უვაროვას აღწერით, ტაძარი ცუდ მდგომარეობაშია. გალავანი დანგრეულია, თუმცა, როგორც ჩანს, შემორჩენილი ყოფილა გალავნის ოთხკუთხა კოშკები, რომლებშიც ადგილობრივ მაცხოვრებლებს საწყობი მოუწყვიათ.
მისივე ცნობით, იკორთის ტაძრის ტერიტორიის ირგვლივ მოსახლეთა საცხოვრებლები შენდება. უვაროვას მოხსენებას ახლავს ოტო-რენარის შესანიშნავი ფოტოები, რომელთა მიხედვით შესაძლებელია ტაძრის იმდროინდელი მდგომარეობის წარმოსახვა. შეუდარებელია ტაძრის მაშინდელი და დღევანდელი მდგომარეობა.
ტაძარი, უვაროვას საგანგაშო განცხადების მიუხედავად, მთელი თავისი კორპუსით არის აღმართული. ფოტოს მიხედვით ამოვსებულია გვიანი - XVII საუკუნის დასავლეთი კარიბჭის დასავლეთი თაღი და იმავე წყობით მიუშენებიათ სამხრეთი შესასვლელის წინ კარიბჭის ფუნქციის მატარებელი სრულიად სადა მინაშენი, რომელიც დღეს აღარ არსებობს. გუმბათი სრულად არის შემონახული. როგორც უვაროვა იტყობინება, ფოტოზე გარეგნული სისრულის და ჩატარებული სარემონტო სამუშაოების მიუხედავად, ძეგლი აშკარად მოუწესრიგებელ შთაბეჭდილებას ტოვებს.
უვაროვა ადასტურებს ცნობას XVIII საუკუნეში მიწისძვრის შედეგად ეკლესიის დაზიანებისა, რის შედეგადაც გამქრალა საფასადო თაღების კუთხის ლილვების დამასრულებელი ყულფი, რომლის კვანძში გველის თავის გამოსახულება ყოფილა ჩაწნული.
ბევრად უკეთ იყო იმ დროისთვის შემორჩენილი კარნიზიც, რომელიც დღეს მთლიანად გამოქარულია. უვაროვას მიერ გამოქვეყნებულ ფოტოებზე კარნიზი შემორჩენილია სამხრეთი და დასავლეთი ფასადების ძირითადი ჯვრის მკლავის ფრონტონებზე. როგორც ჩანს, სამხრეთი კარიბჭის დანგრევამ სამხრეთ-დასავლეთით თაღები დააზიანა. ფოტოების მიხედვით, ამ დროს ეკლესია ბაზალტის ქვის ორსაფეხუროვან ცოკოლზე დგას.
უვაროვა იზიარებს ბაქრაძის შეხედულებას ძეგლის ადრეულ ხანაში აგების თაობაზე და თვლის, რომ იგი ოსტატურად არის შეკეთებული, ისე, რომ არ იგრძნობა სტილისტური რღვევა, მან პირვანდელი იერი შეინარჩუნა. ტაძარს ამახინჯებს მხოლოდ მინაშენები, განსაკუთრებით სამხრეთი მხრიდან.
საყურადღებოა, რომ უვაროვა უთითებს ელიზბარ, შალვა ერისთავების და ბიძინა ჩოლოყაშვილის საფლავების ადგილმდებარეობას, რომელნიც, როგორც ჩანს, ჩრდილოეთ კედელთან იყო განთავსებული. ამავე წლის `ივერიის~ ქრონიკებიდან ვიგებთ, რომ ბერ გამალეილ გამრეკელს უაღრესად დიდი წვლილი მიუძღვის იკორთის აღდგენაში, სწორედ მისი შრომითა და მეცადინეობით იქნა განახლებული მონასტერი. გამრეკელს განათლება რომში მიუღია, შემდგომ რუსეთში გაყოლია ანტონ კათალიკოსს და იქიდან დაბრუნებისთანავე შეუდგა ტაძრის შეკეთებას. ამ დროს მონასტერთან გაუშენებიათ სახლები, მის მახლობლად დაუარსებიათ სოფლები ვანთა, ქვეში და ფლავი, შეუძენიათ მამულები ქოთისსა და ქუმისში, და დუქნებიც კი გორსა და თბილისში.
მონასტრის ასეთი გამძლავრება ტრაგიკულად დასრულდა- აღმოჩნდა, რომ გაურკვეველი მიზეზების გამო მონასტერიც და მის მიერ შეძენილი მთელი ზემოთ ჩამოთვლილი საკუთრება კერძო პირთა ხელში ყოფილა გადასული.
XIX საუკუნის ბოლო ინფორმაციით, 1895 წლის მაისში იგუმენი კირიონი საქართველოს ეგზარქოს, უწმინდეს ვლადიმირთან ერთად მგზავრობს ქართლში და მიმოიხილავს მთელ რიგ ეკლესიებს, რომელთა შორის იკორთას განსაკუთრებულ ყურადღებას უთმობს. ისიც, მსგავსად ყველა ზემოთ ჩამოთვლილი კორესპონდენტისა, იზიარებს ტაძრის ადრეულ ხანაში აგების პლატონ იოსელიანისეულ ვერსიას (VI- VII სს-ი) და მშენებლობას ადარნასე II-ს უკავშირებს. ძეგლის ავბედითი ცხოვრების აღწერის შემდგომ, იგუმენი კირიონი აღნიშნავს, რომ ეკლესიის დასაცავად შექმნილი კომისიის მიერ ძეგლის შეკეთების მცდელობისდა მიუხედავად, სამუშაოები ბოლომდე მიყვანილი არ არის. ამას თვით ეგზარქოსმა მიაქცია ყურადღება და აღნიშნა, რომ ტაძრის სახურავი დაზიანებულია, რაც ანესტიანებს ეკლესიის კედლებს და აფუჭებს კედლის მხატვრობას.
ამ ბოლო ინფორმაციის შემდეგ, ინტერესი იკორთის ტაძრის მიმართ რამდენიმე წლით თითქოსდა შენელდა. თუმცა, როგორც საბუთებით ჩანს, შეკეთების ორი წლის თავზე ეკლესიის სახურავი უკვე დაზიანებული იყო და ნგრევის პროცესიც თანდათან მატულობდა. თუ გავითვალისწინებთ იმასაც, რომ იკორთა სეისმურ ზონაში მდებარეობს (ამას მოწმობს XVIII ს-ში მიწისძვრით დანგრეული სამხრეთი სვეტი), შეგვიძლია ვივარაუდოთ, რომ მცირე ბიძგები, XX საუკუნის დასაწყისშიც იყო. ყოველ შემთხვევაში, შემდგომი მონაცემებით ირკვევა, რომ 1909-1910 წლებში ტაძარი კვლავ სავალალო მდგომარეობაშია.
1916 წელს გაზეთი `ახალი ფურცელი~ აქვეყნებს ინფორმაციას იმის შესახებ, რომ იკორთის ტაძარში სარესტავრაციო სამუშაოები მიმდინარეობს. სტატიის ავტორი, ვინმე სანგანიძე აღწერს აღფრთოვანებით იკორთის ტაძარს და მის გარემოს, ძეგლის შეკეთებასთან დაკავშირებით ფრიად საგულისხმო შენიშვნას იძლევა: `იკორთას ამჟამად რესტავრაციას უშვრებიან და ამისთვის უნდა შევნიშნოთ, რომ აღმოსავლეთის კედლიდან ძველი გამოჩუქურთმებულ დაკარგულ ჯვრებიან ალაგას (ნაგულისხმევია აღმოსავლეთი ფასადის ნიშების სამყურა ფესტონები ი.ე.) ახალი ჩაუსვამთ. ეს უკანასკნელი კი ძველების გვერდით სრულებით არა შვენიან. უმჯობესია, რაც დარჩა ის გაამაგრონ და მძლავრი შთაბეჭდილება სადა და მოთეთრო ჯვრებით არ გააქარწყლონ~.
არ შეიძლება არ დაეთანხმო ამ, შესაძლოა არაპროფესიული ენით დაწერილ, მაგრამ საოცრად ზუსტ ანალიზს იმ შეკეთებისა, რომელიც დღესაც ამახინჯებს ტაძრის აღმოსავლეთ ფასადს.
ამგვარად, მეორე ეტაპი რესტავრაციისა იკორთაზე დაწყებული ყოფილა 1916 წელს. ფაქტია, რომ ამ სასიკეთო საქმეში დიდი წვლილი მიუძღვით ზემოთ მოტანილ წერილების ავტორებსაც და ადრესატსაც.
როგორც ჩანს, უკანასკნელი შეკეთება შედარებით მოკრძალებული იყო. გარდა აღმოსავლეთი ფასადის ნიშებში ფესტონების ზემოთ აღნიშნული შეცვლისა, შეუკეთებიათ სახურავიც, თუმცა არ გაითვალისწინეს ექვთიმე თაყაიშვილის წინადადება ლორფინის თუნუქის სახურავით შეცვლასთან დაკავშირებით. რაც შეეხება XIX საუკუნის რესტავრაციას, იგი უფრო თვალშისაცემი და მასშტაბურია. ინტერიერში შეცვლილია გუმბათქვეშა სვეტები. საკმაოდ უხეშად შელესილი იყო სარკმლები, რის გამოც სარკმლის აბრისი უსწორმასწოროა (განსაკუთრებით გუმბათის სარკმლების შიდა პირი). ფასადებზე შეცვლილია წყობა ტაძრის ზედა ნაწილში (ჩრდილოეთი ფასადის ჩრდილო-დასავლეთ, სამხრეთი ფასადის სამხრეთ-აღმოსავლეთ და დასავლეთი ფასადის ჩრდილოეთ მონაკვეთებში).
ასევე, ძეგლის თითქმის მთელ პერიმეტრზე შეცვლილია ადრინდელი ორნამენტული კარნიზი. ძველი კარნიზის გამოქარული ფრაგმენტები შემონახულია ტაძრის ჩრდილო-დასავლეთ და სამხრეთ-დასავლეთ მონაკვეთებში. როგორც ვიცით, ეკლესიას ადრეული რესტავრაციის კვალიც აჩნია (XIV ს-ის II ნახ.). ინტერიერში, ეს ჯვრის დასავლეთი მკლავის სახეცვლაში მდგომარეობს. სავარაუდოა, რომ ტაძრის ეს ნაწილი გადაწყობილი იყო. კამარა აშკარად გადაკეთებულ-დადაბლებულია. ამაზე, ერთი მხრივ, მოუწესრიგებელი აგურის წყობა მეტყველებს (საპირისპირო, აღმოსავლეთი მხარის კამარები აკურატული, წყობით არის ამოყვანილი); მეორე მხრივ, კამარის დადაბლების მანიშნებელია კამარაში შეჭრილი, დასავლეთ კედელში მოთავსებული სარკმლების შიდა მოხაზულობა. ასევე, ჩვენი აზრით, შეკეთების შედეგია ტაძრის აღშენების თანადროულად აღიარებული ჯვრის დასავლეთი მკლავის ჩრდილოეთი თაღების საბჯენი მრგვალი, მოხდენილი პროპორციების სვეტიც. თავისი დახვეწილი მხატვრული სახის მიუხედავად იგი არაორგანულია, მეტისმეტად სუსტია ტაძრის მთლიანი ორგანიზმისათვის, მასშტაბურად შეუფერებელი.
იკორთის ექსტერიერი და ინტერიერი საგრძნობლად განსხვავდება ერთმანეთისაგან. იმისდა მიუხედავად, რომ ორივეგან გადაკეთების კვალი დაკვირვებისას ჩანს, ფასადებზე ეს ნაკლებად შესამჩნევია. წყობის განსხვავებული ხასიათის მიუხედავად დეკორატიული სისტემა, რომელიც კრავს გარე მასებს, ისევე, როგორც ორნამენტის მრავალფეროვნება და სიუხვე და მასათა პროპორციული შეფარდება ქმნის ერთიანობის შთაბეჭდილებას. მხოლოდ სათანადო დაკვირვების შედეგად შეიძლება განირჩეს სხვადასხვა დროის შეკეთების კვალი, რომელიც ფასადებზე განსხვავებული ხასიათის უფრო წვრილი ქვებით შედგენილი წყობით მჟღავნდება. საგულისხმოა, რომ XIX-XX საუკუნეების შეკეთების დროს დაცულია XIV საუკუნეების წყობის ხასიათი, თუმცა ქვა ფერითაც და ჯიშითაც სრულიად განსხვავებულია - გამოყენებულია მორუხო-მოღვინისფრო ბაზალტის ქვა. 1961-62 წლებში იკორთის ტაძარზე ძეგლთა დაცვის მთავარი სამმართველოს მიერ შეკეთდა გადახურვა, დაგეგმილი იყო საფუძვლიანი სარემონტო სამუშაოების ჩატარება. 1980-იანი წლების ბოლოს ტაძრის შეკეთების მიზნით იგი ჩასვეს მასიურ რკინის ხარაჩოებში. პოლიტიკური ვითარების გართულების გამო სამუშაოები შეჩერდა. 1991 წლის 21 აპრილს მომხდარმა მიწისძვრამ მნიშვნელოვნად დააზიანა ეკლესიის გუმბათი, რომელმაც ამდენ საუკუნეს გაუძლო. იგი თითქმის 3/4-ით ჩამოინგრა. დაიღუპა შესანიშნავი ჩუქურთმიანი სარკმლების საპირეები და კედლის მხატვრობა. დაზიანდა გადახურვა და სამხრეთ-დასავლეთი მონაკვეთი. ნაწილობრივ მოირღვა საპირე წყობა. ნგრევის ასეთი მასშტაბი ნაწილობრივ დარჩენილი ხარაჩოების არსებობამაც განაპირობა.
იკორთის ტაძრის საკონსერვაციო სამუშაოები დაიწყო£1998-99 წლებში `საქართველოს კულტურული მემკვიდრეობის დაცვის ფონდისა~ და ფონდი `ღია საზოგადოება _ საქართველოს~ დაფინანსებით. სამუშაოები ხორციელდება სარესტავრაციო ფირმა `ხერთვისის~ მიერ (პროექტის ხელმძღვანელი მ. ბოჭოიძე, არქ. რესტავრატორი ლ. ბოკუჩავა, კონსტრუქტორი - გ. ჭანუყვაძე, მშენებელი - გ. ხურცილავა). ამჟამად დასრულებულია პირველი რიგის საკონსერვაციო სამუშაოები.
დიდია იკორთის ტაძრის მხატვრულ-ისტორიული მნიშვნელობა. მისდამი ინტერესი არც ჩვენ დროში ჩამცხრალა. ქართული ცენტრალურ-გუმბათოვანი ტაძრის განვითარების გზაზე იკორთას გამორჩეული ადგილი უჭირავს. ქართული ქრისტიანული ხუროთმოძღვრების თითქმის არცერთ მკვლევარს, რომელიც კი შეხებია გუმბათიან ნაგებობებს, გვერდი არ აუვლია იკორთისთვის. ამიტომ მოკლედ მისი შესწავლის ისტორიასაც უნდა შევეხოთ, რომელიც ტაძრის თავგადასავლის ნაწილადაა ქცეული. გ. ჩუბინაშვილს იკორთაზე თუმცა ცალკე კვლევა არ ჩაუტარებია, მაგრამ მისი მხატვრული ღირებულება და მნიშვნელობა გააზრებული ჰქონდა. მკვლევარისთვის ეს ნაგებობა განვითარებული `ბაროკოს~ უმნიშვნელოვანესი ნიმუშია.
ვ. ბერიძე არაერთგზის ახსენებს იკორთის ტაძარს XII-XIII საუკუნეთა გუმბათიანი ეკლესიების მხატვრულ-სტილისტური სახის აღწერისას. ამ პერიოდის ქართლის გუმბათოვან ნაგებობათა
ნუსხაში (ბეთანია, ქვათახევი, ფიტარეთი, წუღრუ-ღაშენი), იკორთას მკვლევარი არა მხოლოდ თარიღის გამო უთმობს პირველ ადგილს (ის ერთადერთია ამ ქრონოლოგიურ ჯგუფში, რომელიც თამარის გამეფებამდე იყო აგებული), არამედ იმიტომაც, რომ ტაძარი ახალ ესთეტიკურ პრინციპებთან ერთად, ჯერ კიდევ XII საუკუნის პირველი ნახევრის მხატვრულ-სტილისტური ნიშნების შემცველია.
იკორთის ტაძრის ფასადების დეკორატიულ გაფორმებას მოკლედ ეხებიან ქართული ქრისტიანული არქიტექტურის ცნობილი მკვლევარნი _ რენე შმერლინგი და ნიკო ჩუბინაშვილი.
ყველაზე ვრცელი კვლევა იკორთის შესახებ პ. ზაქარაიას ეკუთვნის. მკვლევარს მოყვანილი აქვს ტაძარზე არსებული და უკვე დაკარგული ლაპიდარული წარწერები, იძლევა ძეგლის აღწერას და არქიტექტურული ანალიზით ადასტურებს ძეგლის წარწერაში მოცემულ სააღმშენებლო თარიღს (1172 წ.) მასვე ეკუთვნის გამოკ- ვლევა იკორთის ციტადელის შესახებ.
XIX საუკუნის ბოლოსა და XX საუკუნის დასაწყისის მკვლევართათვის ინტერესის სფერო ძეგლზე დაცული ლაპიდარული წარწერებითა და ტაძარში დაკრძალულ ისტორიულ პირთა მნიშვნელობით შემოიფარგლებოდა. ჩვენი დროის მეცნი-ერები უკვე იკორთის მხატვრულ სახეს ეხებიან და ქართული ქრისტიანული ხუროთმოძღვრების განვითარების გზაზე მას გარკვეულ ადგილს უჩენენ. ამისდა მიუხედავად, სადღეისოდ იკორთის ტაძრის სრულყოფილი კვლევა, ნაგებობის გადაკეთებათა ფიქსაციით და სრული ბიბლიოგრაფიით ჯერ არ ჩატარებულა.
იკორთის ტაძარი ეტაპური ნაგებობაა. დიდია მისი მხატვრულ-ისტორიული ღირებულება. გარდა იმისა, რომ იგი ქსნის ერისთავთა საგვარეულო საძვალეს წარმოადგენდა, იყო საქართველოს გმირთა-შალვა და ელიზბარ ერისთავებისა და ბიძინა ჩოლოყაშვილის ნეშტის განსასვენებელი ადგილი, იგი განსაკუთრებით მნიშვნელოვანია იმ სივრცით-კომპოზიციური, უჩვეულო გადაწყვეტის გამო, რისი მეშვეობითაც ქართული ქრისტიანული ხუროთმოძღვრების გზაზე მას გამორჩეული ადგილი ეთმობა. იკორთის ხუროთმოძღვარს შეთვისებული აქვს XI საუკუნეში შემუშავებული პროგრესული, ახალი კომპოზიციური სტრუქტურა _ გეგმის შემჭიდროვება, გუმბათქვეშა სივრცის გაერთიანება საკურთხეველთან და, ამავე დროს, შენარჩუნებულ-გამოყენებულია ძველი ტრადიცია _ წაგრძელებული დასავლეთი მკლავი და `გარდამავალ ხანაში~ პოპულარული სამნაწილოვანი, სივრცეში გახსნილი საკურთხეველი.
იკორთის ოსტატი ქმნის თავისებურ, არაორდინარულ კომპოზიციას. იგი დგას ორი მხატვრულ-სტილისტური მოვლენის გასაყარზე, X-XI და XII-XIII საუკუნეების მიჯნაზე. მასში კონცენტრირებულია ორივე ეტაპის ელემენტები.
ასევე ახლებურადაა გარდასახული ფასადთა დეკორატიული სისტემა, რომელიც, ერთი შეხედვით, XII საუკუნის ტიპიური მოვლენაა და, ამავე დროს, უჩვეულო გადაწყვეტებით არის გამდიდრებული, რომელთაგან ზოგიერთი გაგრძელებას ჰპოვებს მომდევნო საუკუნეების ტაძართმშენებლობაში, ზოგიც კი სრულიად განუმეორებელი სახის მატარებელია. მოხდენილი პროპორციების იკორთის ტაძარი განუყოფელი ნაწილია მთებით შემოსაზღვრული ულამაზესი და ამჟამად უკაცრიელი გარემოსი. მიმზიდველი და მოკრძალებულ-გამარტივებული, შორიდან იმპოზანტური, მორთულ-მოკაზმული, მიახლოვებისას უფრო ინტიმურობითა და კამერულობით გვეგებება.
სტატიის ავტორი – ირინე ელიზბარაშვილი; გ. ჩუბინაშვილის სახ. ქართული ხელოვნების ისტორიის ინსტიტუტი.
სტატია აღებულია წიგნიდან – „საქართველოს სიძველენი“ ტ2; თბილისი, 2002 წ.
|