ახალქალაქი ჯავახეთისაი
„... სომხების მწიგნობარნი მაინც თავისას იძახიან და ბინას იკეთებენ იქ, საცა არ ჰქონიათ... სწადიანთ ქვეყანა დააჯერონ, ვითომც უფლება მიუძღვით ამ ადგილებში ბინის დადებისა“.
ილია ჭავჭავაძე, „ქვათა ღაღადი“
1992 წელს სერიით „სომხური ისტორიული დასახლებანი” ერევანში გამოიცა ბუკლეტი „ახალქალაქი“, რომელიც გამოუქვეყნებია სომხური არქიტექტურის შემსწავლელ ორგანიზაციას სომხურ, რუსულ და ინგლისურ ენებზე. იგი შეიცავს მცირე ტექსტს (დაახლოებით 2 გვერდს); 12 ფოტოსურათს, ეკლესიის გეგმის ერთ ნახაზს, პატარა რუკას და უახლოეს ხანებში გამოსაცემ ამგვარსავე ბუკლეტების სიას, სადაც ჩამოთვლილია დასახელებული პუნქტების სახელები.
ტექსტში, რომლის ავტორი ჩვენთვის უცნობია; განსაზღვრულია ჯავახეთის ახალქალაქის მდებარეობა; ნათქვამია, რომ სომხური მოსახლეობა იქ IX-X საუკუნეებიდანაა; მოტანილია XI და XIII საუკუნეების ორი სომეხი ისტორიკოსის ცნობა ახალქალაქის შესახებ; ნახსენებია ერთი ფაქტი მისი აოხრებისა XV საუკუნეში და ახალქალაქის დაპყრობა ოსმალთა მიერ; ტექსტის შემდგომი ნაწილი ეძღვნება რუსეთის მიერ ახალქალაქის შემოერთებას და იქ სომხების გადმოსახლებას ოსმალეთიდან XIX საუკუნეში (აქ სისრულითაა აღწერილი სომხების მიერ ახალი ქალაქის გაშენებისა თუ მოწყობის ამბები); ბოლოს კი აღნიშნულია, რომ ძველი ნაქალაქარის ტერიტორიაზე აღმოჩენილი საფლავის ქვა 1501 წლისა, ახალ ეკლესიაში ჩაშენებული ხაჩქარი 1289 წლისა და ქალაქის მახლობლად მდებარე ეკლესია XII-XIII საუკუნეებისა მოწმობენ სომხური დასახლების აქ არსებობას აღნიშნულ საუკუნეებში.
რუკაზე სქემატურად აღბეჭდილია „დიდი სომხეთი“, ე.ი. ტიგრან II-ის მიერ ძვ.წ. 95-56 წლებში შექმნილი სახელმწიფო, რომლის დაახლოებით 1\10 ნაწილი უჭირავს დრევანდელ სომხეთს, რუკაზე ადნიშნულს უფრო მუქად.
* დაიბეჭდა ჟურნალში „არტანუჯი“ 7; თბ.1998.
თუ გავითვალისწინებთ იმას, რომ „დიდმა სომხეთმა“ არსებობა შეწყვიტა ახ.წ. 387 წელს, როდესაც ის ერთმანეთში გაიყვეს ბიზანტიამ და ირანმა, მაშინ ამ რუკის მოტანას მხოლოდ ერთი გამართლება შეიძლება ჰქონდეს: სომხურ ისტორიულ დასახლებათა ძიება კასპიისა და შავი ზღვის სამხრეთს შორის გადაჭიმულ მთელ ტერიტორიაზე (თურქეთი, ირანი, ერაყი, სირია, საქართველო, აზერბაიჯანი, საკუთრივ სომხეთი...).
მაგრამ არა, გამოსაცემი ბუკლეტების სიაზე დაკვირვებით აღმოჩნდება, რომ ასეთი დასახლებები მხოლოდ საქართველოსა და აზერბაიჯანის ტერიტორიაზე აინტერესებთ: 45 პუნქტიდან ქვემო ქართლის 10, ჯავახეთის 13, სამცხის 7 სოფელი, დაბა, თუ ქალაქი სომხური ისტორიული დასახლება ყოფილა. დანარჩენი პუნქტები დღეს აზერბაიჯანის ტერიტორიაზეა.
ბუკლეტის ავტორის მიხედვით, ახალქალაქი მთავარი დასახლებაა გუგარქის გავარ (პროვინცია-დ.ბ.) ჯავახეთში“. ასე იწყება ტექსტი. არაფერია თქმული, რომ ჯავახეთი საქართველოს მხარეა, რომ გუგარქიც სტრაბონის ცნობით ძველი იბერიის შემადგენელი ნაწილი იყო, დროებით დაპყრობილი სომხების მიერ ძვ. II საუკუნეში.
გუგარქი (ბერძნ. გოგარენე) სხვადასხვა ეპოქაში ცვალებადი ცნებაა, ამიტომ ზემო ჯავახეთი, გვიან წარმოშობილი ახალქალაქით, ყოველთვის მის შემადგენლობაში არ იგულისხმება. თუ ძველი სომხური გეოგრაფია გუგარქის შემადგენლობაში მთელ ჯავახეთს თვლის, მოვსეს ხორენაცი კი ჯავახეთის მხოლოდ ნახევარს, უფრო ადრინდელი წყაროების მიხედვით გუგარქი ქვემო ქართლშია.
ლეონტი მროველი, რომელიც აღწერს ქართლის ისტორიას I საუკუნეში, მოგვითხრობს, რომ ,,სომხეთის მეფე იარვანდი ემძლავრა ფარსმან არმაზელსა და მოუღო საზღვარი ქართლისა ქალაქი წუნდა და არტანი მტკურამდე და ვერ იძებნეს მეფეთა ქართლისათა საზღვარი და მოკუდეს მწუხარებასა შინა დიდსა ფარსმან და კაოს”. სომეხ-ქართველთა ეს ბრძოლა გაგრძელებულა შემდგომ ხანებშიც. ქართველებს ,,ქუეყანასა ჯავახეთისასა“ დაუმარცხებიათ სომხები, მათი უფლისწული კი ტყვედ ჩაუგდიათ. მხოლოდ ამის შემდეგ დაზავებულან მებრძოლი მხარეები: „სომეხთა უმკოსცეს საზღვარი ქართლისა, ქალაქი წუნდა და ციხე დემოთისა, ჯავახეთი და არტანი“.
ძველი ჯავახეთის ქართლთან უახლოეს კავშირზე მეტყველებს თუნდაც II საუკუნის იბერიის პიტიახშების საკუთარი სახელი ჯავახ (ზევახ), არმაზის წარწერებმი სამჯერ რომ არის დადასტურებული (შდრ.: კახა-კახეთი).
გუგარქი კი მე-II საუკუნის შემდგომ ხუთჯერ გადავიდა ხელიდან ხელში, ვიდრე IV საუკუნის II ნახევრიდან საბოლოოდ არ შეუერთდა ქართლს. სომხურივე წყაროები მოწმობენ, რომ გუგარქის მკვიდრი მოსახლეობა ქართული იყო. ამიტომ 326 წელს ჯავახეთს მოსული ნინო, ცხადია, ქართულ გარემოში მოხვდა, რომელიც მჭიდროდ იყო დაკავშირებული მცხეთასთან.
ბუკლეტის ტექსტის მიხედვით, ახალქალაქი ორი მდინარის შესაყარშია, რომელთაგან ერთია „ფარვანა“ (ე.ი. თავფარავნისწყალი), მეორე კი „ქარასუნ აღბიურ“ (ე.ი. ორმოცი წყარო). ასეთი სახელწოდება არ არსებობს. ესაა თარგმანი თურქული ყირხ-ბულახისა, რომელიც რუსულ ხუთვერსიან რუკაზეა აღნიშნული. უფრო ადრე მას დლივისწყალი, ხოლო ძველ ქართველ ისტორიკოსებთან ახალქალაქისწყალი ეწოდებოდა. მდინარის გვიანი, თურქული სახელწოდების სომხურად გადმოკეთებით, ტექსტის ავტორი ცდილობს როგორმე დაამკვიდროს ჰიდრონიმის სომხური ფორმა.
ავტორის აზრით, მიუხედავად იმისა, რომ ახალქალაქი XI საუკუნეში დაარსებულად ითვლება, ძველი ქალაქის ფარგლებში შემორჩენილი ძეგლები, კერძოდ, IX-X საუკუნეებისათვის დამახასიათებელი ხაჩქარები (ინგლისურ ტექსტში IX-XI სს), ამტკიცებენ სომხური დასახლების იქ არსებობას ჯერ კიდევ XI საუკუნემდე. ამის საბუთად დაბეჭდილია ერთი ხაჩქარის ფოტო, ჩაშენებული წმ. ჯვრის XIX საუკუნის ეკლესიაში.
ავტორს ხელს არ აძლევს და ამიტომ არც ამბობს, რომ ნაქალაქარის ტერიტორიაზე არქეოლოგიური გათხრების შედეგად აღმოჩენილია ენეოლითური და ადრებრინჯაოს ხანის ნამოსახლარი. ამ დროს კი სომხები კავკასიაში არც იყვნენ. იგი დუმილით გვერდს უვლის აგრეთვე ძვ.წ. VIII საუკუნის ურარტულ წყაროებში მოხსენიებულ „ზაბახა“-ს, ანუ ჯავახეთს, რომელიც მძიმე ბრძოლებს აწარმოებს ურარტუელებთან. მაშინ კი გუგარქის ხსენებაც არ იყო.
ქართული წყაროების მიხედვით, წუნდის საერისთავოში გაერთიანებული ჯავახეთი უძველესი დროიდანვე ქართლის მეფეს ემორჩილებოდა. პირველი ქართული ეკლესიები იქ IV-VI საუკუნეებში აშენდა, ხოლო ვახტანგ გორგასალმა ჯავახეთში საეპისკოპოსო კათედრა დააარსა. არაბული და სომხური წყაროები (ბალაზორი, იოანე მამიკონიანი) ჯავახეთს ქართლის იმ მხარეთა შორის ასახელებენ, რომლებიც VII საუკუნეში დაიპყრეს არაბებმა.
ეს ფაქტები ავტორის ყურადღების ღირსი ვერ გამხდარა და აი, წმ. ჯვრის ეკლესიაში ჩაშენებულმა IX-X საუკუნეების ხაჩქარმა „დაამტკიცა“ სომხური დასახლების იქ არსებობა. ასეთ საბუთს რას დააკლებს ის ფაქტი, რომ ნაქალაქარის ტერიტორიაზე გათხრილი და შესწავლილია ძველი ქართული ეკლესიის ნაშთი, IX-X საუკუნეებისა, ე.წ. „თავისუფალი ჯვრის“ ტიპის ცენტრალურ-გუმბათოვანი ნაგებობა, მის ნანგრევებში ნაპოვნი ქვაჯვართა ბაზისები და კარნიზები კი V-VII და VIII-IX საუკუნეებს განეკუთვნება. ივარაუდება, რომ ისინი IX-X საუკუნეების ეკლესიის მშენებლობაში იქ არსებული უფრო ძველი სამლოცველოდან მოხვდნენ. ამავე ხანისაა ნაქალაქარის ტერიტორიაზე გამოვლენილი მცირე სიმაგრეც.
ხაჩქარზე უფრო ადრეული და მნიშვნელოვანი ძეგლებით დასტურდება, რომ გაქალაქებამდე ახალქალაქის კონცხზე მოზრდილი სამოსახლო ყოფილა. თანდათან ეს პუნქტი ისე გაიზარდა და დაწინაურდა, რომ XI საუკუნისათვის იგი ჯავახეთის ერთი უმნიშვნელოვანესი ცენტრი გახდა. „მატიანე ქართლისა“ გვამცნობს, რომ 1057 წელს „ამის სამეფოსა დიდებულთა მოეწყინა პატრონობა ლიპარიტისი, სულა კალმახელი და ყოველნი მესხნი გამოექცეს ლიპარიტს, და შეიპყრეს დლივს ლიპარიტ და ძე მისი ივანე... და მსწრაფლ გაგზავნა სულა მეფისა წინაშე სულთა ზედა მჴმობელნი. სოლო გუარანდუხტ და გიორგი, ძე ბაგრატისი, დგეს ღრტილას, და რა ცნეს შეპყრობა ლიპარიტისი, შეიყვანეს ახალქალაქს და მუნ მოილოდინეს ბაგრატ... მოვიდა მეფისა წინაშე სულა ჯავახეთს, და მოჰგუარნა ლიპარიტ და ივანე პყრობილნი და მოაჴსენა“.
აქედან ვიტყობთ, რომ ღრტილადან ახალქალაქში ჯავახეთის ცენტრში გადმოსვლით სამეფო ოჯახი ნათლად წარმოაჩენდა ქალაქისა და მისი მხარის მეფისადმი დაქვემდებარებას.
ბუკლეტის ავტორმა ყოველივე ზემოთქმულიდან მხოლოდ ის იცის, რომ ახალქალაქი გუგარქის გავარ ჯავახეთშია, „ქარასუნ აღბიურის“ ნაპირზე, რომ სომხური დასახლება იქ IX-X საუკუნეებიდან არსებობს. აქ ავტორი გაკვრით შენიშნავს: ისტორიკოსი ვარდანი თავის წიგნში იხსენიებს “ახალ ქალაქს, რომელსაც ქართველები უწოდებდნენ ახალქალაქს“. ბუნებრივია, მკითხველს სამართლიანი კითხვა უნდა გაუჩნდეს „ნეტავ ეს ქართველები აქ რა შუაშიაო?...“ ვარდანი ხომ XIII საუკუნის სომეხი ისტორიკოსია, რომელთანაც ბუკლეტის ავტორის მიერ მოყვანილი სიტყვები „ახალი ქალაქი, რომელსაც ქართველები ახალქალაქს უწოდებენ“ - საერთოდ არ არის. იქ სიტყვა-სიტყვით ნათქვამია, რომ 1064 წელს ალფ-არსლანი „კვლავ მოვიდა 100.000 მეომრით, დაიპყრო ახალქალაქი და სამშვილდე და შეირთო ცოლად ასული კვირიკე მეფისა, დისშვილი ბაგრატ ქართველთა მეფისა“.
ავტორის მიერ შეთხზულ, ვარდანისათვის მიწერილ წინადადებაში სიტყვები „ჟღერს“, „გამოითქმის“, ნეიტრალურია და სხვა ელფერი აქვს, ვიდრე უფრო შესატყვის ფორმას „ქართველები უწოდებენ“, „ქართულად ჰქვია“. მაგალითად, თუ ვიტყვით, რომ სახელები ქალაქებისა ანი და გარნი „ქართულად ჟღერს“, „ქართულად გამოითქმის“, როგორც ანისი, გარნისი, ასეთ შემთხვევაში არ გამოჩნდება, ვისია ეს ქალაქები, ან სახელები ვისი შერქმეულია, მაშინ როდესაც შესიტყვება „ქართველები უწოდებენ“, ან „ქართულად ჰქვია ახალქალაქი“, მიგვანიშნებს, რომ ქალაქი ქართველებისაა და ეს გამჭვირვალე ქართუწლი სახელიც მათ მიერაა წოდებული (შდრ. ნოვგოროდი, ნეაპოლი).
მართლაც, არქეოლოგიური გათხრებით დადასტურდა, რომ IX-X საუკუნეებში აქ უკვე იყო ვრცელი ქალაქური ტიპის დასახლება, სადაც ნაპოვნია X-XI საუკუნეთა ბიზანტიური სპილენძის მონეტები. ამ „უზღუდო“, ე.ი. მცირედ გამაგრებულ, დასახლებას უკვე მაშინ ერქვა ახალქალაქი.
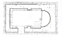
 |
| cixe-naqalaqaris gengegma. anazomi k. meliTaurisa |
 |
| citadeli. samxreTis, aRmosavleTis da dasavleTis fasadebi. anazomi k. meliTaurisa. |
 |
| citadeli. qvemoT - ezo, zemoT - qarvaslis ezo. XI-XIX ss. gengegma. anazomi k. meliTaurisa |
საქართველოს ქალაქების ისტორიაში IX-X საუკუნეებიდან აღინიშნება ახალი ეტაპი, რომელსაც „ახალქალაქობის“ ხანასაც უწოდებენ. ამ დროიდან ხდება ძველი სამოსახლოების გაქალაქება, ზოგი ძველი ქალაქის აღორძინება და ახალი ქალაქების წარმოშობა. ასე გაჩნდა დმანისი, არტანუჯი, ახალციხე, თელავი, ატენი, თრიალეთის ახალქალაქი და ახალქალაქი ჯავახეთისა, რომლის ზღუდეთა შენება ბაგრატ IV-ის ინიციატივა ყოფილა. „მატიანე ქართლისას“ მარიამისეული და მაჩაბლისეული ნუსხების მიხედვით, „გავიდა მეფე ჯავახეთს და იწყეს ახალქალაქისა ზდუდეთა შენებად, რამეთუ მას ჟამსა უზღუდო იყო“.
 |
| asomTavruli warwera galavnis karibWeze |
„ქართლის ცხოვრების“ ძველი სომხური თარგმანის მიხედვითაც, ბაგრატ მეფემ „ააშენა ახალქალაქის ზდუდე“. ვახუშტი ბატონიშვილი კი წერს: „ბაგრატ მეფე მოვიდა ჯავახეთს, განამაგრა ახალქალაქი“. ამ მხრივ ნიშანდობლივია გათხრების დროს ნაქალაქარის გალავნის კარიბჭეზე აღმოჩენილი ქართული ასომთავრული წარწერა: „ქრისტე შეიწყალე მარიამ“. ეს კი გახლავთ ბაგრატ IV-ის დედა დედოფალი მარიამი.
ქალაქობის პერიოდის ძეგლებიდან, ზემოხსენებული ეკლესიის გარდა, ახალქალაქში გამოვლენილია 150 მ. სიგრძის გვირაბი, მდ. თავფარავნისწყლის მარცხენა სანაპიროზე გამავალი.
ასევე საყურადღებოა კერამიკული სახელოსნო, ზეთსახდელი და განსაკუთრებით, ქარვასლა მოქარავნეთათვის.
ბუნებრივია, ბუკლეტში ამ ფაქტებზე არაფერია ნათქვამი. მის ავტორს ხომ სურს დაამტკიცოს ახალქალაქში სომხური ისტორიული დასახლების არსებობა, ხოლო ამ მიზნის მიღწევა ყოველივე ზემოთქმულიდან გამომდინარე მართლაც ძნელი საქმეა.
1064 წელს ჯავახეთის ახალქალაქმა ალფ-არსლანის გამანადგურებელი შემოსევა განიცადა. ამ ამბების ამსახველი ცნობა კი ბუკლეტის ავტორს ვარდანის ზემოხსენებული ციტატის შემდგომ წინადადებად მოაქვს. მოაქვს ისე, თითქოს ეს უმისამართო ქალაქი კონკრეტულ ქვეყანას და მხარეს არ ეკუთვნოდეს. მისი სიტყვით, მათეოს ურჰაეცი (სომეხი ისტორიკოსი XI-XII საუკუნეებისა) მოწმობს, რომ აბასლანმა (ე.ი. ალფ-არსლანმა) „სასტიკი ბრძოლებით ალყა შემოარტყა ახალქალაქს, რომელიც იერიშით აიღო. მან უმოწყალოდ, მახვილით მოსრა მთელი ქალაქი, კაცები, ქალები, ყველა მღვდელი, მონაზვნები და მთავრები. მთელი ქალაქი სისხლით მორწყო. სპარსეთში ტყვედ წაიყვანა უამრავი ჭაბუკი და გოგონა, ხელთ იგდო ურიცხვი ოქრო-ვერცხლი და თვალ-მარგალიტი“.
ალფ-არსლანის ეს შემოსევა, როგორც მნიშვნელოვანი მოვლენა, აღწერეს ქართულმა და უცხოურმა წყაროებმა. გიორგი მცირე „გიორგი მთაწმიდელის ცხოვრებაში“ წერდა: „მას ჟამსა შინა ვიყვენით ჩუენ ახალქალაქს ჯავახეთისასა და მუნ ჰყვეს (გიორგი მთაწმინდელს-დ.ბ.) ყოველნივე იგი ობოლნი თჳსნი. და ვსხედით ყოველნივე წინაშე მისსა. შუა დღეს ოდენ განკჳრვებაჲ დაეცა ჟამ რაოდენმე და მეყსეულად განკრთომის სახედ გჳბრძანა ყოველთა, ვითარამედ: „უწყოდეთ, რამეთუ რისხვაჲ ღმრთისაჲ მოწევნად არს ამა ქალაქსა ზედა. და ბრძანა აღკაზმვაჲ ყოველთაჲ. და იყო რაჲ მწუხრი, გამოვედით და შემდგომად სამისა დღისა მოიწია რისხვაჲ იგი უგრძნეულად, რომელსა ყოველნი მეცნიერ ხართ, რამეთუ არა თუ ახალქალაქისა ოდენ მკვდრნი მოისრნეს. არამედ დიდ-დიდნი და წარჩინებულნი მთავარნი და ერისთავნი სამეუფოისა ჩუენისანი ძჳრძჳრად მოისრნეს და წარწყმდეს, რომლისა მიერ ღმრთის-მსახური მეფე ბაგრატ დიდსა მწუხარებასა შთავარდა“.
კიდევ უფრო ნიშანდობლივი ცნობა აქვს „მატიანე ქართლისას“ ავტორს, რომლის სიტყვით, თურქები „წავიდეს ჯავახეთს და მოადგეს ახალქალაქს, რამეთუ მესხნი აზნაურნი და ზემოსა კერძოსანი ძლიერად დგეს ახალქალაქს და ბრძოდეს სამ დღე. რამეთუ არა ზღუდითა მტკიცითა განსრულებულ იყო ახალქალაქი. ვერღარა დაუდგმიდეს ბრძოლათა ძლიერთა. აღიჭურნეს მყოფნი ქალაქისანი, და განახუნეს კარნი, და შეებნეს ძლიერად, მოსრნეს პირითა მახვლისათა, და შევიდეს ქალაქად თურქნი და ტყუე ყვნეს ურიცხუნი სულნი ქრისტიანეთანი. აღიღეს განძი და ტყუე ძლიერი, და შეიღება წყალი ახალქალაქისა სისხლითა.
და მიუვლინა ახალქალაქით მოციქული სულტანმან ბაგრატ მეფესა; აჰკიდა მზახობა და სთხოვა დისწული ცოლად“.
ჯავახეთის სოფელ მირაშხანში არსებული წარწერა გვამცნობს, რომ ახალქალაქის ბრძოლაში სხვებთან ერთად დაღუპულა ფარსმანი, სხვა წყაროებით ფარსმან თმოგველად ცნობილი, ერისთავთ-ერისთავი ჯავახეთისა, მოხსენიებული ზედა თმოგვისა და სათხის ეკლესიათა წარწერებში.
ზემოხსენებულ ბრძოლას დაწვრილებით აღწერს XIII საუკუნის არაბი ავტორი სადრ ად-დინ ჰუსეინი, რომელიც საინტერესო დეტალებით ავსებს ჩვენს წარმოდგენას ახალქალაქზე: „შემდეგ ალფ-არსლანმა მოამზადა ლაშქარი იმ მიზნით, რომ თავს დასხმოდა სებიდ შეჰრს (სპარსულად-„თეთრი ქალაქი“. თურქულად „ახალი ქალაქი“) - ამ ქვეენის მოსახლეობასა და მას შორის ბევრი ბრძოლა მოხდა.
შემდეგ ღმერთმა გამარჯვება აღირსა ამ ადგილზე. სულთანმა მოინდომა ახალქალაქის სახელწოდების სხვა ქვეყნების დაპყრობაც. ციხის კედლის სიგრძე 100 წყრთა იყო. ხოლო სიგანე ამაზე უფრო მეტი. ამ ქალაქის გარშემო აღმოსავლეთით, დასავლეთითა და ჩრდილოეთით მდებარეობს მთა. მთის მწვერვალზე ციხეებია. ჩვენ მიერ აღნიშნული კედელი კი სამხრეთ მხარესაა. ამ ციხის კედლის წინ ჯეიჰუნის (ამუდარია) მსგავსი მდინარე ჩადის. ზედ ხიდია გადებული. მტერმა ეს ხიდი აიღო და ამრიგად მუსლიმების სიხარბესა და იმედს ბოლო მოუღო... სულთნის ლაშქარმა დიდი ხიდი ააშენა. დაიწყეს ბრძოლა, ძალიან მაგრად შეებნენ ერთმანეთს. შემდეგ ამ ქვეყნიდან ორი კაცი გამოვიდა, დახმარება და შეწყნარება ითხოვა. სულთნისაგან ითხოვეს ემირის დანიშვნა, რომელიც მართალი და პატიოსანი კაცი იქნებოდა. სულთანმა ემირ იბნ მუჯაჰადი და აბუ სურმე გაუგზავნა. როდესაც მათ გაიარეს ციხის სასაზღვრო ხაზი, ქართველებმა მათ ალყა შემოარტყეს და დახოცეს. ეს საწყლები დარჩნენ მტრის ხმალსა და წყალს შუა.
ამის შემდეგ მსახური სავაფი ეახლა სულთანს და მოინდომა ეცნობებინა მისთვის, ქართველები თავს დაგვესხნენ და მუსლიმები დაამარცხესო... იგი მტრის სასტიკ წინააღმდეგობას მამაცურად გაუმკლავდა, მათ ქვეყანაში შევიდა და მტრებისაგან გაათავისუფლა. ციხის ერთ-ერთ კოშკში მტრის რამდენიმე გულადი მეომარი დარჩენილიეო. ესენი ჭეშმარიტი და სრული მამაცობითა და გამბედაობით გაუმკლავდნენ. სულთანმა ბრძანა ამ კოშკის გარშემო შეშა შემოეწყოთ, შეშას ცეცხლი მოუკიდეს...
მუსლიმებს ხელში ჩაუვარდათ უსაზღვრო და უთვალავი სიმდიდრე. ღამით ძლიერი ქარი ამოვარდა. კოშკის გარშემო დანთებულ ცეცხლს ქარმა შეუბერა და ეს მხარე ცეცხლმა მოიცვა, თავიდან ბოლომდე გადაწვა. ამ ციხესთან ახლოს სხვა ერთი გამაგრებული ციხეც იყო. სულთანმა ესეც დაიპყრო. შემდეგ ქართველმა მელიქებმა სულთანს ბევრი საჩუქარი გაუგზავნეს და ზავი ითხოვეს... სულთანმა ქართველთა მეფეს წერილით შეატყობინა ან ისლამი უნდა მიიღო, ანდა ჯიზიაზე უნდა დათანხმდეო“.
საგანგებოდ მოტანილ ამ ვრცელ ამონაწერებში არსად არ ჩანან სომხები. ყველგან ხაზგასმულია „ახალქალაქის მკჳდრნი“, „დიდ-დიდნი და წარჩინებულნი მთავარნი და ერისთავნი“, „მესხნი აზნაურნი“, „ქართველები“ და „ქართველთა მელიქები“. არსაიდან ჩანს, რომ იქ „ისტორიული სომხური დასახლება“ იყო. ეს განსაკუთრებით ითქმის მათეოს ურჰაეცის მიმართ, რადგან კარგადაა ცნობილი მისი აღტაცება დავით ადმაშენებლის მიერ გორში სომხების ჩასახლების გამო. მაშ, რაღა ახალქალაქში დამალავდა სომხური დასახლების არსებობას, თუკი ასეთი მართლაც იყო. მისი ცნობები საკმარისი სიზუსტით ემთხვევა სხვა წყაროებს, როცა თურქთა ამ შემოსევაზე საუბრობს და ცხადია, რეალურ ვითარებას ასახავს.
მეორე მხრივ, ისტორიკოსის ცნობები იმითაცაა საყურადღებო, რომ მან იცის: ეს შემოსევა ქართველთა ქვეყანაში ხდება, ოლქში, რომელსაც ჯავახეთი ჰქვია. თავდასხმა ხდება ქალაქზე, რომელსაც ჰქვია „ახალ“. მომდევნო ფრაზაში კი ავტორი წერს „ახალქალაქს“. მათეოს ურჰაეცი ჯავახის მაგიერ წერს „ჯავალის“, ახალქალაქი კი გაუგია, როგორც ქალაქი სახელად "ახალ" (შეცდომით ტექსტშია „ალახ“). ასეთი შეცდომები, თუ დამახინჯებანი, სწორედ იმის მანიშნებელია, რომ ჯავახეთი და ახალქალაქი უცხო გარემოა სომხებისა და სომეხი ისტორიკოსისათვის. იქ IX-X საუკუნეებიდან სომხური დასახლების არსებობის შემთხვევაში ასე არ იქნებოდა.
ბუკლეტის ავტორი მათეოს ურჰაეცის ცნობიდან უგულებელყოფს სიტყვებს საქართველოს (ქართველთა ქვეყანას) და ჯავახეთს რომ ეხება, სომხურ ტექსტში მხოლოდ ახალქალაქს და იქ მომხდარ ამბებს იხსენიებს. რუსული და ინგლისური ტექსტის შესატყვის ადგილას იგი იმეორებს ისტორიკოსის შეცდომას და წერს: „the city Akhal“. ეს იგივეა, სომხეთის ძველი ტოპონიმები ნორ ქალაქ, ნორ ბერდ, ნორავანქ ქართულად ასე რომ გადმოგვედო: ქალაქი ნორ, ციხე ნორ, მონასტერი ნორ (სომხ. ნორ - ქართ. ახალი). ბუკლეტის ავტორმა იცის, რომ ტოპონიმის თარგმნა არ ხდება, მაგრამ ასეთი შემოქმედებით, როდესაც ტოპონიმის პირველ ნაწილს არ განმარტავს, შეიძლება მკითხველს აფიქრებინოს: სახელწოდება ახალქალაქის მეორე ნაწილი (ქალაქ) სომხურია, რაც იქაური სომხური დასახლებით აიხსნება. სწორედ ამიტომაა, რომ ქართულის დამახასიათებელი დაბოლოება სახელობითი ბრუნვისა "ი" ბუკლეტის მხოლოდ რუსულ და ინგლისურ სათაურში ჩანს. სომხურ სათაურსა და სამსავე ტექსტში ყველგან გვხვდება Akhalkalak (შესაბამისად რუსულ და სომხურ ვარიანტში). სინამდვილეში კი ”"ქალაქი" უცხო წარმომავლობის სიტყვაა და აღმოსავლური სამყაროდან უნდა იყოს შემოსული ქართულსა და სომხურში.
თურქთაგან დანგრეული ჯავახეთის ახალქალაქი XII საუკუნის II ნახევრიდან ისევ მოშენებულა, რაზედაც მეტყველებს არქეოლოგიური გათხრებით გამოვლენილი საცხოვრებელი კომპლექსები, აღდგენილი ეკლესიის იმდროინდელი ჩუქურთმები და ლაშა-გიორგის სახელით მოჭრილი სპილენმის მონეტები. „გიორგი თამარის ძის“ სახელს ორი ტიპის მონეტები ატარებს. მონეტების ერთ სახეობაზე გიორგი ლაშა „ჯავახთუფლად“ იხსენიება. ცნობილი ცალების რიცხვი რამდენიმე ათეულს არ აღემატება, თან ყველა პასპორტიანი ცალი ნაპოვნია ახალციხეში, ჯავახეთის ახალქალაქსა და დმანისში. მისი ქართული ასომთავრულით შესრულებული წარწერა ამგვარია: „გიორგი მეფისა, თამარის მისასა, ჯავახთუფლისა“. არაბული ზედწერილი კი ასე იკითხება: „მეფე უზენაესი - დიდება ქვეყნისა და სარწმუნოებისა (გიორგი ძე თამარისა) მახვილი მესიისა“. ქართულ წარწერაში მოჩანს ჯავახეთისადმი გიორგი ლაშას დამოკიდებულების განსაკუთრებულობა აქაური საუფლისწულო მამულის მფლობელობა.
ახალქალაქშივეა აღმოჩენილი რუსუდან მეფის 1227 წელს მოჭრილი მონეტები. შემდგომ ხანებში აღუდგენიათ გუმბათიანი ეკლესიაც, რაზეც მეტყველებს იქ მიკვლეული ასომთავრული წარწერა, გიორგი ლაშას ძის - დავით ულუს მოხსენიებით: „სახელითა ღმრთისაითა აღვაშენე ესე წმიდაჲ ეკლესიაჲ მეფობასა დავითისასა და ამირსპასალარობასა ავაგისა, გამრეკელის ძეთა: კახას, ასიბას და ლიპარიტის პატრონობასა შინა... სალოცველად სულისა... ისდიაგს შეუნდვენ ღმერთმან, ამინ“. წარწერაში მოხსენიებული კახა გამრეკელის ძე არის თორელი, ახალქალაქის ერისთავი და მეჭურჭლეთუხუცესი, კარგად ცნობილი ქართული წყაროებით. ამიტომაცაა წარწერაში ხაზგასმული მისი პატრონობა.
XII-XIII საუკუნეებში ჯავახეთის ახალქალაქს მეორე. დარბაზული ეკლესიაც ჰქონია გალავნის გარეთ. თავფარავნისწყლის მარცხენა სანაპიროზე, მაგრამ მონგოლთა ბატონობის პირობებში საქალაქო ცხოვრება იქ თანდათან დაქვეითდა და XIII საუკუნის ბოლოსათეის შესამჩნეეად დაეცა.
 |
| darbazuli eklesia da jvriani qva. XII-XIII ss |
 |
| darbazuli eklesia. XII-XIII ss. gegma |
ნიშანდობლივია, რომ საერთოდ ჯავახეთის ეპიგრაფიკაში სომხური წარწერები XIV საუკუნემდე არ ჩანს, ხოლო ქართული წარწერების სიმრავლით, ჩვენს ქვეყანაში ეს ერთ-ერთი გამორჩეული მხარეა. XIV საუკუნის I ნახევარში, როდესაც მაჰმადიანთა სამთავროები თანდათან იმორჩილებდნენ სომხეთს, ჯავახეთისაკენ წამოსულა სომხური მოსახლეობის ნაკადი. სომეხი მწერლის - გრიგორ ტათევაცის „ცხოერების“ ცნობით, ავტორის მშობლები სომხეთიდან თმოგვში გადმოსახლებულან. აქ დაბადებულა გრიგორი, რომელიც მის ძმას აღუზრდია დავით IX-ის კარზე.
სომხური მოსახლეობა თმოგვის ციხისა და წუნდის სიახლოვესაც ჩნდება. აქაურ საფლავებზე შემორჩენილი მემორიალური ხაჩქარების სომხური წარწერების თარიღები 1556- 1425 წლებს შორის თავსდება.
XV საუკუნიდან ჯავახეთი სამცხის ათაბაგთა გამგებლობაში ექცევა. ვახუშტი ბატონიშვილის ცნობით, 1486 წელს ირანის მბრძანებელმა იაყუბ ყაენმა „გამოვლო აბოცი და მოადგა ახალქალაქს და აოჴრებდა გარემოთა ქუეყანათა მოწყუედითა და ტყუე-ყოფითა. ამას მანუჩარ (სამცხის ათაბაგი-დ.ბ.) ვერ წინააღუდგა და ვერც რასმე ავნებდა სპათა მისთა. გარნა მცდელობდა მაგრებასა ციხე-ქალაქისასა. არამედ ყეენმან მცირე ხანს შინა შემუსრა ახალქალაქი და გამოიყუანნა მუნით მესხნი წარჩინებულნი და ტყუენი მრავალნი მუნ მყოფნი სრულად. მერმე მოწუა ქალაქი და მუნიდამ მოადგა ახალციხეს და აღიღო იგიცა და უყო ეგრეთვე მასცა“. ამ ფაქტს გაკვრით, მხოლოდ ახალქალაქთან დაკავშირებით იხსენიებს ბუკლეტის ავტორი. ოღონდ თურქმანთა მბრძანებელი რატომღაც გამოყვანილია როგორც „მონგოლთა შაჰი“...
ვახუშტი ბატონიშვილის ზემოთ მოტანილ და სხვა, საკმაოდ დაწვრილებით აღწერებშიც არ ჩანს სომხური დასახლების არსებობა ახალქალაქში, მას კი წესად აქვს ქართული ქალაქების ხსენებისას უსათუოდ მიუთითოს თუ არიან იქ სომეხი და ურია ვაჭრები.
XVI საუკუნის ირანელი ისტორიკოსი ჰასან რუმლუ მოგვითხრობს 1516 წელს შაჰ-თამაზ I-ის სარდლის დივ-სულთნის ჯავახეთის ახალქალაქზე ლაშქრობის შესახებ: „ამირები შურაგელის (აბოცი - ყაიყული - დ. ბ.) გზით გაემართნენ აყ-შაჰრისაკენ (ახალქალაქი-დ. ბ.) და იმ ქვეყნის მხარეებს მოედვნენ, როგორც ცით მოვლენილი მოულოდნელი უბედურება, როცა ხსენებული სოფლის მიდამოებში მივიდნენ, მანუჩარი (ათაბაგის ძმა - დ. ბ.) გაიქცა და რუმს წავიდა“. ახალქალაქის სოფლად მოხსენიება მისი შემცირების მოწმობა უნდა იყოს.
„ახალი ქართლის ცხოვრება“ 1535 წელს კიდევ ერთ ბრძოლას იხსენიებს ახალქალაქთან: „აგვისტოს იგ (13-დ.ბ.), დღესა ხუთშაბათსა, შეება მეფეთ-მეფე ბაგრატ (იმერთა მეფე - დ.ბ.) და ათაბაგი ყუარყუარე ახალქალაქსა და დაიჴოცნეს მრავალნი კაცნი, და გაემარჯუა მეფესა, და ჴელთ დარჩა ყუარყუარე და მისნი ლაშქარნი, და დაიპყრა სრულიად საათაბაგო ძემან ალექსანდრესმან“. ჯავახეთში ათაბაგების ბატონობა ათი წლით შეწყდა.
1547 წელს შაჰ-თამაზმა ისევ ილაშქრა ახალქალაქზე. ჰასან რუმლუს ცნობით, „შაჰმა უამრავი ჯარით გაილაშქრა საქართველოზე, გადაიარა შურაგელი და აყ-შაჰრს მივიდა. იმ დღეებში დილიდან საღამომდე თოვდა განუწევეტლივ... ხელმწიფემ თავდასხმა მოახდინა ღამით ურწმუნო ქართველებზე... მათი სისხლით თოვლი ვარდისფრად შეღებეს, მრავალი ძროხა და ცხვარი ნადავლად ხელთ იგდეს და მათ სახლებს ცეცხლი წაუკიდეს“.
იმავე ამბავს XVI-XVII საუკუნეების მეორე ირანელი ისტორიკოსი - ისქანდერ მუნში ასე აგვიწერს: შაჰ-თამაზი „საქართველოში საომრად და ურჯულო ქართველების გასაჟლეტად გაემართა. შურაგელიდან გამოვიდნენ... ბაჰრამის ძლიერების მქონე ჯარით აყ-შაჰრში გაჩერდა... იმ დროს ზამთრის სიმკაცრე და სიცივის სიმძაფრე იქამდე მივიდა, რომ მტკვარი გაყინულიყო და სიმაგრით გრანიტის ქვას ჰგავდა. თოვლის სიმრავლისაგან, რომელიც დღე და ღამე მოდიოდა, მთა და ბარი საქართველოში გასწორებულიყო... როცა ურწმუნო ქართველების ბინასა და სადგომს მოაღწიეს, ღაზიების ხმალმა იწყო თავების კვეთა და ის მიწა ურწმუნოთა და მათი მღვდლების სისხლით შეიღება. იმ ცუდი რჯულის მქონეთა სახლები რისხვის ცეცხლით დასწვეს, მრავალი დავლა ხელთ ჩაუვარდა შურის მაძიებელ სპას და გამარჯვებული და ძლევამოსილი, უამრავი ნადავლით დატვირთული უკან გამობრუნდნენ“.
იგივე ისტორიკოსი მოგვითხრობს შაჰ-თამაზის მესამე ლაშქრობაზე საქართველოში 1551 წელს. მისი სიტყვით, ვარძიის მონასტრის აოხრების შემდეგ „ვახუშტი და შერმაზან ოღლი, ორი უდიდესი მტერი, ორივე მოკლულ იქნა. თმოგვისა და აყ-შაჰრის ოლქი, რომელიც მათ ეკუთვნოდათ, ქაიხოსროს (სამცხის ათაბაგს-დ.ბ.) ეწყალობა“. აქ მოხსენიებული ვახუშტი იყო შალიკაშვილი, შერმაზან ოღლი კი - დიასამიძე, რომელსაც ამ დროისათვის უნდა ჰქონოდა აყ-შაჰრი (ახალქალაქი) თავისი ოლქით. ეს დასტურდება ერთი თურქული დოკუმენტითაც: „ერთი კიდევ არის შერმაზანოღლუ თავისი ნათესავებით და ხელქვეითი პირებით... მისი სამფლობელო ჯავახეთად წოდებული ადგილია. ძირითადად ყვარყვარეს (სამცხის ათაბაგს-დ.ბ.) ექვემდებარებიან აქ ჩამოთვლილი პირები“.
XVII საუკუნის ოსმალეთის ისტორიკოსი იბრაჰიმ ფეჩევი 1578 წლის ამბებზე თხრობისას იხსენიებს ჩილდირის, თმოგვის, ხერთვისისა და ახალქალაქის ციხეთა დაპყრობას: „მას შემდეგ, რაც უძლიერესი სარდლის მიერ ზემოხსენებული ციხეების დასამორჩილებლად გაგზავნილ იქნა არტაანის სანჯაყის მირლივად დანიშნული აბდურ-რაჰმან-ბეგი, მცხოვრებლებმა მორჩილება გამოაცხადეს. ფადიშაჰმა დაიკავა მხარე და თავისი მართებლები დანიშნა“.
ამ დროს ახალქალაქს, როგორც ჩანს, შალიკაშვილები იცავდნენ, რადგან „მესხური მატიანის“ ცნობით, ოსმალებმა თმოგვი ათაბაგის ძმის - მანუჩარისაგან მიიღეს, ხოლო „ახალქალაქი უწინ წაართუეს - კოკოლას (შალიკაშვილის-დ.ბ) მეციხოვნე იდგა“.
ამიერიდან ახალქალაქს, მთელ ჯავახეთთან ერთად, ოსმალები დაეპატრონნენ. ბუკლეტის ავტორი ამ ფაქტს რატომრაც 1637 წლით ათარიღებს, რაც აშკარა შეცდომაა. მაგრამ ეს ხომ გამონაკლისი არ არის ამ ზერელედ დაწერილი მცირე ტექსტისათვის.
1595 წელს შედგენილი „გურჯისტანის ვილაიეთის დიდი დავთრიდან“ ჩანს, რომ სამხრეთ საქართველოს დაპყრობის შემდეგ, ოსმალებმა იგი აღწერეს, ადმინისტრაციულ ერთეულებად - ლივებად და მასში შემავალ რაიონებად დაყვეს. ახალქალაქის ლივაში შედიოდა აკშეჰირის, თმოგვისა და ნიალისყურის რაიონები. აკშეჰირის რაიონი მოიცავდა ახალქალაქის პლატოს, ჯავახეთის ქედიდან მოყოლებული ვიდრე მტკვრის კანიონამდე. ფართობის მიხედვით, ჯავახეთში ეს ყველაზე დიდი და მრავალსოფლიანი რაიონი იყო. ლივის ცენტრი და მმართველის რეზიდენცია ახალქალაქში იყო, მაგრამ იმდროინდელი ქალაქი მოსახლეობისაგან თითქმის დაცლილია. მხოლოდ აკშეჰირის ციხის რაბათშია სამი მოსახლე, თვით ახალქალაქი კი საგადასახადო ობიექტადაც არაა აღრიცხული.
ახალქალაქის გამაგრებულ ადგილს, ოსმალობის დროს დაერქვა აკშეჰირის ციხის რაბათი. იქ მცხოერებ მურადს, ზადიკს და ყანდურალის, ასევე გულაბა-აღას მიწას, შეწერილი ჰქონდათ გადასახადი ხორბალზე, ქერზე, ჭვავზე, სელის თესლზე, თივაზე, ფუტკარზე, ღორზე, ბოსტანზე, ცხვარზე და სხვ., 7.000 ახჩის ოდენობით. აქ დასახელებული პირები ქრისტიანები არიან, რისთვისაც ზედმეტ გადასახადს იხდიან ისფენჯის სახით, გულაბა-აღა კი მაჰმადიანია.
საერთოდ, „გურჯისტანის დავთარში“ ჯავახური სოფლების მცხოვრებთა სახელებზე დაკვირვებითაც მოჩანს, რომ მოსახლეობის დიდი უმრავლესობა ქართველებია. არის სოფლები, სადაც ქართულ სახელებს შორის გამოერვეა თითო-ოროლა კარაპეტ, ხაჩატურ, ტერაკოფ და სხვა. არის მაჰმადიანური სახელებიც. სამაგიეროდ, არსად ჩანს მხოლოდ სომხებით დასახლებული სოფლები. ასეთ პირობებში კი ბუნებრივია, მათი ენა ქართული იქნებოდა. მაგალითად, წუნდაში, სადაც სომხური ხაჩქარებია შემორჩენილი, მოსახლეობის სახელებია: ვარძელ ჯიროს მე, ამირინდო ბექას მე, ივანე ძმა მისი, ივანე აღდგომელას ძე, ლაშქარა, რევაზი ძე მისი, ხოსიკ ყუბადას ძე, ბატატა ელმანის მე, ქოჩია ძმა მისი, ვეფხია დარისპანის ძე, ზანდარის შვილიშვილი, პეტრე ვეფხიას ძმა, ჯოჯიკ ჯეჰანშას მე და მანუკ ძმა მისი.
უფრო ნარევი ჩანს მოსახლეობა თმოგვის ციხის რაბათში: ნიკუა, ზარასფა, ჰეზარგულ, სარგის არაქელის ძე, ზერეკას ძე, გურასფა, როსთომ ძე მისი, ამირაზიზ ძმა მისი, პაპუ იარალის ძე, იარალი ანანიას ძე... ჩალაბას ძე, პაპუ ყუზანის ძე, ნურალი, აკოფ ძე მისი, აღდგომელა ლაბურას მე, ბატატა მე მისი, ზაზა ედიშერის მე, შაქარა ხაჩატურის მე და სხვ.
XVI-XVII საუკუნეთა სპარსულ და ოსმალურ წყაროებში ახალქალაქს აყ-შაჰრი, აკშეჰირი ეწოდება. ,,ახალ’” გააზრებულია თურქულ. დიალექტურ ,,ახ" (,,თეთრ") სიტყვასთან, ხოლო მეორე ნაწილი - „ქალაქ“-ი თარგმნილია როგორც „შეჰირ“ – „შაჰარ“. XVII საუკუნის ოსმალეთის ისტორიკოსის - ქათიბ ჩელების სიტყვით, „ახალქალაქი - ქართული სიტყვაა: ნიშნავს თეთრ ციხეს... ახალქალაქის ციხე დიდ ველზე, ორ ხევს შორის მაღალ ბორცვზეა. ამ ხეობებიდან ერთ-ერთში პატარა მდინარე გადის და მის უკან თბილისისაკენ მიმავალი გზაა. ძველად ახალქალაქი ვილაიეთის სატახტო ქალაქი იყო, რადგან საზღვარს წარმოადგენდა, დაანგრიეს. მისი ჰავა მკაცრია, მოჰყავთ პურეული და ხილი. ამ შემთხვევაში ახალქალაქი აღიარებულია ქართულ სიტყვად, მაგრამ გააზრებულია თურქულად, როგორც „თეთრციხე“. ეს ალბათ იმიტომ, რომ თურქულად „ახ“-თეთრია ხოლო „ქალაქ“ სიტყვა. როგორც ჩანს, მიმსგავსებულია არაბულ-თურქულ „ყალა“-სთან.
1694-1732 წლების „ჩილდირის ვიალეთის ჯაბა დავთრის“ მიხედვით. ახალქალაქის ლივაში შედიოდა აკშეჰირის, ნიალისყურის, თმოგვისა და მზვარეს რაიონები. ახალქალაქის ლივაში, აკშეჰირის რაიონში, დასახელებულია სოფ. რაბათი, რომელიც ვინმე აჰმედს ექვემდებარებოდა. როგორც ჩანს, აკშეჰირის ციხის რაბათი უკვე „სოფელ რაბათად“ ქცეულა, რომლის წლიური გადასახადი 11.700 ახჩამდე გაზრდილა, 1711-1712 (წლებ'ში-10.755 ახჩამდე, ხოლო 1717-1718 წლებში 7.000-მდე შემცირებულა). ზემოთქმულიდან კარგად ჩანს, თუ როგორ თანდათან დაკნინებულა ამდროინდელი ახალქალაქი. ასეთ პირობებში ჯავახეთის ფაშა, ანუ ახალქალაქის სანჯაყბეგი, ვახუშტი ბატონიშვილის ცნობით, ნიჯგორში გადაბარგებულა. მისივე სიტყვით ახალქალაქი „აწ აღაშენა კუალად შავშეთის ბეგმან ქართლიდამ“. ეს მომხდარა XVIII საუკუნის 40-იან წლებში, როდესაც დაცლილ ახალქალაქში მცხოვრებთა დიდი ნაწილი ქართლიდან გადასულა.
ომან ხერხეულიძის ცნობით 1772 წელს ერეკლემ და მეფე სოლომონმა გაერთიანებული ჯარით „გარდაიარეს მთა საციციანოსი, მივიდნენ და ჯავახეთის ახალქალაქს შემოადგნენ და ძლიერად შეამჭირვეს და ცოტას უკლდა აღებას. იმჟამად მეფე იმერეთისა სოლომონ ძალიან ავად შეიქნა საოფლისა სენითა, რომელი სიკვდიდ მიახლდა. ამისთვის ინება წამოყვანა მეფის სოლომონისა...
აიყარნენ იმერთ ჯარნი და წამოიყვანეს მეფე სოლომონ. და მეფე ერეკლეცა შემოეცალა ციხესა ახალქალაქისასა, და მოარბივნა გარემონი ახალციხისანი და არტანი და ჯავახეთი, მრავალი ტყვე და საქონელი წარმოასხეს და წამოვიდნენ“.
მოტანილი წერილობითი წყაროებიდან ჩანს, რომ ოსმალთა ბატონობის პერიოდში (XVI-XVIII სს) ჯავახეთის ახალქალაქი ძირითადად მათი ჯარის სადგომი ციხესიმაგრეა, სადაც ძლივს ბოგინობს ადგილობრივი მოსახლეობა.
ასეთ დასკვნას მხარს უჭერს არქეოლოგიური გათხრების შედეგები: ქალაქის საცხოვრებელი უბნები უკაცრიელდება; ციხის მრავალგზისი აღდგენა ახალი პირობების გათვალისწინებით ხდება; მის კედლებში ჭარბად მოჩანს უპატრონო ეკლესიებისა და საფლავის ქვების გამოყენება; ვიწროვდება შესასავლელები, ღიობები კი ცეცხლსასროლი იარაღის ამბრაზურებად იქცევა; ჭურჭლის ფრაგმენტები და გაპრიალებული ჩიბუხების უმეტესობა შემოტანილია; ციტადელისა და ქარვასლის ეზოებში გაჩნდა ახალი ნაგებობანი; დაინგრა ეკლესიები და აშენდა მეჩეთი, რომლის შიდა კედელზე არაბული წარწერაა 1725 წლისა; ქარვასლა ამ პერიოდში გადაუკეთებიათ დროებით საცხოვრებელ სადგომად, ფარდულებად; აღმოჩენილი სპილენძისა და ვერცხლის ახჩები სტამბოლშია მოჭრილი XVI-XVIII საუკუნეებში.
ახალქალაქში ოსმალთა თითქმის 300-წლიან ბატონობას ბუკლეტის ავტორი ერთ წინადადებას უთმობს.
რუსეთის მიერ დაპყრობილ საქართველოში ახალქალაქი კვლავ რჩებოდა ცილობის საგნად, ამჯერად-ოსმალეთსა და რუსეთს შორის. თეიმურაზ ბაგრატიონის ცნობით, 1806 წელს „ვინათგან შორის რუსთა და თურქთა იყო ბრმოლაჲ, ამად გრაფ გუდოვიჩმა მოკრიფა სრულიად რუსთა და ქართეელთა მხედრობაჲ მივიდა და მოადგა ჯავახეთს ციხესა ახალქალაქისასა. მიუდგეს რუსთა კიბენი ლამოდის გარდასლუასა ციხესა შინა. განმხნდნენ თურქნი, აოტნეს რუსნი მეციხოვნეთა და მოსწყვიტეს ვიდრე ხუთასადმდე. და ოდეს ვერუძლო დაპყრობაჲ ციხისა გუდოვიჩმან უკუმოქცეული მოვიდა ალგეთად“.
1811 წელს, იმავე ისტორიკოსის ცნობით, მთავარმართებელმა პაულუჩიმ „წარგზავნა მხედრობანი რუსთანი ზამთარს ახალქალაქსა ზედა და თან წაიღეს კიბენი. გორით მიეპარნენ ახალქალაქსა, მიუდგეს კიბენი, აიღეს ციხეჲ ახალქალაქისა, ვინადგან ზამთრის გამო დაყმინებულ იყუნენ თურქნი და შეაყენეს მხედრობა თჳსი ციხესა“. 1812 წელს, ბუქარესტის ზავით, რუსეთმა ოსმალეთს ახალქალაქი უკან დაუბრუნა.
1828 ლის 24 ივლისს რუსთა ჯარმა, პასკევიჩის მეთაურობით, ბოლოს და ბოლოს აიღო ახალქალაქი. მანამდე იქ ჯერ კიდევ იდგა ორსართულიანი ციტადელი, 40 სახლი, ორი ხის მაღაზია, გარნიზონის ყაზარმები, სურსათისა და იარაღის საწყობები, ქარვასლა, ჯამე, მინარეთი, დაზიანებული აბანოები და სხვ. რუსების მიერ დაპყრობამდე ახალქალაქის სანჯაყბეგობა ჰქონიათ ხოსპიელ ფალავანდიშვილებს. მათი რეზიდენცია ახალქალაქის ციხეში იყო, ხოლო ოჯახობით მახლობლად მდებარე სოფელ ხოსპიაში ცხოვრობდნენ. იქ, მათი სასახლის მახლობლად, იყო კოშკი, ჯამე და ძველი ქართული ეკლესია. ახალქალაქის უკანასკნელი სანჯაყბეგი იყო მუთი-ბეგ
|