Zeglebis sruli sia

 

 

 

 

 

 

 

 

 


 

ალის ღვთისმშობლის ეკლესია
(XVI-XVII სს)

1. kompleqsSi Semavali nagebobebi
2. mniSvnelovani informacia
3. adgilmdebareoba
4. ruka
5. istoriuli mimoxilva
6. legendebi, Tqmulebebi da zepirsityvieri gadmocemebi
7. arqiteqturuli aRwera
8. Zeglis statusi da mdgomareoba
9. gamoyenebuli masalebi da bibliografia
10. marSruti
11. bmulebi

1. kompleqsSi Semavali nagebobebi

გუმბათოვანი ეკლესია;

 

2. mniSvnelovani da saintereso informacia

არ მოგვეპოვება.


3. adgilmdebareoba

ალის ღვთისმშობლის ეკლესია მდებარეობს საქართველოში, იმერეთის მხარეში, ხაშურის მუნიციპალიტეტში, ისტორიულ მხარე იმერეთში, ხაშურიდან 25 კმ-ში ჩრდილო-აღმოსავლეთით მდებარე სოფელ ალის ჩრდილოეთით, მდინარე ჭერათხევის ზედა ნაწილში.

4. ruka



5. istoriuli mimoxilva

RvTismSoblisa da usaneTis eklesiebi

ალის ღვთისმშობლის ეკლესია სტილისტური ნიშნებით თარიღდება XVI-XVII საუკუნეებით. ამ ძეგლიდან დასავლეთით რამოდენიმე მეტრში, მდებარეობს ალის უსანეთის ეკლესია.

 








6. legendebi, Tqmulebebi da zepirsityvieri gadmocemebi

არ მოგვეპოვება.


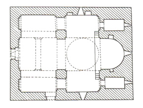
7. arqiteqturuli aRwera

taZris gegma

ალის ღვთისმშობლის ეკლესია დგას ნაქალაქარის დასავლეთ ნაწილში დაზიანებულია – სახურავი კედლების ნაწილი ლავგარდანი ჩამონგრეულია.
ეკლესია გუმბათოვანია (14,5×10,9 მ), ნაგებია ნატეხი ქვითა და აგურით. შესასვლელი აქვს ორი – სამხრეთით და დასავლეთით. გუმბათი საკურთხევლის კუთხეებს და დასავლეთის ორ თავისუფლად მდგომ ბოძს ეყრდნობა. გუმბათქვეშა და დანარჩენი თაღები და ასევე კამარები ისრულია. სამი საფეხურით ამაღლებულია ღრმა საკურთხევლის ნახევარწრიული აფსიდის სარკმლის გვერდებზე კვადრატული ნიშებია, ხოლო მათ ზემოთ – საიდუმლო სათავსებში ასასვლელი ხვრელები. ეს სათავსები მაღალია, გეგმით სწორკუთხა. მათ ქვეშ ასევე სწორკუთხა სამკვეთლო და სადიაკვნეა. დასავლეთის მკლავის კამარა დაკიდულ პილასტრზე გადასულ თაღზეა დაყრდნობილი. ჩრდილოეთი კედლის ნიშში სანათლავია. აფსიდის ღერძზე და სამივე მკლავში თითო სარკმელია, გუმბათის ყელში – თორმეტი. ეკლესიის ინტერიერი შეთეთრებულია.

aRmosavleTi fasadi grZivi ganakveTi
samxreTisaken

ეკლესიის ცოკოლი ერთი საფეხურითაა გამოწეული. ფასადებზე კარ–სარკმლის საპირეები ამოყვანილია აგურით. სამხრეთ ფასადზე უსწორო ქვაზე მზის საათია ამოკვეთილი. აღმოსავლეთ ფასადზე მარცხენა სარკმლის ქვემოთ გამოსახულია მარტივი ჯვარი. აგურის თორმეტწახნაგა პირამიდული გუმბათის წახნაგები გაწყობილია უწყვეტი თაღებით.

martivi jvari mzis saaTi


8. Zeglis daqvemdebareba da statusi

ალის ღვთისმშობლის ეკლესია ურბნისისა და რუისის ეპარქიის დაქვემდებარებაშია.



9. gamoyenebuli masalebi da bibliografia

1. საქართველოს ისტორიისა და კულტურის ძეგლთა აღწერილობა, ტ5, 1990 წ.
2. ფოტოების ავტორი – ზაზა ქარდავა, ლიდა კაპანაძე;


10. marSruti

დადგინდება;


11. bmulebi

http://ka.wikipedia.org

http://www.nplg.gov.ge

http://blogger.ge

http://dzeglebi.com

 

 


megobari saitebi

   

08.05.2016