|
sayavres RvTismSoblis
eklesia
(1460 w.)
1. kompleqsSi Semavali nagebobebi
2. mniSvnelovani informacia
3. adgilmdebareoba
4. ruka
5. istoriuli mimoxilva
6. legendebi, Tqmulebebi da zepirsityvieri gadmocemebi
7. arqiteqturuli aRwera
8. Zeglis statusi da mdgomareoba
9. gamoyenebuli masalebi da bibliografia
10. marSruti
11. bmulebi
1. kompleqsSi Semavali nagebobebi
ეკლესია
2. mniSvnelovani da saintereso informacia
არ მოგვეპოვება.
3. adgilmdebareoba
საყავრეს ღვთისმშობლის ეკლესია მდებარეობს საქართველოში, შიდა ქართლის მხარეში, გორის მუნიციპალიტეტში, მისგან სამხრეთით 40 კმ–ში მდებარე სოფელ საყავრეს ჩრდილო-დასავლეთით.
4. ruka

5. istoriuli mimoxilva
საყავრეს ღვთისმშობლის ეკლესია სამშენებლო მხედრული წარწერის მიხედვით აუგია ვინმე ვახტანგ ჯავახიშვილს.
6. legendebi, Tqmulebebi da zepirsityvieri gadmocemebi
არ მოგვეპოვება.
7. arqiteqturuli aRwera
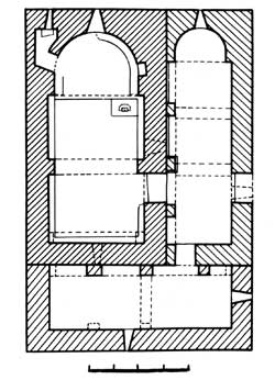
საყავრეს ღვთისმშობლის ეკლესია დარბაზულია (9,4X7,9 მ), ნაგებია ნატეხი ქვით. შესასვლელი სამხრეთით და დასავლეთითაა. აფსიდში ერთი სარკმელია, რომლის გვერდებზე თითო სამკუთხა ნიშია. სამხრეთის და დასავლეთის კედლებშიც თითო სარკმელია. დარბაზი გადახურულია ცილინდრული კამარით. აღმოსავლეთ ფასადზე, საკურთხევლის სარკმლის ზემოთ, ჩასმულია ყვითელი ქვიშაქვა, რომელზეც ამოკვეთილია სამშენებლო წარწერა.
 |
 |
| gegma |
fasadi da ganakveTi |
ფასადები დასრულებულია საფეხურებად ნაწყობი აგურის ლავგარდნით. შენობის სამხრეთით და დასავლეთით თითო მინაშენია. დასავლეთის მინაშენი სწორკუთხაა (შემორჩენილია მხოლოდ ქვედა ნაწილი), სამხრეთისა (კარიბჭე) სცილდება ეკლესიის სამხრეთ კედელს და დასავლეთის მინაშენის თაღოვანი შესასვლელის პირდაპირაა. ინტერიერში სამხრეთ კედელზე ორი პილასტრია. გადახურვა ჩანგრეულია.
8. Zeglis daqvemdebareba da statusi საყავრეს ღვთისმშობლის ეკლესია სამთავისისა და გორის ეპარქიის დაქვემდებარებაშია.
9. gamoyenebuli masalebi da bibliografia
საქართველოს ისტორიისა და კულტურის ძეგლთა აღწერილობა, ტ5, 1990წ.
10. marSruti
დადგინდება;
11. bmulebi
http://ka.wikipedia.org
http://dzeglebi.com
|