|
|
erisTavebis sacxovrebeli
saxli
(XVII-XVIII-XIX s.)
1. kompleqsSi Semavali nagebobebi
2. mniSvnelovani informacia
3. adgilmdebareoba
4. ruka
5. istoriuli mimoxilva
6. legendebi, Tqmulebebi da zepirsityvieri gadmocemebi
7. arqiteqturuli aRwera
8. Zeglis statusi da mdgomareoba
9. gamoyenebuli masalebi da bibliografia
10. marSruti
11. bmulebi
1. kompleqsSi Semavali nagebobebi
საცხოვრებელი სახლი
2. mniSvnelovani da saintereso informacia
არ მოგვეპოვება.
3. adgilmdebareoba
ერისთავების საცხოვრებელი სახლი მდებარეობს საქართველოში, შიდა ქართლის მხარეში, გორის მუნიციპალიტეტში, მისგან ჩრდილოეთით 20-კმ–ზე მდებარე სოფელ დიდ მეჯვრისხევში, სტალინის ქუჩაზე.
4. ruka

5. istoriuli mimoxilva
არ მოგვეპოვება.
6. legendebi, Tqmulebebi da zepirsityvieri gadmocemebi
არ მოგვეპოვება.
7. arqiteqturuli aRwera
 |
sacxovrebeli saxli
|
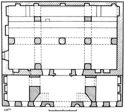
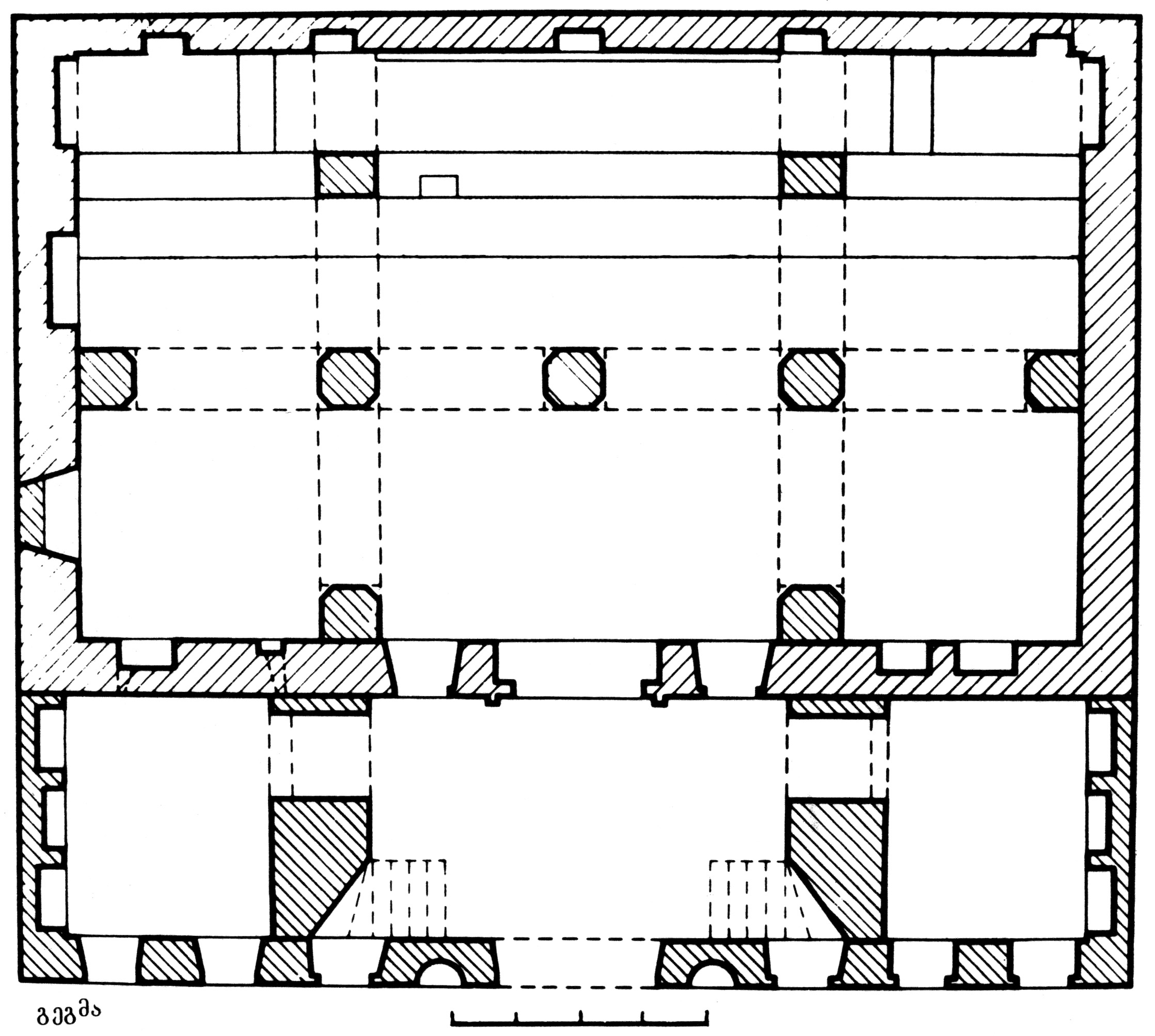
ა) ერისთავების საცხოვრებელი სახლი რამდენჯერმეა გადაკეთებული: სამხრეთიდან ორ სართულად მიშენებულია ოთახები და დარბაზი (სააქტო), მეორე სართულზე ოთახები გატიხრულია, რამდენიმე სარკმელი გადაკეთებულია კარად. გარედან მთავარი ფასადის მხარეს მიდგმულია ხის კიბე.
შენობა (17,5X15 მ) შედგება ორი ნაწილისაგან. შესასვლელი აღმოსავლეთითაა. დასავლეთ ნაწილში, პირველ სართულზე, მარანია, აღმოსავლეთ ნაწილში (გვიანდელი) - ვესტიბიული და კუთხის ოთახები. ვესტიბიული მეორე სართულთან დაკავშირებული იყო ორ მასიურ კიბით. მეორე სართულზე, ვესტიბიულის თავზე, ხისსვეტებიანი ღია ლოჯია და კუთხის ოთახებია. ამ სართულზე კიდევ რამდენიმე საცხოვრებელი ოთახია.
ბ) მარანში (10,4X15,5) მოხვედრა ამჟამად ვესტიბიულიდან შეიძლება. მისი შეისრულთაღიანი შესასვლელის ორივე მხარეს თითო სარკმელია, რომლებსაც ლითონის გეომეტრიული გისოსები აქვთ. სამხრეთით კედელში ხის სარტყლის ნაშთია, კედლებში სხვადასხვა ზომის სწორკუთხა და თაღოვანი ნიშებია. რამდენიმე ნიშში სათოფურია, რაც იმაზე მეტყველებს, რომ შენობის ეს ნაწილი თავდაპირველად სამეურნეო და თავდაცვითი დანიშნულებისა იყო. მარანი რვაწახნაგა აგურის სვეტებით ორ ნაწილად იყოფა. სვეტების გასწვრივ, აღმოსავლეთ, სამხრეთ და ჩრდილოეთ კედლებზე კუთხეებჩაკვეთილი პილასტრებია. მარნის დასავლეთ ნაწილი, თავის მხრივ, ორ სვეტითა და მთაზე გადაყვანილი თაღებით ორ ნაწილადაა გაყოფილი. სვეტებისა და პილასტრების საფეხურებიან კაპიტელებზე გადაყვანილია ნახევარწრიული თაღები. დასავლეთის ყრუ კედლის მთელ სიგრძეზე გასდევს საწნახელი, რომელსაც წინ მაღალი საფეხური აქვს. მარნის გადახურვა ხისაა, კოჭოვანი. დასავლეთ ფასადის მეორე სართულზე გამოდის საცხოვრებელი ოთახების ფანჯრები. სახლის მთავარი, აღმოსავლეთ ფასადი სიმეტრიულია. პირველი სართულის ცენტრალური ნაწილი გახსნილია მაღალი და განიერი თაღით, რომელშიც ჭიშკარი იყო ჩასმული, ხოლო მეორე ორსვეტიანი ღია ლოჯია. შესასვლელის ორივე მხარეს თაღოვანი ნიშებია. ფასადის კედლები დანაწევრებულია ფრონტონიანი სარკმლებით. ნაგებობის ყველა კედელი, მარნის გარდა, შელესილია.
8. Zeglis daqvemdebareba da statusi
არ მოგვეპოვება.
9. gamoyenebuli masalebi da bibliografia
საქართველოს ისტორიისა და კულტურის ძეგლთა აღწერილობა - ტ5, 1990წ.
10. marSruti
დადგინდება;
11. bmulebi
არ მოგვეპოვება.
|