Zeglebis sruli sia

 

 

 

 

 

 

 

 

 


 

foto foto foto

rkonis kompleqsi
(VII -XVIII ss)

1. kompleqsSi Semavali nagebobebi
2. mniSvnelovani informacia
3. adgilmdebareoba
4. ruka
5. istoriuli mimoxilva
6. legendebi, Tqmulebebi da zepirsityvieri gadmocemebi
7. arqiteqturuli aRwera
8. Zeglis statusi da mdgomareoba
9. gamoyenebuli masalebi da bibliografia
10. marSruti
11. bmulebi

1. kompleqsSi Semavali nagebobebi

ღვთისმშობლის ეკლესია, კარიბჭე, სამლოცველო, სატრაპეზო, კოშკი, სამრეკლო, ნათლისმცემლის ეკლესია, ერთმალიანი ხიდი, და ბერების სენაკები.

2. mniSvnelovani da saintereso informacia

რკონის კომპლექსში შედის XII საუკუნის ხიდი, რომელიც პირვანდელი სახითაა შემორჩენილი ისევე როგორც დანარჩენი ნაგებობები (ხიდის წარწერა). კომპლექსი მნიშვნელოვან, შიდა ქართლისა და სამცხე-ჯავახეთის დამაკავშირებელ გზაზე მდებარეობდა.

3. adgilmdebareoba

რკონის კომპლექსი მდებარეობს საქართველოში, შიდა ქართლის მხარეში, კასპის მუნიციპალიტეტში, მისგან სამხრეთ-დასავლეთით 20 კილომეტრის მოშორებით, მდინარე თეძმის მარცხენა ნაპირზე.

4. ruka

map

5. istoriuli mimoxilva

XII-XIII საუკუნეებში რკონზე გადიოდა მნიშვნელოვანი სავაჭრო და სამხედრო-სტრატეგიული გზა, რომელიც აკავშირებდა შიდა ქართლს ჯავახეთთან, თრიალეთთან და შემდეგ, სომხეთის გავლით, ახლო აღმოსავლეთთან. ამან ხელი შეუწყო, რკონში და მის მიდამოებში დიდ სამონასტრო მშენებლობას. XIII საუკუნის მეორე ნახევარში მსხვილმა ფეოდალმა და სახელმწიფო მოღვაწემ კახა თორელმა შეისყიდა სოფელი ხოვლე და შესწირა რკონის მონასტერს. 1400 წელს, თემურლენგის ჯარებმა დაარბიეს სოფელი, და ირგლივ მდებარე ეკლესიები და მონასტრებიც. XVI-XVIII საუკუნეებში რკონი, საკმაოდ კარგად გამაგრებული პუნქტი იყო. ქართლის მეფე გიორგი XI აქედან აწარმოებდა ბრძოლებს ერეკლე I-ის ჯართან და როდესაც იგი დამარცხდა, ოჯახით გაიქცა დასავლეთ საქართველოში. 1905 წელს, რკონში არსებობდა სახელოსნო-ლაბორატორია, სადაც ამზადებდნენ შეიარაღებული აჯანყებისათვის საჭირო იარაღსა და ფეთქებად ნივთიერებებს.

6. legendebi, Tqmulebebi da zepirsityvieri gadmocemebi

გადმოცემის თანახმად, რკონში იყო “სალოცავი ხე” დიდი ცაცხვის ხე, რომელზედაც მლოცველები ჰკიდებდნენ შეწირულობას.

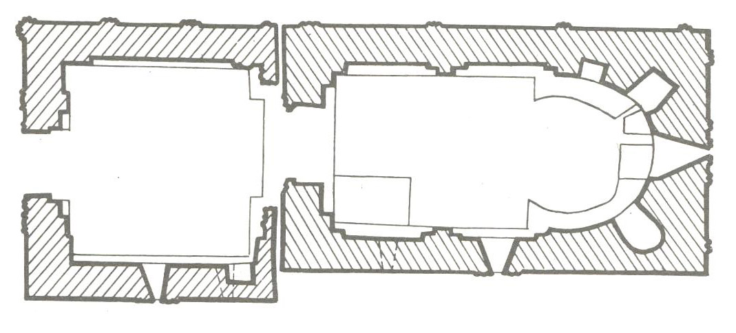
7. arqiteqturuli aRwera

 

masterplan
gengegma

ა) ღვთისმშობლის ეკლესია VII საუკუნის მეორე ნახევრით თარიღდება. სამნავიანი ბაზილიკაა (18,2X12,1 მ), სამი მხრიდან შესასვლელით (ჩრდილოეთი კარი ამოქოლილია), აქვს სადიაკვნე და სამკვეთლო (პასტოფორიუმები).

plan
RvTismsSoblis eklesia. gegma

ნავები ერთმანეთისგან გამოყოფილია სვეტებით. სვეტებზე გადასროლილი თაღები თითქმის ნახევარწრიული მოხაზულობისაა. გადახურვა კამაროვანია. ადრეული საუკუნეებისთვის დამახასიათებელი ნალისებური თაღები, რომელიც ეკლესიას ამკობდა, ახლა მხოლოდ დასავლეთ კარის თავზე და სადიაკვნის სარკმლის შიდა მხარეს გვხვდება. ინტერიერში შემორჩენილია მცირე ფრაგმენტები გვიანი მოხატულობის, რომელიც სხვადასხვა დროსაა შესრულებული (ძირითად სივრცეში და სადიაკვნეში შემორჩენილი ფრაგმენტები XII საუკუნეს განეკუთვნება, ეკლესიის სამკვეთლოში XVII საუკუნის მოხატულობაა, თუმცა შესასვლელის სამხრეთ წირთხლზე შესრულებული საერო პირის გამოსახულება არაუგვიანეს X საუკუნისაა. ეგვტერის მოხატულობა კი განვითარებული ფეოდალური ხანით თარიღდება). ეკლესიას ბოლოს რესტავრაცია გაუკეთდა 1972-74 წლებში.

fasad
RvTismsSoblis eklesia. fasadi da Wrili

ბ) კარიბჭე (3,8X9,5) ეკლესიას XIII საუკუნის მეორე ნახევარში მიაშენეს. კარიბჭის ცენტრალურ ნაწილში ეკვდერია, გეგმით კვადრატული, ცილინდრული კამარით გადახურული ეგვტერის იატაკი ჩანგრეულია. აქვს სამი სარკმელი - ერთი აღმოსავლეთით, ორი დასავლეთით. ფასადები დეკორატიული ნახევარსვეტებიანი თაღედით არის მორთული. ნახევარსვეტების ბაზისები, კაპიტელები, თაღი და სარკმლის საპირეები მოჩუქურთმებულია.

გ) სამლოცველო - დარბაზული ეკლესია ამავე პერიოდს (XII საუკუნის მეორე ნახევარი) განეკუთვნება. ეკლესიას სამხრეთიდან მიშენებული მცირე ზომის (5,8X3,6 მ) შესასვლელი დასავლეთიდან აქვს. აღმოსავლეთ, დასავლეთ და სამხრეთ კედლებში თითო სარკმელია. სამლოცველოში შემორჩენილი მოხატულობის ფრაგმენტები XIII-XIV საუკუნეებით თარიღდება.
სამლოცველოს ფასადები თლილი ქვითაა მოპირკეთებული და დეკორატიული თაღებით და ჩუქურთმებითაა შემკული.

დ) სატრაპეზო - მთავარი ეკლესიის ჩრდილო - დასავლეთით დგას. ძირითადი ნაგებობა XIII-XIV საუკუნეების მიჯნით თარიღდება. 6 საბჯენ თაღზე დაყრდნობილი შეისრული კამარით გადახურული სათავსი (5,2 X 16,6 მ) ნაგებია ნატეხი ქვით. აღმოსავლეთის მხარეს შესასვლელი არქიტრავითაა გადახურული. ერთი სარკმელი აქვს სამხრეთით, სამი - დასავლეთით. გადახურულია ლორფინით. ამჟამად ძლიერ დაზიანებულია.

touer
samreklo

ე) კოშკი - სატრაპეზოდან სამხრეთ-დასავლეთით 40-ოდე მეტრითაა დაშორებული. იგი სატრაპეზოს მსგავასად ნატეხი ქვითაა ნაგები. შემორჩენილია სამი სართული. შესასვლელი მეორე სართულზეა. პირველ და მეორე სართულს თითო სარკმელი აქვს.

ვ) სამრეკლო, რომელიც მთავარი ეკლესიიდან ჩრდილო-დასავლეთით არის XVII-XVIII სს თარიღდება. ორსართულიანია, შესასვლელი სამხრეთიდან აქვს. კედლები და სახურავი დაზიანებულია. პირველი სართული მოხატული იყო. (მხატვრობა სამრეკლოს თანადროულია. ამჟამად, იმის გამო რომ ბათქაშის დიდი ნაწილი ჩამოშლილია და დანარჩენი ნაწილი ძალზე გაჭვარტლული, მოხატულობა ძნელად გაირჩევა).
მეორე სართული რვა ღია თაღზე აგურით ამოყვანილი ცილინდრული ფანჩატურია, რომელსაც გარშემო თლილი ქვის ლავგარდანი შემოუყვება. ფანჩატურში დასავლეთიდან მიშენებულ კიბეს ავყავართ. კედელში არის ნიში, რომელზედაც გარედან უფრო დიდი ნიში მიუშენებიათ ე.წ ”ხატის ნიში”.

ზ) სენაკების და სხვა ნაგებობებისგან მხოლოდ ნაშთებიღა შემორჩა, რომელიც რკონის კომპლექსში შემავალ ფერდობზეა აშენებული.

naTlismcemlis eklesiis grZivi ganakveTi samxreTisaken naTlismcemlis eklesiis gegma

თ) ღვთისმშობლის ეკლესიის (მთავარი ეკლესიის) სამხრეთით შვიდიოდე მეტრში დგას ნათლისმცემლის ეკლესია, რომელიც XIII-XIV საუკუნის მიჯნით თარიღდება. ორსაფეხურიან ცოკოლზე აღმართული ეკლესია დარბაზულია (7,3 X4,3 მ), ნაგებია კარგად გათლილი ქვის სხვადასხვა ზომის კვადრებით. შესასვლელი დასავლეთიდან აქვს. აღმოსავლეთით და დასავლეთით თითო სარკმელია გაჭრილი. ორი სარკმელია სამხრეთით. დარბაზი ცილინდრული კამარითაა გადახურული, რომლის საბჯენი თაღები პილასტრებს ეყრდნობა. ფასადები, გარდა
სამხრეთისა, საითკენაც ღრმა ხევია, მორთულია დეკორატიული თაღედით, რომლის ნახევარსვეტების კაპიტელები და ბაზისები მოჩუქურთმებულია. ასვე მოჩუქურთმებულია სარკმლებიც.
სამხრეთით, სპეციალურად ამოყვანილ სუბსტრუქციაში გაჭრილია სამარხი. მოგვიანებით ეკლესიას დასავლეთიდან კარიბჭე (4,5 X4,8 მ) მიაშენეს.

bridge
xidi
ი) რკონის (თამარის) ხიდი - სამონასტრო კომპლექსის ტერიტორიაზე მდინარე თეძამზეა გადებული. ხიდი თარიღდება XII-XIII საუკუნეებით. 12,5 მ სიგრძის ნახევარწრიული ხიდი ერთი მთლიანობაა, მდინარის ზედაპირიდან 7,6 მ სიმაღლეზე გადარკალული. სიგანით 2,2 მეტრია. ნაგებია ნატეხი ქვით კირის მკვრივ დუღაბზე. ხიდის ბურჯები ბუნებრივ კლდოვან საფუძველს ეყრდნობა. ხიდი თავდაპირველი სახითაა შემორჩენილი და საქართველოს ფეოდალური ხანის ხიდების ერთ-ერთი საუკეთესო ნიმუშია. მნიშვნელოვანია რომ აქ გადიოდა გზა, რომელიც შიდა ქართლს თრიალეთთან აკავშირებდა.

 

8. Zeglis daqvemdebareba da statusi

რკონის კომპლექსი რუის-ურბნისის ეპარქიის დაქვემდებარებაშია. იგი არ არის მოქმედი.

9. gamoyenebuli masalebi da bibliografia

საქართველოს ისტორიისა და კულტურის ძეგლთა აღწერილობა, 5ტ. 1990წ

10. marSruti

დადგინდება;

11. bmulebi

http://ka.wikipedia.org

http://www.nplg.gov.ge

http://www.saunje.ge

http://karavi.ge

 


megobari saitebi

dz_anotacia
   

08.05.2016