Zeglebis sruli sia

 

 

 

 

 

 

 

 

 


 

წყაროსთავი (კლარჯეთის)
(IX s)

1. kompleqsSi Semavali nagebobebi
2. mniSvnelovani informacia
3. adgilmdebareoba
4. ruka
5. istoriuli mimoxilva
6. legendebi, Tqmulebebi da zepirsityvieri gadmocemebi
7. arqiteqturuli aRwera
8. Zeglis statusi da mdgomareoba
9. gamoyenebuli masalebi da bibliografia
10. marSruti
11. bmulebi

1. kompleqsSi Semavali nagebobebi

მთავარი ეკლესია, სატრაპეზო, სამი მცირე ეკლესია

2. mniSvnelovani da saintereso informacia

XII-XIII საუკუნეებში წყაროსთავში დაიწერა რამოდენიმე ხელნაწერი, მათ შორის წყაროსთავის ცნობილი სახარება (1195 წ) ბექა ოპიზარის მიერ მოჭედილი ყდით და ანჩის (იგივე წალკის) სახარება (1193-1207 წლებს შორის), რომელსაც ამავე ოსტატის ნახელავი ჭედური ყდა დაკარგული აქვს.

წყაროსთავის სახარება

წყაროსთავის სახარება – 1195; 277ფ.; 25X18; ეტრატი; თავის დროზე ცალკე ჩაწებებული მახარებელთა ოთხი პორტრეტი ამოცვენილია. ხის ყდა თითქმის მთლად მოცილებულია; ყდის ყუა ტყავისაა; იგი შემკული ყოფილა ვერცხლის მრგვალი, კაზმული, ღილებით, რომელთა მნიშვნელოვანი ნაწილი დაკარგულია; ყდის შიგნითა ნაწილები შემოსილია ძველებური მჭიდროდ ნაქსოვი ოქრომკერდით ლურჯი ტილოს ფონზე; ყდის ორივე ფრთა მოჭედილია მოოქროვილი ვერცხლით ბექა ოპიზარის ხელით; თავის დროზე ყდას ექვსი შესაკრავი ჰქონია, რომელთაგან დარჩენილია 5 ბალთა და მათი დასამაგრებელი სამი თოკი. Yყდის პირველი ფრთის მოჭედილობის ცენტრალური ადგილი ჯვარცმის კომპოზიციას უჭირავს, რომელიც გარშემოვლებულია ვერცხლის გრეხილი ჩარჩოთი. სახარება დაწერილია ორი გადამწერის – იოანე ფუკარალის ძის, მნათისა და გიორგი სეთაისძის ხელით; კლასიკური ნუსხურით; ორ-ორ სვეტად. დაბრუნებულია პარიზიდან.

3. adgilmdebareoba

წყაროსთავის ტაძარი მდებარეობს თურქეთში, ართვინის პროვინციაში, ართვინის რაიონში, ისტორიულ მხარე კლარჯეთში, სოფელ წყაროსთავთან (ქაროსთავ) (Karostav), მდინარე კარჩხალის ხეობაში.  

4. ruka

5. istoriuli mimoxilva

წყაროსთავი მდებარეობს კარჩხალას ხეობაში, მისი მარცხენა შენაკადი ნაკადულის პირას. ნამონასტრალის შორიახლოს ახლა რამდენიმე საცხოვრებელი სახლი დგას. ეგ არის იმერხევის გაღმა მდებარე სოფელ ჭედილის საზაფხულო სადგომი (იაილა), რის გამოც თვით ამ პუნქტსაც ზოგჯერ ჭედილს (თურქულად `ჩიდილ~) ეძახიან. შემორჩენილია სახელწოდება წყაროსთავიც. თურქები ოდნავ ამახინჯებენ მას და ამბობენ `საროთავს~ ან `ქაროთავს~ (karostav).
წყაროსთავი კლარჯეთის ერთ-ერთი უმშვენიერესი და უძველესი მონასტერთაგანია. ის არ უნდა აურიოთ ამავე სახელწოდების სხვა ეკლესიაში, რომელიც დასავლეთ ჯავახეთში მდებარეობს და ამჟამად ასევე თურქეთის ფარგლებშია მოქცეული. მონასტერი დაარსა ილარიონმა, რომელიც შემდგომ `კათალიკოს იქმნა მცხეთას~. წერილობითი ცნობები მოწმობს, რომ სავანე სულიერი ცხოვრების მნიშვნელოვან ცენტრს წარმოადგენდა. XI საუკუნის განმავლობაში აქ მოღვაწეობდნენ ღვთისმეტყველი ექვთიმე გრძელი, იერუსალიმის ჯვრის მონასტრის დამაარსებელი გიორგი-პროხორე, ეგნატე ხუცესმონაზონი. წყაროსთავიდან მომდინარეობს XII-XIII საუკუნეთა რამდენიმე ხელნაწერი, მათ შორის წყაროსთავის ცნობილი სახარება (1195 წ) ბექა ოპიზარის მიერ მოჭედილი ყდით და ანჩის (იგივე წალკის) სახარება (1193-1207 წლებს შორის), რომელსაც ამავე ოსტატის ნახელავი ჭედური ყდა დაკარგული აქვს.
სამეცნიერო ლიტერატურაში წყაროსთავი ცნობილი გახდა ნ. მარის წყალობით. 1904 წელს, როდესაც მკლევარმა `გრიგოლ ხანძთელის ცხოვრების~ ტექსტის პირველ გამოცემასთან დაკავშირებით საგანგებოდ დაიარა შავშეთ-კლარჯეთი, იგი ეწვია წყაროსთავსაც. მისი მოგზაურობის დღიური შეიცავს სამონასტრო ნაგებობების დაწვრილებით აღწერას და ორ ფოტოსურათს. მასალა განსაკუთრებით ძვირფასია, ვინაიდან მასში დაფიქსირებულია მონასტრის მთავარი შენობების – დიდი ეკლესიისა და სატრაპეზოს მოგვიანებით განადგურებული ნაწილები. მათი არქიტექტურული სახის წარმოდგენა მხოლოდ ნ. მარის მონაცემების დახმარებით არის შესაძლებელი.

6. legendebi, Tqmulebebi da zepirsityvieri gadmocemebi

არ მოგვეპოვება

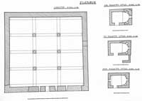
7. arqiteqturuli aRwera

foto

მონასტრის ბირთვი განლაგებულია დამრეც ფერდობზე. ზედა ნაწილში დგას მთავარი ეკლესია, მის სამხრეთით, რამდენიმე მეტრის მოშორებით – მცირე დარბაზული სამლოცველო, სამხრეთ-დასავლეთით – დიდი სატრაპეზო, რომლის სუბსტრუქციაშიც ოთახებია მოწყობილი; ჩრდილო-დასავლეთიდან სატრაპეზოს ორი მართკუთხა სათავსი ერთვის. ამ ძირითად ბირთვს ზღუდე ერტყმის. მის ირგვლივ ვრცელ ტერიტორიაზე გაფანტულია სხვადასხვა დანიშნულების შენობები.
ა) წყაროსთავის მთავარი ეკლესიისაგან დარჩენილია მკლავის კედლები, ნაწილობრივ დასავლეთის მკლავის ჩრდილოეთი კედელი და საკურთხევლის მიმდებარე ჩრდილოეთის სათავსი, რომელმაც დიდწილად გადახურვაც შეინარჩუნა – მთელია მისი აფსიდის კონქი და კამარის შუა და ჩრდილოეთი ნაწილები. სხვაგან კამარები ყველგან ჩაქცეულია. შენობის ნაშთები დაფარულია ნაყარი ქვებითა და მიწით რომლებიც ალაგ-ალაგ 2-3 მეტრის სიმაღლის ბორცვებს ჰქმნის.
წყაროსთავის ეკლესიის არქიტექტურული კომპოზიციის აღწერას მკლევარები ნ. მარის ჩანაწერების მიხედვით ახდენენ, თუმცა უნდა აღინიშნოს, რომ რეკონსტრუქციები ნაწილობრივ პირობითია – 1900-იან წლებში გუმბათი და შენობის სამხრეთი მხარე უკვე დანგრეული იყო.
შენობის გეგმას საფუძვლად უდევს ჯვარი არათანაბარი სიგრძის მკლავებით. განივი მკლავები მოკლეა, ხოლო დასავლეთისა – მკვეთრად წაგრძელებული. მის გრძივ კედლებზე ერთი წყვილი პილასტრია, რომელსაც კამარის საბჯენი თაღი ეყრდნობოდა (თაღიც და კამარაც უკვე დიდი ხანია ჩაქცეულია). მკლავების გასაკვეთაზე იდგა გუმბათი. ამ ძირითადი ჯვრული სტრუქტურის მკლავებსშორის არეებს ავსებდა უფრო დაბალი სათავსები, შესაბამისად დაფერდებული თითოკალთიანი სახურავებით. ჩრდილო-დასავლეთ მკლავებსშორისი კუთხე ორსართულიანი იყო. ზედა სართული წარმოადგენდა ძალიან ვიწრო და გრძელ სათავსს, როგორც ჩანს მთლიანად გამოცალკევებულს ძირითადი სივრცისაგან. ქვედა შედგებოდა ორი მონაკვეთისაგან, რომლებიც თითო დაბალი თაღით იხსნებოდა დასავლეთის მკლავისაკენ. ნ. მარი ამ სათავსებს განიხილავს როგორც ღრმა ნიშებს და აღნიშნავს, რომ მათ კამაროვანი გადახურვა აქვთ. ეს `ნიშები~ ერთმანეთსაც უკავშირდება მცირე კარით. ახლა აქ თითქმის ყველაფერი ჩანგრეულია, მაგრამ დარჩენილი მცირე ფრაგმენტების საფუძველზე შეიძლება გაკეთდეს დასკვნა, რომ კამარა მთლიანად დუღაბისა იყო.
საკურთხევლის ჩრდილოეთით მდებარე სათავსი (მას პირობითად სამკვეთლოს უწოდებენ) უჩვეულოდ დიდია. ის არა მხოლოდ ავსებს მკლავებსშორის კუთხეს, არამედ შესამჩნევად წინაც არის გამოწეული ძირითადი კორპუსის აღმოსავლეთ, და, განსაკუთრებით, ჩრდილოეთ ფასადთა სიბრტყეებიდან. სამკვეთლო კარით უკავშირდება ჩრდილოეთის მკლავს. საკურთხევლის აფსიდისკენ ის გახსნილი იყო ფართო გასასვლელით, რომელიც ახლა არსებობს. მისი სიგანე სამკვეთლოს მხარეს 210 სმ-ს შეადგენდა, საკურთხევლის მხარეს – 187 სმ-ს, სიმაღლე ორმეტრანახევარს აჭარბებდა. ეს უზარმაზარი ღიობი აფსიდის თითქმის მთელ ჩრდილოეთ ნაწილს მოიცავდა.

Wrili

სამკვეთლოს აქვს ძლიერ გაბრტყელებული, გაგმაში მშვილდისებრი რკალის მოხაზულობის აფსიდი. მის სატრიუმფო თაღს (დარჩა ჩრდილოეთ ნახევარი) იმპოსტი არ აქვს, პირდაპირ ამოიზრდება აფსიდის მხარიდან. აფსიდში დიდი (210X103 სმ. ზომის) სარკმელია, რომელიც ღრმად იჭრება კონქის არეში. სარკმელს აქვს ძლიერ დამრეცი რაფა – მისი გარე წიბო შიდაზე ერთი მეტრით მაღლაა. თაღი, პირიქით, გარეთკენ სულ ოდნავ დაბლდება.
შესასვლელი – უთაღო, არქიტრავიანი კარი – ნ. მარის ცნობით, ეკლესიას ჰქონდა დასავლეთიდან. ახლა შენობის ეს ნაწილი მთლიანად დანგრეულია და კარის კვალიც არსად ჩანს.
ეკლესიის შემორჩენილი ნაშთების და ნ. მარის ცნობების მიხედვით როგორც შიდა, ისე გარე წყობას შეადგენს დიდრონი უხეშად დამუშავებული ქვები, რომლებიც ღრმად სხედან კედელში. კედლის გული ამოყვანილია წვრილი და საშუალო ზომის ნატეხი ქვით დუღაბზე. ინტერიერის წყობა შემოინახა სამკვეთლოსა და ჩრდილოეთის მკლავში. მასალა შერეულია – მორუხო-მოყვითალო ქვიშაქვა და ადგილობრივი კლდოვანი ჯიშის ქვა, ბლოკები მართკუთხაა, მკაფიოდ გამოყვანილი წიბოებით. კედლები შიგნით ბათქშით იყო დაფარული.
ქვაზე შემკულობა შემოინახა მხოლოდ სამკვეთლოს სარკმელმა. აღმოსავლეთ ფასადზე მას აგვირგვინებს მორუხო ქვიშაქვის მართკუთხა (73X53 სმ.) ფილა. სარკმლის თაღი მთლიანად ამ ქვაშია გამოყვანილი. მის ზემოთ სარკმელს აქვს სადა თავსართი ბრტყელი წარბით და მოკლე გადანაკეცებით. მათ ებმის მართკუთხა ჩარჩო, რომელიც ფილის მთელ პერიმეტრს შემოწერს. თავსართიცა და ჩარჩოც ურელიეფოა, კედლის სიბრტყიდან არ ამოდის, მხოლოდ ორი ღარის კონტურით მოიხაზება.
წყაროსთავის მონასტრის მტავარი ეკლესია საკმაოდ თავისებური ნაგებობაა. მისი არქიტექტურული კომპოზიცია ენათესავება ე.წ. `გუმბათიანი დარბაზის~ ტიპს. სხვა თავისებურებათაგან უნდა აღინიშნოს შენობის მოცულობიდან მკვეთრად გამოშვერილი დიდი სათავსი საკურთხევლის ჩრდილოეთით. თავისებურებების გათვალისწინებით წყაროსთავის ეკლესია IX ს–ით უნდა დათარიღდეს. სავარაუდოდ ის არის მონასტრის თავდაპირველი ეკლესია, აშენებული თვით ილარიონის მიერ სავანის დაარსებისას, 830-40-იან წლებში.

gegma

ბ) ეკლესიის დასავლეთით დგას სატრაპეზო. `სიხალვათით, სამუშაოს შესრულების სისუფთავით, არქიტექტურული მორთულობის ზომიერებით, წყობის გულმოდგინეობითა და ქვის ნათელი ფერით მშვენიერ შთაბეჭდილებას ახდენს~ - წერდა ნ. მარი სატრაპეზოს ინტერიერის შესახებ. შენობა აღმართულია ზედ ხეობის პირას, ძლიერ დამრეც ფერდობზე. მის მოსასწორებლად აუშენებიათ უზარმაზარი სუბსტრუქცია (მისი წინა კედლის სიმაღლე 9 მეტრს აჭარბებს), რომელშიც დამხმარე სათავსები მოუწყვიათ ორ იარუსად. ქვედა იარუსი ახლა შეუღწეველია – მის არსებობაზე მიგვინიშნებს ოთხი სარკმელი ხეობის მხარეს, მეორე იარუსს შეადგენს 8,0X3,4 მ-ის ზომის კამაროვანი სათავსი, რომელსაც ერთი სარკმელი ანათებს.
თვით სატრაპეზო დიდი მართკუთხა ნაგებობაა. მისი გეგმა კვადრატს უახლოვდება (შიდა ზომა 15,05X13,90 მ). გადახურვა, სამხრეთ-აღმოსავლეთ და ჩრდილო-აღმოსავლეთ კედლები თითქმის მთლიანად განადგურებულია. ჩრდილო-აღმოსავლეთ კედლისგან, დაახლოებით ნახევარია შემორჩენილი, ამ კედელზე შემორჩა ორი წაკვეთილი შეკიდული პილასტრი, რომლებიც საშუალებას იძლევა სატრაპეზოს შიდა არქიტექტურულ დანაწევრებაზე. მისი სივრცე ოთხი წყვილი თაღით დანაწევრებული იყო სამ ნავად.

Wrili

თაღები მრგვალ სვეტებს ეყრდნობოდა. ერთი სვეტის ფრაგმენტი ახლა იქვე გდია, მისი დიამეტრიც 61 სმ-ია. ცენტრში სვეტს აქვს 8 სმ-ის დიამეტრის ხვრელი. ასეთ ხვრელებში ჩასმული იყო ლითონის სპეციალური სამაგრები სვეტების შემადგენელი ცილინდრული ქვების გადაბმის სიმტკიცის უზრუნველსაყოფად. მთავარი შესასვლი, რომლისგანაც ახლა მხოლოდ კვალია, განირჩევა საძირკვლის დონეზე, სამხრეთ-აღმოსავლეთიდან იყო. სარკმლები მოწყობილია ხეობის მხარეს, სამხრეთ-დასავლეთის კედელში. სულ იყო რვა სარკმელი – ქვემოთ შუაში ერთი დიდი, მის აქეთ-იქით ორი მომცრო, ერთი შედარებით მოზრდილი ზემოთ შუაში, ორი მომცრო აქეთ-იქით და კიდევ ორი სულ პატარა (ერთი მრგვალი, მეორე გვირგვინისებრი ფორმის) მათ შორის. ახლა ზედა რიგის სარკმელები ნაწილობრივ მორღვეულია. ყველა სარკმელი შიგნითკენ ფართოვდება, გარდა ქვედა რიგის ცენტრალური ღიობისა, რომელიც პარალელურწირთხლებიანია. სატრაპეზოს ჰქონდა ორკალთიანი სახურავი, სამხრეთ-დასავლეთ და ჩრდილო-აღმოსავლეთ ფასადებზე ფრონტონებით.


gegma

ჩრდილო-დასავლეთიდან სატრაპეზოს ეკვრის ორი მართკუთხა სათავსი. მათი გადახურვაც მთლიანად ჩანგრეულია, ოთახები ერთმანეთს თაღოვანი გასასვლელით უკავშირდებოდა. გარდა ამისა სატრაპეზოს მომიჯნავე სათავსს აქვს თითო კარი სატრაპეზოსა და ხეობის მხარეს. სავარაუდოა, რომ სატრაპეზო ეკლესიაზე გვიან უნდა იყოს აგებული, კერძოდ, X საუკუნეში.
გ) მონასტრის დასავლეთით, რამდენიმა ასეული მეტრის დაშორებით, კლდოვან კონცხებზე სამი პატარა დარბაზული ეკლესია დგას. ამათგან ზედა და შუა (მას სამხრეთიდან მინაშენიც აქვს) ძლიერ დაზიანებულია, გადარჩა მხოლოდ მათი აღმოსავლეთი ნაწილები. ქვედა შედარებით უკეთეს მდგომარეობაშია, თუმცა კამარა მასაც ჩანგრეული აქვს. ამ სამლოცველოების სამშენებლო ტექნიკა დიდი ეკლესიისას ჰგავს. სავარაუდოა, რომ ესენიც IX საუკუნისა არიან.
აღსანიშნავია, რომ მონატსტრის მიდამოებში ნ. მარმა ნახა არქიტექტურულად გაფორმებული ძველი წყარო, ქვის კედლებითა და კამარით, საწნახელი და სხვა ნაგებობები.

gegma gegma


8. Zeglis daqvemdebareba da statusi

წყაროსთავის ტაძარი თურქეთის რესპუბლიკის კულტურის სამინისტროს დაქვემდებარებაშია. საქართველოს მართმადიდებელი ეკლესიის დაყოფით სამცხე–ჯავახეთის და ტაო–კლარჯეთის ეპარქიის დაქვემდებარებაშია.

9. gamoyenebuli masalebi da bibliografia

1. დ. ხოშტარია – „კლარჯეთის ეკლესიები და მონასტრები“, 2005წ.
2. ფოტოები და გეგმები აღებულია ინტერნეტ ბმულიდან  http://www.virtualtao-klarjeti.com/monuments2.aspx?iid=66

10. marSruti

დადგინდება;

11. bmulebi

http://www.nplg.gov.ge

http://www.virtualtao-klarjeti.com

http://www.tao-klarjeti.ge/

 

 

 

 

 


megobari saitebi

   

08.05.2016