|
|
დოლოჭოპის ბაზილიკა
(დურუჯისპირა ბაზილიკა)
V ს. I ნახ.
1. kompleqsSi Semavali nagebobebi
2. mniSvnelovani informacia
3. adgilmdebareoba
4. ruka
5. istoriuli mimoxilva
6. legendebi, Tqmulebebi da zepirsityvieri gadmocemebi
7. arqiteqturuli aRwera
8. Zeglis statusi da mdgomareoba
9. gamoyenebuli masalebi da bibliografia
10. marSruti
11. bmulebi
1. kompleqsSi Semavali nagebobebi
ბაზილიკა.
2. mniSvnelovani da saintereso informacia
დოლოჭოპის ბაზილიკის ზომები წარმოადგენს აღმოსავლეთ საქართველოში დღემდე აღმოჩენილ ბაზილიკათაგან უდიდეს ნაგებობას (35,7X18 მ).
3. adgilmdebareoba
დოლოჭოპის ბაზილიკა მდებარეობს საქართველოში, კახეთის მხარეში, ყვარლის მუნიციპალიტეტში, მისგან (ცენტრიდან) ჩრდილოეთით 4.5 კმ-ში, მდინარე დურუჯის მარჯვენა ნაპირას, ტყეში.
GPS კოორდინატებია - N 41 58’ 25.4; E 45 48’ 36.7.
4. ruka
5. istoriuli mimoxilva
დოლოჭოპის ბაზილიკის შესახებ არანაირი წერილობითი ცნობები არ არის შემონახული.
ილიას სახელმწიფო უნივერსიტეტის სამეცნიერო ჯგუფმა, არქეოლოგიის მიმართულების პროფესორების, სტუდენტების და მოწვეული სპეციალისტის შემადგენლობით, 2012 წლის ივლის-სექტემბერში განახორციელა საქართველოში, ყვარლის რაიონში შემორჩენილი, ამჟამად „დოლოჭოპის ეკლესიის“ სახელწოდებით ცნობილი ქრისტიანული ბაზილიკის ნაშთების არქეოლოგიური კვლევა და გამოიკვლია შემდეგი ფაქტები:
 |
 |
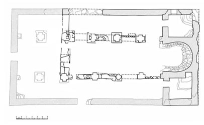
| ბაზილიკის განათხარი ფართის გეგმა |
ნაწილობრივი აღდგენა განვითარებულ შუა საუკუნეებში. გეგმა. |
არქეოლოგიური კვლევით გამოვლენილი დოლოჭოპის ბაზილიკა, ქართული საეკლესიო ხუროთმოძღვრების ისტორიის დღემდე მიღებული ნებისმიერი კლასიფიკაციით, მისი გეგმარების სტილისტური ნიშნებიდან გამომდინარე, ქართული ქრისტიანული ბაზილიკური ხუროთმოძღვრების განვითარების პირველ ეტაპს განეკუთვნება და სავარაუდოდ აგებულია V საუკუნის პირველ ნახევარში;
ბაზილიკის განათხარ ფართობთა სტრატიგრაფიამ აჩვენა, რომ მისი წყობიდან გამოსვლა VIII-IX საუკუნეში უნდა მომხდარიყო. სავსებით შესაძლებელია, რომ ეს დარბევა აღმოსავლეთ საქართველოში არაბი სარდლის, მურვან იბნ მუჰამადის (მურვან-ყრუ) გამანადგურებელ ლაშქრობას დაუკავშირდეს;
დოლოჭოპის ბაზილიკის დანგრევისა და ფუნქციონირების საბოლოოდ შეწყვეტის შემდეგ, ამ ადგილზე განვითარებულ შუა საუკუნეებში სოფლის მაცხოვრებლებს მეტად მჭიდრო სამაროვანი მოუწყიათ, რომელსაც ტაძრის მანამდე შემორჩენილი კონსტრუქციების ნაშთების მნიშვნელოვანი ნაწილი დაუზიანებია;
სამაროვანზე დაფიქსირებული არტეფაქტების დამზადება-მოხმარების ზედა ქრონოლოგიური ზღვარიდან გამომდინარე, ბაზილიკის მიდამოების აღნიშნულ სოფელში ცხოვრება XIII საუკუნის შუა ხანებში, საქართველოში მონღოლი დამპყრობლების ერთ-ერთი პირველი ლაშქრობის შედეგად შეწყვეტილა.
6. legendebi, Tqmulebebi da zepirsityvieri gadmocemebi
არ მოგვეპოვება;
7. arqiteqturuli aRwera
|
|
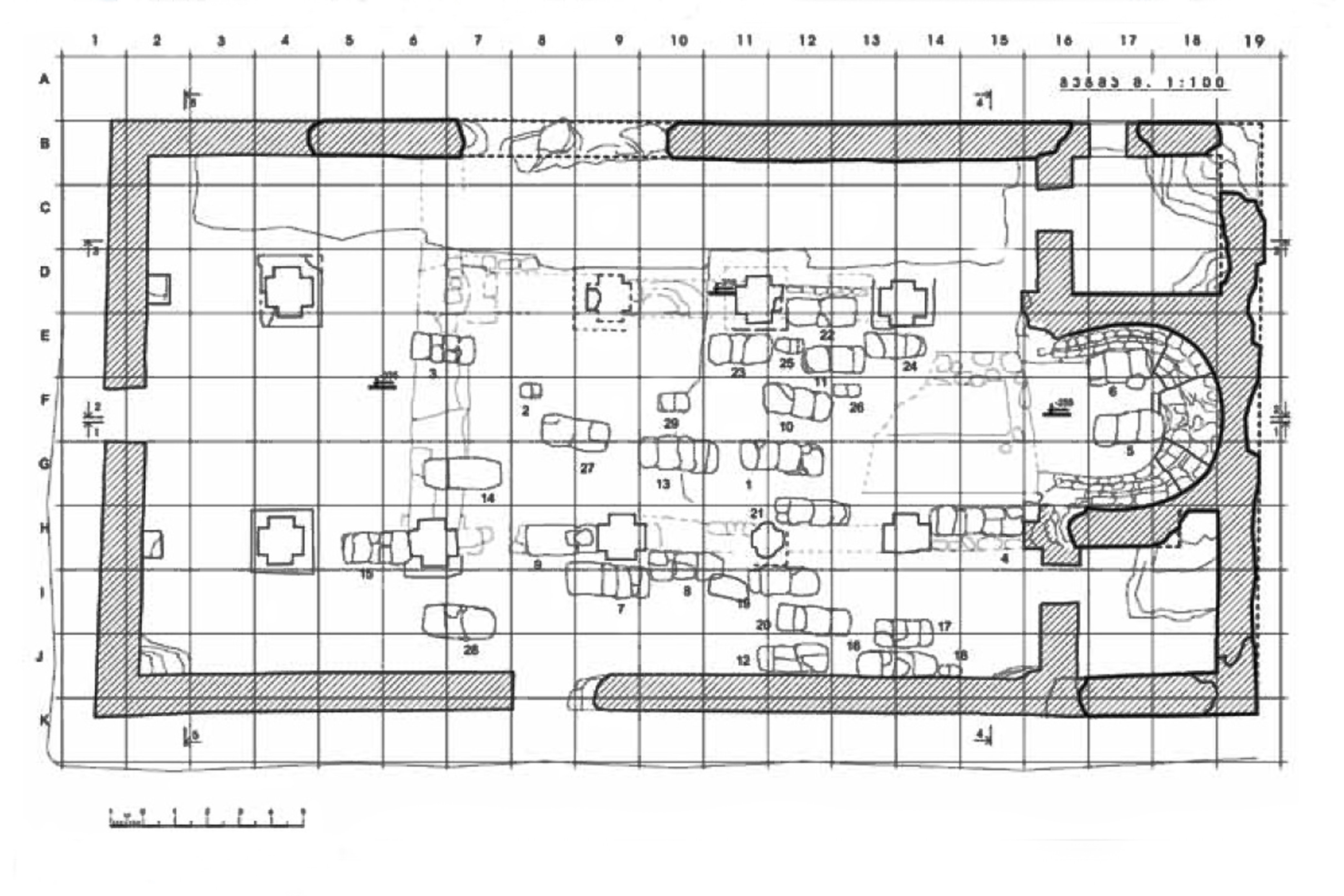
| დოლოჭოპის ბაზილიკის რეკონსტრუირებული გეგმა |
დოლოჭოპის ბაზილიკის აქსონომეტრიული რეკონსტრუქცია |
დოლოჭოპის ბაზილიკის ზომები წარმოადგენს 35.7 მ სიგრძის და 18 მ სიგანის, მართკუთხა გეგმის ბაზილიკური ტიპის ტაძარს – ანუ, აღმოსავლეთ საქართველოში დღემდე აღმოჩენილ ბაზილიკათაგან უდიდესი ნაგებობას. არქეოლოგიური კვლევით გამოვლენილი დოლოჭოპის ბაზილიკა, ქართული საეკლესიო ხუროთმოძღვრების ისტორიის დღემდე მიღებული ნებისმიერი კლასიფიკაციით, მისი გეგმარების სტილისტური ნიშნებიდან გამომდინარე, ქართული ქრისტიანული ბაზილიკური ხუროთმოძღვრების განვითარების პირველ ეტაპს განეკუთვნება.
ყოველ კედელში, გარდა აღმოსავლეთისა, თითო შესასვლელი კარი ყოფილა დატანებული. მისი ნაოსი 5 წყვილი ჯვრისებრი გეგმის სვეტით სამ ნავად იყო დაყოფილი.
 |
| შესასვლელი ჩრდილოეთიდან |
ამ სვეტთაგან სრული გეგმური მოხაზულობით, 2 მ-მდე სიმაღლეზე შემორჩენილი აღმოჩნდა მხოლოდ დასავლეთის უკიდურესი 2 წყვილი; კიდევ 4 სვეტი სრული მოხაზულობით გამოჩნდა, მაგრამ ისინი მხოლოდ 1 მ-მდე სიმაღლისაა; მხოლოდ 2 სვეტის ადგილზე მივაკვლიეთ გვიანდელი სამარხებისგან ფაქტიურად დაშლილი სვეტების ლოდების გროვას ავთენტურ, მართკუთხა, დაახლოებით 2X2 მ სიგრძე-სიგანის, 20-25 სმ სიმაღლის ცოკოლზე; კარგად გამოვლენილი სვეტებიც ამგავრივე „ბალიშებს“ ეყრდნობა. ბაზილიკის კედლები და სვეტები აგებული ყოფილა მკვრივი კირქვის ფლეთილი და რიყეზე ნაგროვები, კარგად ნარჩევი, დიდი ზომის ქვებით, დუღაბის ხსნარზე. კუთხეებში, ღიობების ნაპირებში, თაღების გამოსაყვანად და სვეტების კაპიტელებად, კარგად ნათალი შირიმის ქვა ყოფილა გამოყენებული. შუა ნავი აღმოსავლეთით მკვეთრად ნალისებური გეგმის აფსიდითაა დასრულებული, რომელიც ზემოდან, ქვის კონქით იყო დასრულებული. საკურთხევლის იატაკის და სინთრონონის ფართზე ჩაწოლილი აღმოჩნდა კონქის ნგრევით გაჩენილი ქვითკირის უზარმაზარი ბლოკები. ამ „ლოდებს“ სერიოზულად ჩაუზნექია საკურთხევლის ფიქალის ქვებით მოფენილი იატაკი, დაუზიანებია სინთრონონის შემადგენელი ოთხსაფეხურიანი ხარისხი და სამეუფეო ტახტი. მიუხედავად დაზიანებისა, ცხადი გახდა, რომ ეს ტახტი საფეხუროვან ხარისხებზე დაშენებული, დასავლეთისკენ ვიწრო მხარით მიმართული, ტრაპეციული გეგმის შემაღლებაზე იყო დაფუძნებული. ასეთი აღნაგობის საკურთხევლები საქართველოში დღემდე არ ყოფილა დადასტურებული (რამდენადმე მსგავსი სინთრონონები ჩვენ მიერ დადასტურებულია ყვარლის რაიონშივე, არეშის ნაქალაქარზე, VI საუკუნის ე.წ. „მდინარისპირა“ სამეკლესიიან ბაზილიკაზე, თუმცა, ეს უკანასკნელი ნიმუში დოლოჭოპის ბაზილიკის საკურთხევლის თემის შედარებით გვიანდელი გამოძახილი უნდა იყოს.
 |
| საკურთხეველი |
საკურთხევლის მარჯვნივ და მარცხნივ, გვერდითა ნავების გაგრძელებაზე, სწორკუთხა გეგმის პასტოფორიუმები – სავარაუდოდ სადიაკვნე და სამკვეთლოა მოწყობილი, შესასვლელებით ამ ნავებიდან. ინტერესი გამოიწვია იმ გარემოებამ, რომ საკურთხევლის ჩრდილოეთით მდებარე პასტოფორიუმს, თავდაპირველად დამატებითი, ჩრდილოეთიდან შესასვლელი კარიც ჰქონია. ეს დეტალი თითქოს ეჭქვეშ აყენებს შესაძლებლობას ოთახის იმთავითვე სამკვეთლოს ფუნქციით მოწყობის შესახებ, თუმცა, ისიც უნდა ითქვას, რომ მოგვიანებით (დაახ. ტაძრის აგებიდან 1-2 საუკუნის შემდეგ), ეს კარი ქვითკირის შედარებით ვიწრო და სუსტშემკვრელიანი წყობით ამოუშენებიათ და გაუუქმებიათ. ეს მოქმედება, შესაძლოა, სწორედ ლიტურგიის წესის ცვლილებაზე და სათავსოს ამჯერად უკვე დანამდვილებით სამკვეთლოს დანიშნულებით გამოყენებაზე მიგვითითებდეს. რაც შეეხება სამხრეთის პასტოფორიუმს, მას აღმოსავლეთ კიდეში საკურთხევლის თავისებურება იმაშიც გამოიხატება, რომ თითქმის 3 მ-ზე მაღალ ნიშნულზე შემორჩენილ არც ერთ მის კედელში არ ჩანს დატანებული სარკმელი ან სასინათლე ხვრელი. ალბათ უნდა ვიფიქროთ, რომ ამ ოთახს სარკმელი მაინც ექნებოდა, ოღონდ სამხრეთის კედლის ძალზე მაღალ რეგისტრში დატანებული, და ის ნგრევისას აღარ შემორჩა. როგორც იატაკებზე და ნანგრევებში მიმოფანტული, ნათალი, ცალმხრივ მორკალული შირიმის ბლოკების ფორმების შესწავლით დავრწმუნდით, ისინი მხოლოდ ბაზილიკის ნავებად დამყოფი სვეტების ერთმანეთთან გრძივად დამაკავშირებელი თაღების, აგრეთვე კარების და სარკმელების ზემოდან მომზღუდავი თაღების ელემენტებია – მათ შორის სრულიად არ შეგვხვედრია მორკალული დეტალები, რომლებიც შეიძლებოდა ნავების გადამხურავი კამარების საბჯენი თაღების შემადგენელ ნაწილებად მიგვეჩნია. ამდენად ბაზილიკის ნავების ქვის კამარებით გადახურვა ფრიად საეჭვო იყო. ეს გარემოება და თავდაპირველი იატაკის დონეზე, ნახშირის ნაწილაკების შემცველ, დამწვარ კრამიტებიან ფენასთან ერთად აღმოჩენილი დიდი ზომის, ათეულობით ნაჭედი ლურსმანი (ე.წ. „ყადაღები“) იმაზე მეტყველებს, რომ ეს ბაზილიკა ხის კონსტრუქციებზე დაყრდნობილი კრამიტის საბურველით ყოფილა გადახურული. გათხრებისას დიდი რაოდენობით გამოვლინდა კრამიტით გადახურული სახურავების ფერდების დაბოლოებებზე გაყოლებული, თიხის ცალმხრივ დაკბილული და თეთრ-წითლად მოხატული ანტეფიქსების ფრაგმენტები. ისინი უმთავრესად კოლონების გრძივი მწკრივების და კედლების გასწვრივ დაფიქსირდა, რაც იმაზე მიგვანიშნებს, რომ ბაზილიკის შუა ნავი გვერდითებზე მაღალი, ორფერდა სახურავით იყო გადახურული (განსხავებით საქართველოში მდებარე, ერთ-ერთი უძველესი და საყოველთაოდ ცნობილი, ბოლნისის სიონის ბაზილიკისგან, სადაც ყველა ნავი ერთიანად ორფერდა სახურავის ქვეშაა მოქცეული).
 |
 |
| დოლოჭოპის ბაზილიკის სამხრეთ-აღმოსავლეთი ხედი |
დოლოჭოპის ბაზილიკის ჩრდილო-აღმოსავლეთი ხედი |
ნავების გამყოფ თაღნარზე დაყრდნობილ კედელთა სულ ზედა რეგისტრში, ცენტრალური და გვერდითი ნავების სახურავებს შორის მოქცეულ მონაკვეთში, გარკვეული ინტერვალით, რომლის განსაზღვრა ამჟამად შეუძლებელია, დატანებული იქნებოდა ფართო სარკმელები, რასაც გარდა ინტერიერის გასანათებლად აუცილებელი ლოგიკური საჭიროებისა, დაახლოებით ამ კედლების გასწვრივ ნაპოვნი შირიმის ძლიერ მორკალული სარკმლის თავებიც ადასტურებს. სარკმელები დატანებული იქნებოდა ბაზილიკის გარედან მომზღუდავ სამხრეთის და დასავლეთის კედლებშიც, შეძლებიდაგვარად მაღლა (ჩრდილოეთის, საკმაოდ მაღალ ჰორიზონტამდე შემორჩენილ კედელში, ასეთი სარკმელები რატომღაც არ ყოფილა დატანებული).
8. Zeglis daqvemdebareba da statusi
დოლოჭოპის ბაზილიკა ნეკრესის ეპარქიის დაქვემდებარებაშია. იგი არ არის მოქმედი.
9. gamoyenebuli masalebi da bibliografia
1. ნოდარ ბახტაძე - დოლოჭოპის ბაზილიკაზე 2012 წელს ჩატარებული არქეოლოგიური კვლევის ანგარიში; ბმული - http://www.academia.edu/
2. ფოტოების ავტორი – ზაზა ქარდავა და ლიდა კაპანაძე;
10. marSruti
დადგინდება;
11. bmulebi
http://www.academia.edu
https://ka.wikipedia.org
http://eprints.iliauni.edu.ge
|