Zeglebis sruli sia

 

 

 

 

 

 

 

 

 


 

foto

giorgi erisTavis
saxl-muzeumi
(XIX s
)

1. kompleqsSi Semavali nagebobebi
2. mniSvnelovani informacia
3. adgilmdebareoba
4. ruka
5. istoriuli mimoxilva
6. legendebi, Tqmulebebi da zepirsityvieri gadmocemebi
7. arqiteqturuli aRwera
8. Zeglis statusi da mdgomareoba
9. gamoyenebuli masalebi da bibliografia
10. marSruti
11. bmulebi

1. kompleqsSi Semavali nagebobebi

მუზეუმის შენობა.

 

2. mniSvnelovani da saintereso informacia

ამ სახლში დაიბადა და პერიოდულად ცხოვრობდა მწერალი და დრამატურგი გიორგი ერისთავი (1811–1864), შემდგომ სახლი ეკუთვნოდა მის შვილს, მწერალ დავით ერისთავს (1847–1890).

 

3. adgilmdebareoba

გიორგი ერისთავის სახლ–მუზეუმი მდებარეობს საქართველოში, მცხეთა–მთიანეთის მხარეში, დუშეთის მუნიციპალიტეტში, მისგან აღმოსავლეთით, მდინარე ქსნის მარცხენა ნაპირას მდებარე სოფელ ოძისის განაპირას, სამხრეთ–აღმოსავლეთით.

 

4. ruka

5. istoriuli mimoxilva

სახლ–მუზეუმი აგებულია XIX საუკუნის დასაწყისში. ამ სახლში დაიბადა და პერიოდულად ცხოვრობდა მწერალი და დრამატურგი გიორგი ერისთავი (1811–1864), შემდგომ სახლი ეკუთვნოდა მის შვილს, მწერალ დავით ერისთავს (1847–1890). აქ 1958 წლის ოქტომბერში გაიხსნა სახლ–მუზეუმი. ამჟამად გადაკეთებული და სახეშეცვლილია.

6. legendebi, Tqmulebebi da zepirsityvieri gadmocemebi

არ მოგვეპოვება.

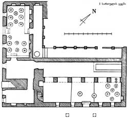
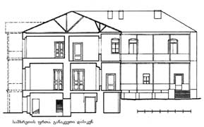
7. arqiteqturuli aRwera

გიორგი ერისთავის სახლ–მუზეუმი სამსართულიანია, ნაგებია ნატეხი ქვითა და კვადრატული აგურით. შედგება სწორი კუთხით მიბჯენილი ორი ფრთისაგან. ორივე ფრთას ერთმანეთთან აკავშირებს აივანი, რომლებიც შენობის II და III სართულებს, ეზოს მხარეს, მთელ სიგრძეზე გასდევს.
I სართული სამეურნეო დანიშნულების ნახევრად სარდაფია, ორივე ფრთაში მარანია, ფრთების შეერთების ადგილას კი – ორი პატარა ოთახი. ოთახები ერთმანეთისგან გამიჯნულია კედლით (სისქე 2,3 მ), იგი II სართულზე ასასვლელი კიბის საყრენია. მოგვიანებით კედლები გაუნგრევიათ და ოთახები ერთმანეთთან დაუკავშირებიათ. მათგან სამხრეთ ოთახს, დამოუკიდებელი შესასვლელი და  ერთი ფანჯარა აქვს დასავლეთიდან. ჩრდილოეთით მდებარე ოთახი გამავალია, განათებულია ერთი ფანჯრით (დასავლეთით) და მარნებს ერთმანეთთან აკავშირებს. სამხრეთის ფრთაში მდებარე მარანი უფრო ფართო და გრძელია, გრძივი ღერძის გასწვრივ განლაგებული ხუთი კვადრატული ბურჯითა და მათზე დაყრდნობილი ნახევარწრიული თაღებით იგი ორ ნაწილადაა გაყოფილი. ჩრდილოეთ ნაწილში, რომლის იატაკი 0,7 მ–ით მაღლაა, საწნახელია, სამხრეთ ნაწილში კი ქვევრებია ჩაყრილი. ჩრდილოეთ ნაწილის აღმოსავლეთ და ჩრდილო კედლები ყრუა. დასავლეთ კედელში განიერი სწორკუთხა კარია, რომელიც ფრთების შეერთების კუთხეში მდებარე ერთ–ერთ (ჩრდილოეთ) ოთახში გადის. მარნის სამხრეთ ნაწილის სამხრეთ კედელში განიერი სწორკუთხა კარია, რომლის ორივე მხარეს ორ–ორი ფანჯარაა. აღმოსავლეთ კედელში მცირე ზომის თახჩაა, დასავლეთ კედელში კი ერთი თახჩა და კედლის სისქეში მოწყობილი კიბის შესასვლელია. კიბე მარანს II სართულთან აკავშირებს.
ჩრდილოეთის ფრთაში მდებარე მარანს აღმოსავლეთიდან და დასავლეთიდან ორი სწორკუთხა შესასვლელი აქვს. მესამე (სამხრეთით) კარი მარნების დამაკავშირებელ ოთახში გადის. დასავლეთ შესასვლელის ორივე მხარეს თითო ფანჯარაა, აღმოსავლეთ შესასვლელის გვერდებზე და ჩრდილო კედელში ორ–ორი თახჩაა. ეზოს მხარეს ორივე ფრთას მთელს სიგრძეზე, გასდევს აგურის სვეტებიანი ღია დერეფანი. მათი შეერთების ადგილზე, კუთხეში, ამოღებულია ჭა.
II სართულზე მოხვედრა შესაძლებელია, როგორც მთავარი (დასავლეთ) ფასადის მხრიდან მოწყობილი სადარბაზო კარით, ასევე ეზოდან, აივანზე მიდგმული ქვის ერთმარშიანი კიბით. სამხრეთ ფრთაში, გრძივი კაპიტალური კედლის ორივე მხარეს, სხვადასხვა ფართობის ოთხ–ოთხი ოთახია, ჩრდილოეთს ფრთაში კი – ორი ოთახი. სამხრეთი ფრთის სამხრეთ ნაწილშია მოქცეული სართულზე ამოსასვლელი კიბე და დანარჩენ სართულებთან დამაკავშირებელი კიბის უჯრედი. ჩრდიოეთის ფრთაში მდებარე ოთახებს შესასვლელი აივნიდან აქვს. აივნიდანაა სამხრეთის ფრთის ჩრდილო ნაწილში მოქცეული ოთახების შესასვლელები. ოთახების ნაწილი ორი, ხოლო ნაწილი თითო ფანჯრითაა განათებული.  სამხრეთი ფრთის  აღმოსავლეთ კიდეში განთავსებულ ორივე ოთახში თითო კედლის ღუმელია.

III  სართულის გეგმარება II  სართულის მსგავსია. ჩრდილოეთის ფრთაში აქაც ორი, ერთმანეთთან დაკავშირებული ოთახია, სამხრეთის ფრთის სამხრეთ ნაწილში – ოთხი, ხოლო სამხრეთის ფრთის ჩრდილო ნაწილში ორი ოთახია, რომელთა შორის ვიწრო კორიდორია მოქცეული სამხრეთის ფრთის სამხრეთი ნაწილიდან ეზოს მხარეს მოწყობილ აივანზე გასასვლელად.
ინტერიერი შელესილი და შეთეთრებულია. სართულშუა გადახურვა ბრტყელია, ეყრდნობა ხის კოჭებს.
ფასადები ცემენტის ხსნარითაა შელესილი. I  სართულის კარფანჯარა ოთხკუთხაა, II სართულისა – ნახევარწრიულთაღიანი, III  სართულის არშია შემოვლებულ ფანჯრებს ბრტყელი თაღი ხურავს. სასახლის სამხრეთის ფასადზე, მარნის შესასვლელის ზემოთ, II და III სართულებზე მოწყობილია თითო კარი, რომლებიც ამ მხარეს არსებულ აივანზე გამოდიოდა (მარნის შესასვლელის წინ შემორჩენილია აივნის საყრდენი აგურის ორი კვადრატული ბურჯის ნაშთი).  აივანი ჩრდილოეთის ფრთის III სართულის ერთ–ერთ ოთახსაც ჰქონია დასავლეთით. თავდაპირველად სასახლე კრამიტით ყოფილა გადახურული. სახურავი ამჟამად თუნუქისაა.

 

8. Zeglis daqvemdebareba da statusi

გიორგი ერისთავის სახლ–მუზეუმი საქართველოს კულტურისა და ძეგლთა დაცვის სამინისტროს დაქვემდებარებაშია.


9. gamoyenebuli masalebi da bibliografia

საქართველოს ისტორიისა და კულტურის ძეგლთა აღწერილობა, ტ2, 2004წ.

 

10. marSruti

დადგინდება;

11. bmulebi

არ მოგვეპოვება.

 

 


megobari saitebi

dz_anotacia
   

08.05.2016