Zeglebis sruli sia

 

 

 

 

 

 

 

 

 


 

avenisi
საგურამოს ქასურის წმ. გიორგის
სამეკლესიანი ბაზილიკა
(VI s.)

1. kompleqsSi Semavali nagebobebi
2. mniSvnelovani informacia
3. adgilmdebareoba
4. ruka
5. istoriuli mimoxilva
6. legendebi, Tqmulebebi da zepirsityvieri gadmocemebi
7. arqiteqturuli aRwera
8. Zeglis statusi da mdgomareoba
9. gamoyenebuli masalebi da bibliografia
10. marSruti
11. bmulebi

1. kompleqsSi Semavali nagebobebi

ეკლესია

2. mniSvnelovani da saintereso informacia

სახელწოდება „ქასური“ მომდინარეობს ქვის იმ ჯიშის სახელისაგან, რომლის კარგად გათლილი კვადრებისაგანაცაა აშენებული ტაძარი.

3. adgilmdebareoba

ქასურის წმ. გიორგის ეკლესია მდებარეობს საქართველოში, შიდა ქართლის მხარეში, მცხეთის მუნიციპალიტეტში, სოფელ საგურამოს სამხრეთით, ზედაზნის მონასტრისაკენ მიმავალი გზის მარჯვენა მხარეს, მთა ზედაზენის ფერდზე, ტყეში.

4. ruka

 

5. istoriuli mimoxilva

ასურელი მამის, იოანე ზედაზნელის ცხოვრების მიხედვით, საგურამოს ქასური წმ. გიორგის სამონასტრო ეკლესია დაარსებულია VI საუკუნეში მოღვაწე ასურელი მამის იოანე ზედაზნელის მოწაფის, თათა სტეფანწმინდელის მიერ, იოანე ზედაზნელის სიცოცხლის პერიოდშივე. ასურელ მამათა ცხოვრების წიგნები ქართული ლიტერატურის იმ ძეგლთა რიცხვს მიეკუთვნება, რომელთა მნიშვნელობაც მარტო მხატვრული ღირებულებებით არ შემოიფარგლება. ეს შესანიშნავი ნაწარმოებები უზარმაზარ ინფორმაციას შეიცავენ VI საუკუნის საქართველოს ცხოვრების შესახებ.
განსაკუთრებით მნიშვნელოვანია აღნიშნულ თხზულებებში მრავლად დაცული ცნობები ასურელ მამათა და მათი მოწაფეების ინიციატივით გაშლილ სამონასტრო მშენებლობის თაობაზე.
აღნიშნული წყაროს მიხედვით, როდესაც წმ. მამა იოანე ზედაზნელმა იგრძნო აღსასრულის მოახლოვება „მოუწოდა მოწაფეთა თვისთა რომელთამე, და ელიას დიაკონსა და თათას, რომელსა აღეშენა მონასტერი ქუეშე კერძო მთასა მის და იმყოფებოდა მის შინა ძმათა თანა მრავალთა, მის მიერ შეკრებილთა, მონასტერსა მას შინა“. ამავე წყაროს მიხედვით, წმ. იოანე ზედაზნელი გარდაცვალების შემდეგ პირველად ამ ეკლესიაში დაუსვენებიათ _ „და მოწიწებით წარმგრაგნელთა სხეულისა მისათა წარიხუნეს იგი მონასტერსა თათას მიერ (მოწაფისა მისისა) აღშენებულსა და ლარნაკისა მოქმედთა მის შინა დაესხნეს პატიოსანნი ნაწილნი მისნი“. შემდეგში წმ. მამა თავის სამყოფელ ადგილას იქნა გადასვენებული, სადაც ახლა არის ზედაზნის მონასტერი _ „ხოლო შემდგომად აღყვანებისა ნაწილთა მისთასა დაცხრა ძერაი, რომელ იყო მონასტერსა მის შინა თათაისა“. როგორც აღნიშნული ტექსტიდან ჩანს, თათა სტეფანწმინდელის მიერ აგებული ტაძარი მდებარეობდა ზედაზნის მთის ფერდზე, იოანე ზედაზნელის მონასტრის ქვემოთ. მითითებულ ტერიტორიაზე (დღევანდელი საგურამოს ზემოთ, ზედაზნის მონასტრისაკენ მიმავალი გზის მარჯვენა მხარეს, მთა ზედაზენის ფერდზე, ტყეში) რამდენიმე ეკლესიაა შემორჩენილი, რომელთა შორის მხოლოდ ქასური წმ. გიორგის ეკლესიაა ამ პერიოდის ხუროთმოძღვრების შესაფერისი. საგურამოს ქასური წმ. გიორგის სამეკლესიიანი ბაზილიკის გეგმა და აღმოსავლეთის

bana

eklesiis gegma da aRmosavleTi fasadi Sesrulebuli n. severovis mier 1922 wels.

ფასადის სქემა, ჯერ კიდევ 1922 წელს აქვს შესრულებული არქიტექტორ ნ. სევეროვს. ტაძარი ამ დროსაც დანგრეული ყოფილა, თუმცა ჯერ კიდევ შემორჩენილი ყოფილა ტაძრის მთავარი ნავის კარნიზი, აღმოსავლეთის სარკმლის თავსართი, კაპიტელები და წარწერიანი ქვა. ადგილობრივი მოსახლეობის გადმოცემით, XX საუკუნის 30-იან წლებში საქართველოში კომუნისტების მიერ ორგანიზებულ ანტიქრისტიანული მოძრაობის დროს ქასური წმ. გიორგის ეკლესიის შემორჩენილი კედლებისათვის თითქმის მთლიანად შემოუცლიათ ქვის კარგად გათლილი დიდი კვადრები და ძეგლი დუღაბის ამარა დაუტოვებიათ. ამ ქვებით ახლომდებარე ახალსოფელში საცხოვრებელი სახლი აუშენებიათ, რომელიც ახლაც დგას. საქართველოს კულტურის, ძეგლთა დაცვისა და სპორტის სამინისტროს მიერ ქასური წმ. გიორგის ეკლესიის სარესტავრაციო პროექტისათვის 2008 წლის ივნისში დაიწყო სამუშაოები, რომლის მიზანი იყო არქეოლოგიური შურფებით დაზუსტებულიყო ის უხილავი დეტალები (ეკლესიის განაპირა ჩრდილოეთი კუთხე, კარის წირთხლები, აფსიდის კუთხე, ზღურბლის ქვები და სხვ.), რომლებიც 1922 წელსაც ნანგრევში იყო მოყოლილი, არ ჩანდა და ამიტომაც ნ. სევეროვის გეგმაზე პუნქტირითაა დატანილი.

bana

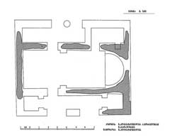
eklesiis gegma. 2008 wels gakeTebuli Surfebi

მიმდინარე საპროექტო სამუშაოებისათვის გათხრილმა არქეოლოგიურმა შურფებმა მთლიანად შეცვალეს ტაძრის აქამდე ცნობილი გეგმა. ეკლესიის ჩრდილო ნავის ჩრდილო კედელთან გათხრილმა შურფმა მთავარი ნავის კამარის გასწვრივ გამოავლინა მანამდე უხილავი, კვადრატულ ბაზაზე მდგარი ქვის სვეტი, რომლის დიამეტრი 70 სანტიმეტრია. ამ სვეტიდან, რომელიც თავის თავდაპირველ ადგილზე მდებარეობს, თაღები გადადიოდა როგორც აღმოსავლეთით სამკვეთლოს ჩრდილო-დასავლეთ კუთხესთან, ისე დასავლეთით. სამხრეთის ნავის სამხრეთის კედელთან, იქ, სადაც ნ. სევეროვის გეგმაზე აღნიშნულია კვადრატული გეგმის ბურჯზე დაყრდნობილი ორი თაღი, ბურჯის ნაცვლად შურფმა 2 მეტრი სიგრძის კედელი გამოავლინა. აქვე გამოავლინდა აღმოსავლეთი თაღის აღმოსავლეთი კაპიტელის ფრაგმენტი _ შვერილპროფილიანი თარო.

 

 


6. legendebi, Tqmulebebi da zepirsityvieri gadmocemebi

არ მოგვეპოვება

7. arqiteqturuli aRwera

eklesiis Sua da samxreTi navebi xedi samxreT-aRmosavleTidan

წმ. გიორგის ტაძარი წარმოადგენს სამეკლესიან ბაზილიკას (10,5X12,9 მ), რომლის მთავარ, შუა ნავის გრძივ კედელზე წყვილ-წყვილი პილასტრია, რომელიც დარბაზს ორ თანაბარ მონაკვეთად ყოფს. პილასტრები ერთსაფეხურიანია. ერთსაფეხურიანი კუთხითაა ნავისაგან გამოყოფილი აფსიდიც, რომლის აღმოსავლეთ კედელში სარკმელია გაჭრილი. აფსიდს სამხრეთ მხარეზე ოთხკუთხა ნიში აქვს. ჩრდილო ნავის ჩრდილო-დასავლეთ მონაკვეთში ცალკე სათავსოა გამოყოფილი, რომელიც წარმოადგენს ცენტრალური ნავის სამკვეთლოს. სამკვეთლოს შესასვლელი მხოლოდ ცენტრალური ნავის აფსიდის კუთხიდანაა. სამკვეთლოს აღმოსავლეთ კედელში სარკმელია, სამხრეთ კედელში კი სწორკუთხა ნიში. ჩრდილო ნავის შესასვლელი გაფორმებულია მრგვალ სვეტზე დაყრდნობილი ორი განიერი თაღით. სამხრეთის ნავის სამხრეთი კედელი აგრეთვე გაფორმებულია ორი განიერი თაღით, რომელთა შორის მოგძრო კედელია. ნავს აღმოსავლეთიდან სარკმელი არ გააჩნია

bana

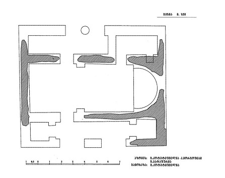
eklesiis gegma

ქასური წმ. გიორგის ეკლესია წარმოადგენს ადრე შუასაუკუნეებში საქართველოში შემუშავებულ უგუმბათო ტაძრის ნაირსახეობას, ერთ შენობაში გაერთიანებულ სამ დამოუკიდებელ სამლოცველოს. მსგავს ეკლესიებს აკადემიკოსმა გ. ჩუბინაშვილმა „სამეკლესიანი ბაზილიკები“ უწოდა.
ზოგიერთი მკვლევარი მსგავს ტაძრებს „გარშემოსავლელიან დარბაზულ ეკლესიებსაც“ უწოდებს.
ქასური წმ. გიორგის ეკლესია „სამეკლესიან ბაზილიკის“ ხანგრძლივი განვითარების იმ ეტაპის ძეგლია, როცა გვერდითა, ჩრდილო და სამხრეთ ეკლესიებს კამარებიანი სტოების (შესასვლელების) ხასიათი აქვთ მიღებული. ცენტრალურ ეკლესიაში ერთი შესასვლელის ნაცვლად კეთდება ორი შესასვლელი სამხრეთიდან და ჩრდილოეთიდან. ამავე პერიოდში ჩრდილო ეკლესიის აღმოსავლეთ ნაწილში გამოიყოფა ცალკე ოთახი, რომელსაც ცენტრალური ეკლესიის სამკვეთლოს დანიშნულება აქვს. ერთი სიტყვით, სამეკლესიიანი ბაზილიკის განვითარების ამ ეტაპზე (VI ს.) გვერდითა, ჩრდილო და სამხრეთი ეკლესიების მთავარ, ცენტრალური ეკლესიისათვის დამატებით შემოსასვლელის, სტოას ფუნქციას ასრულებენ, ისინი ჯერ კიდევ არ არიან დამოუკიდებელი, ცალკე ეკლესიები. ქასური წმ. გიორგის ეკლესიას სამხრეთის ნავებში აღმოსავლეთით სარკმელები არ გააჩნია.
ეკლესია ნაგებია ქვის სუფთად გათლილი მოზრდილი კვადრების სწორი რიგებით.
ქართლისა და კახეთის საზღვარზე მდებარე ქასური წმ. გიორგის ეკლესია არქიტექტურული ფორმებითა და პროპორციებით კახეთის ძეგლებთან დგას ახლოს, სამშენებლო მასალითა და მშენებლობის ტექნიკით კი ქართლის ხუროთმოძღვრებასთან.

8. Zeglis daqvemdebareba da statusi

ქასურის წმ. გიოეგის ეკლესია მცხეთა–თბილისის ეპარქიის დაქვემდებარებაშია. იგი არ არის მოქმედი.

9. gamoyenebuli masalebi da bibliografia

1. რეზო ხვისტანი – მასალები საქართველოს ქრისტიანული არქეოლოგიისათვის; 2009წ.
2. გ. ჩუბინაშვილი – ქართული ხელოვნების ისტორია, ტ1. 1936წ.
3. ფოტოების ავტორი – დავით მიქავა, ლიკა კაპანაძე და ზაზა ქარდავა.

10. marSruti

დადგინდება;

11. bmulebi

http://dzeglebi.com

 


megobari saitebi

   

08.05.2016